Σχέδια για διώροφα σπίτια: χαρακτηριστικά και παραδείγματα ενδιαφέρων λύσεων
Σε σύγκριση με το μονοώροφα κτίρια διώροφα έχουν τα δικά τους πλεονεκτήματα και μειονεκτήματα. Επιλέγοντας μια κατάλληλη λύση για το προσωπικό σας οικόπεδο, αξίζει να εξετάσετε τα τυπικά σχέδια διώροφων σπιτιών του απαιτούμενου μεγέθους, καθώς και τα χαρακτηριστικά των υλικών που μπορούν να χρησιμοποιηθούν στην κατασκευή τους. Αυτό θα σας επιτρέψει να κάνετε μια τεκμηριωμένη επιλογή, λαμβάνοντας υπόψη τις απαιτήσεις για τη μελλοντική δομή και τον τόπο κατασκευής της.
Το περιεχόμενο του άρθρου
- 1 Πεδίο εφαρμογής και διακριτικά χαρακτηριστικά διώροφων σπιτιών
- 2 Πλεονεκτήματα διώροφων σπιτιών
- 3 Μειονεκτήματα διώροφων σπιτιών
- 4 Οι κύριες δυσκολίες στο σχεδιασμό διώροφων σπιτιών
- 5 Υλικά για την κατασκευή διώροφων σπιτιών
- 6 Κανόνες σχεδιασμού σπιτιού
- 7 Χαρακτηριστικά σχεδίων για διώροφα σπίτια με σοφίτα
- 8 Χαρακτηριστικά έργων διώροφων σπιτιών με γκαράζ
- 9 Χαρακτηριστικά ενός διώροφου σπιτιού με βεράντα
- 10 Ανασκόπηση και σχέδια έργων διώροφων σπιτιών
- 10.1 Διάταξη σπιτιού 9 επί 9 m: πιθανές επιλογές
- 10.2 Το σχέδιο ενός διώροφου σπιτιού 10 επί 10 μέτρα: μια τυπική λύση
- 10.3 Έργο διώροφης κατοικίας 7 επί 7 μ
- 10.4 Διάταξη σπιτιού 6 επί 8 μέτρα: μια ενδιαφέρουσα λύση
- 10.5 Διάταξη σπιτιού 6 × 10 μ
- 10.6 Διάταξη σπιτιού 9 επί 6 m: τυπικές λύσεις
- 10.7 Η διαρρύθμιση ενός διώροφου σπιτιού 12 επί 12 μέτρα
- 11 Το κόστος κατασκευής ενός διώροφου σπιτιού με κλειδί στο χέρι - έργο, κατασκευή
- 12 Έργα εσωτερικού χώρου: φωτογραφίες ενδιαφέρων λύσεων
- 13 Βίντεο: διάταξη σπιτιού 6x6, 2ος όροφος 2 δωμάτια
Πεδίο εφαρμογής και διακριτικά χαρακτηριστικά των διώροφων σπιτιών
Συχνά είναι δύσκολο να αποφασίσουμε για τη διαμόρφωση του μελλοντικού σπιτιού. Εάν η έκταση είναι σχετικά μικρή, κατασκευή μονοώροφη κατοικία μεγάλη περιοχή γίνεται αδύνατη ή παράλογη. Σε αυτήν την περίπτωση, εκτός από το ίδιο το περίβλημα, θα είναι δύσκολο να κατασκευαστεί κάτι άλλο.
Προσοχή! Η κατασκευή διώροφης κατοικίας είναι απολύτως δικαιολογημένη εάν απαιτείται στέγαση μεγάλης έκτασης.
Έχοντας δώσει προτίμηση διώροφο κτίριο, σε ένα μικρό οικόπεδο θα είναι δυνατή η ανέγερση οικιακών κτιρίων (καυσόξυλα, γκαράζ), εγκαταστάσεις αναψυχής (κιόσκι, λούτροή εκχωρήστε το πρώτο επίπεδο για αυτούς και τοποθετήστε τα καθιστικά στο δεύτερο.
Εάν η περιοχή του ιστότοπου είναι μεγάλη, τα διώροφα έργα αξίζουν επίσης προσοχή. Ειδικά αν η οικογένεια είναι μεγάλη, ή σχεδιάζεται να δεχτεί μεγάλο αριθμό επισκεπτών. Σε αυτήν την περίπτωση, εκτός από την κρεβατοκάμαρα για κάθε μέλος της οικογένειας, θα είναι δυνατή η παροχή πολλών δωματίων επισκεπτών.
Προσοχή! Τα έργα μικρών διώροφων σπιτιών είναι κατάλληλα για κατοίκους του καλοκαιριού ή για οικογένειες πολλών ατόμων.
Πλεονεκτήματα διώροφων σπιτιών
Τα διώροφα κτίρια σε προσωπικά οικόπεδα έχουν πολλά πλεονεκτήματα. Επιτρέπουν:
- Διαχειριστείτε οικονομικά την περιοχή του εξοχικού σπιτιού.
- Εφαρμόστε διάφορες σχεδιαστικές λύσεις, επιτυγχάνοντας την ενότητα του σχεδιασμού των κτιρίων και της περιοχής που βρίσκεται δίπλα στο σπίτι. Το σχέδιο εξωραϊσμού αναπτύσσεται λαμβάνοντας υπόψη τον επιλεγμένο στιλιστικό σχεδιασμό και τη θέση του κτιρίου.
- Χρησιμοποιήστε μη τυπικές λύσεις κατά την ανάπτυξη ενός σχεδίου για τη διάταξη των εσωτερικών χώρων και της διακόσμησης πρόσοψη σπιτιού... Επιτρέπεται η χρήση όμορφων μπαλκονιών, για την κατασκευή κιγκλιδωμάτων από τα οποία μπορούν να χρησιμοποιηθούν διάφορα υλικά, όπως πέτρα, ξύλο, μέταλλο.
- Παρέχετε μια καλή θέα στη γύρω περιοχή.
Μειονεκτήματα διώροφων σπιτιών
Αρνούνται να χτίσουν ένα διώροφο σπίτι λόγω του υψηλού κόστους κατασκευής. Για την κατασκευή διώροφου κτηρίου, θα απαιτηθούν περισσότερα κεφάλαια από ό, τι για μια ιστορία... Το κόστος της έκχυσης του ιδρύματος αυξάνεται σημαντικά. Η βάση θα πρέπει να αντέξει μεγαλύτερο φορτίο από ό, τι στην περίπτωση κατασκευή ενός διώροφου κτηρίου... Τις περισσότερες φορές, προτιμάται το θεμέλιο της ταινίας, η κατασκευή του οποίου συνοδεύεται από σημαντικά οικονομικά κόστη.
Ένα άλλο μειονέκτημα των διώροφων κτιρίων είναι η ανάγκη δημιουργίας μιας σκάλας. Αυτό όχι μόνο προκαλεί αύξηση του κόστους κατασκευής και επιπλοκή της τεχνολογίας κατασκευής, αλλά μπορεί επίσης να προκαλέσει τραυματισμό κατά τη διάρκεια της επόμενης λειτουργίας. Για να αυξήσετε το επίπεδο ασφάλειας ενός διώροφου σπιτιού, θα πρέπει να αναθέσετε την ανάπτυξη τεκμηρίωσης έργου σε επαγγελματίες. Θα καθορίσουν το βέλτιστο γεωμετρικό σχήμα της σκάλας και θα επιλέξουν τα σωστά υλικά.
Οι κύριες δυσκολίες στο σχεδιασμό διώροφων σπιτιών
Η ανάπτυξη έργων για ιδιωτικές κατοικίες σε δύο ορόφους συνοδεύεται από ορισμένες δυσκολίες:
- Απαιτείται επιπλέον ενίσχυση ενδοδαπέδιας οροφής. Διαφορετικά, θα είναι επικίνδυνο να βρίσκεστε μέσα στο κτίριο.
- Είναι απαραίτητο να σχεδιάσουμε διακλαδισμένα και πολύπλοκα συστήματα επικοινωνίας. Η παρουσία του δεύτερου επιπέδου περιλαμβάνει την τοποθέτηση ενός επιπλέον υδραυλικά και λύματα. Για τη δημιουργία άνετων συνθηκών, θα είναι απαραίτητο να εγκαταστήσετε μια αντλία κυκλοφορίας, διότι διαφορετικά ο θερμαντικός φορέας δεν θα κινείται μέσω των σωλήνων.
- Μία προσεκτική μελέτη της διάταξης των δωματίων παρουσία ηλικιωμένων και μικρών παιδιών στην οικογένεια είναι μπροστά. Βρίσκουν δωμάτια στο ισόγειο για να μειώσουν τον κίνδυνο τραυματισμού.
Υλικά για την κατασκευή διώροφων σπιτιών
Το κόστος κατασκευής ενός διώροφου κτηρίου εξαρτάται από τον τύπο του υλικού που χρησιμοποιείται. Οι τοίχοι των σύγχρονων εξοχικών σπιτιών είναι συνήθως κατασκευασμένοι από:
- Δοκοί (κολλημένο, στερεό);
- Τούβλα;
- Αέριο ή μπλοκ αφρού;
- Κούτσουρο.
Το υλικό που θα προτιμηθεί εξαρτάται από τις προτιμήσεις των μελλοντικών ιδιοκτητών και τις διαθέσιμες οικονομικές δυνατότητες. Σας προτείνουμε να εξοικειωθείτε με τα χαρακτηριστικά των πιο δημοφιλών υλικών εκ των προτέρων, προκειμένου να αντιπροσωπεύσετε με ακρίβεια τα χαρακτηριστικά του καθενός.
Ξύλο
Όπως δείχνουν οι φωτογραφίες των έργων των σπιτιών και των εξοχικών σπιτιών, το ξύλο είναι ένα παραδοσιακό υλικό που έχει ζήτηση για την κατασκευή προαστιακών κατοικιών. Έχει πολλά πλεονεκτήματα:
- Αξιοπιστία;
- Παρουσιάσιμο;
- Θερμότητα. Τα ξύλινα κτίρια διατηρούν τη θερμότητα καλά και θερμαίνονται γρήγορα.
- Χαμηλό βάρος, επιτρέποντας τη χρήση μιας ελαφριάς βάσης. Τις περισσότερες φορές, προτιμάται θεμέλιο τύπου ζώνης, ωστόσο, επιτρέπεται η χρήση μίας συμπαγούς πλάκας ή θεμέλιο σωρού και λουράκι;
- Φιλικότητα προς το περιβάλλον. Όντας μέσα σε ένα ξύλινο διώροφο σπίτι, δεν μπορείτε να φοβάστε τον αντίκτυπο των αρνητικών παραγόντων.
Τα χαρακτηριστικά του χρησιμοποιούμενου υλικού εξαρτώνται σε μεγάλο βαθμό από την τεχνολογία που θα χρησιμοποιηθεί στην κατασκευή της κατασκευής.
Τεχνολογία πλαισίου
Για τους λάτρεις του κλασικού στιλ όταν εργάζεστε σχέδιο ενός διώροφου σπιτιού 8 επί 8 μέτρα, πρέπει να προσέξετε τεχνολογία wireframe... Ανάλογα με τα χαρακτηριστικά του συγκροτήματος πλακέτας πίνακα, μπορεί να είναι διαφόρων τύπων:
- καναδικόςπροτείνοντας τη χρήση Πίνακες SIP ή πλατφόρμας;
- Γερμανός, που αποτελείται από την εργοστασιακή συναρμολόγηση πάνελ πάνελ.
- Πλαίσιο-πλαίσιο, η οποία συνίσταται στη συναρμολόγηση της δομής απευθείας στον τόπο της μελλοντικής λειτουργίας.
Για την κατασκευή του σκελετού του εξοχικού σπιτιού, χρησιμοποιείται δοκός διαφόρων τμημάτων. Όλα τα στοιχεία της δομής του πλαισίου συνδέονται άκαμπτα μεταξύ τους χρησιμοποιώντας χάλυβα μπουλόνια, πλάκες και άλλους συνδετήρες. Εξωτερικά, το πλαίσιο είναι επενδυμένο με πλάκες που έχουν επαρκές επίπεδο αντοχής στη φωτιά και αντοχής στην υγρασία.
Σχετικό άρθρο:
Έργα πλαισίων. Στο άρθρο, θα εξετάσουμε λεπτομερώς ποιο είναι το πλεονέκτημα αυτών των δομών, τύπων τεχνολογιών, μέσες τιμές κατασκευής, πρωτότυπα έργα, χρήσιμες συμβουλές και πολλά άλλα.
Μπλοκ από ξύλο και κορμούς
Μετά την επεξεργασία της διάταξης του διώροφου σπιτιού, θα πρέπει να αποφασίσετε για τα χαρακτηριστικά του υλικού που θα χρησιμοποιηθεί για την κατασκευή των τοίχων. Αυτή η επιλογή θα επηρεάσει τον τύπο των εσωτερικών εξαρτημάτων που ακολουθούν και το συνολικό κόστος της εργασίας.
Η επιλογή μπορεί να γίνει υπέρ:
- Ομαλή τεράστια ξυλεία. Αυτή είναι η πιο προσιτή επιλογή. Για την κατασκευή του, χρησιμοποιείται ένα στερεό κορμό και επομένως το τελικό υλικό περιέχει σημαντικό ποσοστό υγρασίας. Ως αποτέλεσμα, έχοντας διπλώσει το πλαίσιο, θα πρέπει να περιμένετε τουλάχιστον ένα χρόνο έως ότου η δομή συρρικνωθεί εντελώς. Υπάρχει επίσης μεγάλη πιθανότητα σχηματισμού φουσκωμένων κενών, τα οποία καλαφατίζουν και καλύπτουν με φινίρισμα.
- Κατασκευασμένη ξυλείαμε ειδικές κλειδαριές: ειδικές προβολές και καταθλίψεις. Τα διαμορφωμένα κενά διευκολύνουν την ανέγερση τοίχου. Χάρη σε έναν καλά μελετημένο σχεδιασμό, ο κίνδυνος εμφυσήσεων κενών μετά τη συρρίκνωση της δομής μειώνεται σημαντικά.
- Συγκολλημένη ξυλεία, για την κατασκευή των οποίων χρησιμοποιούνται προ-αποξηραμένα χαρτόνια. Αυτό αποφεύγει την παραμόρφωση του υλικού κατά τη διαδικασία στεγνώματος, και ως εκ τούτου η εσωτερική εργασία μπορεί να ξεκινήσει σχεδόν αμέσως μετά την εγκατάσταση του πλαισίου.
Το μέγεθος της ξυλείας επιλέγεται ξεχωριστά σε κάθε περίπτωση. Εκπονώντας το σχέδιο ενός διώροφου σπιτιού 6 επί 6 μέτρα, συνήθως το υλικό επιλέγεται 100 επί 150 mm. Ωστόσο, εάν το επιτρέπουν οι οικονομικές δυνατότητες, κατά την ανάπτυξη ενός σχεδίου για μια μελλοντική δομή, αξίζει αμέσως να εξεταστεί η δυνατότητα χρήσης ράβδου διαστάσεων 150 επί 200 mm ή 200 επί 200 mm.
Οι λάτρεις του ρωσικού στιλ επιλέγουν συχνά ένα ημερολόγιο αντί για μια μπάρα. Επιπλέον, όσο πιο παχύ είναι το υλικό που χρησιμοποιείται, τόσο πιο ελκυστικό θα είναι το τελικό εξοχικό σπίτι. Τα πλεονεκτήματα των κτιρίων περιλαμβάνουν:
- Μεγάλη διάρκεια ζωής
- Επαρκής αντοχή
- Ικανότητα απόρριψης μόνωσης κατά τη χρήση παχιών κορμών.
- Δημιουργία άνετων συνθηκών μέσα στο σπίτι οποιαδήποτε στιγμή του έτους.
- Δυνατότητα εξαίρεσης εσωτερική διακόσμηση.
Σχετικό άρθρο:
Έργα σπιτιών από μπαρ για μόνιμη κατοικία. Ενδιαφέρουσες διατάξεις και πλεονεκτήματα της κολλημένης και μορφοποιημένης ξυλείας σε ξεχωριστή έκδοση της πύλης μας.
Τούβλο
Το τούβλο ως δομικό υλικό έχει ορισμένα πλεονεκτήματα:
- Ευκολία τοποθέτησης
- Δυνατότητα σχηματισμού τοίχων διαφόρων σχεδίων με δυνατότητα επιλογής τοιχοποιίας.
- Αντοχή. Μια δομή από τούβλα μπορεί να διαρκέσει τουλάχιστον 100 χρόνια.
- Δύναμη;
- Φιλικότητα προς το περιβάλλον;
- Αξιοπιστία;
- Επαρκές επίπεδο ηχομόνωσης.
- Υψηλή ενεργειακή απόδοση
- Αντοχή στη φωτιά;
- Αντοχή στον παγετό;
- Ελκυστικότητα όταν χρησιμοποιείται με κατάλληλο διακοσμητικό υλικό.
Η τεχνολογία για την κατασκευή τοίχων είναι απλή, αλλά απαιτεί επαρκή προσόντα. Επιπλέον, όλες οι εργασίες πρέπει να εκτελούνται αυστηρά σύμφωνα με την τεκμηρίωση του ανεπτυγμένου έργου. Σας προσφέρουμε να εξοικειωθείτε με τη φωτογραφία έργων ιδιωτικών σπιτιών από τούβλα.
Χαρακτηριστικά της χρήσης αεριούχου σκυροδέματος και αφρού σκυροδέματος
Κτίρια από μπλοκ αερίου είναι αρκετά δημοφιλή λόγω των πλεονεκτημάτων αυτού του υλικού:
- Καλός χαρακτηριστικά θερμομόνωσης... Ανάλογα με την τοποθεσία του μελλοντικού κτηρίου, σε ορισμένες περιπτώσεις, μπορείτε να αρνηθείτε να μονώσετε τους τοίχους.
- Ευκολία επεξεργασίας. Τα μπλοκ αερίου κόβονται εύκολα στο μέγεθος πριόνι χειρός;
- Σύντομος χρόνος κατασκευής λόγω των μεγάλων γεωμετρικών παραμέτρων των μπλοκ.
- Καλή απόδοση ηχομόνωσης.
- Χαμηλό κόστος;
- Περιβαλλοντική ασφάλεια
- Διαπερατότητα ατμών, η οποία μειώνει την πιθανότητα υγρασίας.
Προσοχή! Το αεριζόμενο σκυρόδεμα έχει υψηλό επίπεδο αντοχής σε θλίψη, αλλά χαμηλή αντοχή σε θραύση και επομένως, κατά την ανέγερση διώροφης δομής, ο πρώτος όροφος πρέπει να ενισχυθεί με χαλύβδινες ράβδους.
Άλλα μειονεκτήματα είναι:
- Υψηλή ικανότητα απορρόφησης υγρασίας και επομένως οι τοίχοι πρέπει να είναι σοβάτισμα ή να καλύπτονται με ένα στρώμα αδιάβροχης βαφής
- Η πολυπλοκότητα της τελικής εργασίας λόγω του αυξημένου πορώδους του υλικού.
- Δυνατότητα για ρωγμές σε περιοχές με πίεση, όπως τοποθεσίες εγκατάστασης θύρα ή άνοιγμα παραθύρου;
- Ευθραυστότητα, αυξάνοντας τις απαιτήσεις στις συνθήκες μεταφοράς.
Σε αντίθεση με το αεριωμένο σκυρόδεμα, το αφρώδες σκυρόδεμα μπορεί να χρησιμοποιηθεί αποκλειστικά για την κατασκευή εσωτερικού χωρίσματα μέσα στο σπίτι, τα οποία εγκαθίστανται σύμφωνα με το αναπτυγμένο σχέδιο. Δεν μπορεί να χρησιμοποιηθεί για την κατασκευή φέροντων κατασκευών.
Ελαφρύ μεταλλικό πλαίσιο
Η μεταλλική βάση του κτηρίου περιλαμβάνει κάθετους στύλους, δοκοί, οριζόντια βιβλία και άλλα στοιχεία που συνδέονται με μπουλόνια για να σχηματίσουν μια ισχυρή, αξιόπιστη δομή. Η χρήση μόνωσης σάς επιτρέπει να αυξήσετε την ενεργειακή απόδοση του κτιρίου που χτίζεται. Για να αποκλειστούν οι διαβρωτικές διεργασίες, το μεταλλικό προφίλ που χρησιμοποιείται επικαλύπτεται με ειδικές αντιδιαβρωτικές ενώσεις ή γαλβανισμένο εν θερμώ.
Τα μεταλλικά σκελετά κτίρια έχουν πολλά πλεονεκτήματα:
- Σύντομος χρόνος κατασκευής (μπορεί να κατασκευαστεί σε 3-9 εβδομάδες, ανάλογα με την πολυπλοκότητα της κατασκευής που κατασκευάζεται).
- Η ικανότητα ακριβούς υπολογισμού της βάσης, αφού το βάρος του κτηρίου είναι γνωστό εκ των προτέρων.
- Κατασκευή ακριβείας όλων των στοιχείων του πλαισίου.
- Χαμηλό βάρος της κατασκευής, διευκολύνοντας τη διαδικασία μεταφοράς και την επακόλουθη συναρμολόγηση.
- Κανένα απόβλητο και συντρίμμια στο εργοτάξιο, καθώς μπορείτε να αρνηθείτε τη χρήση μιγμάτων και κονιαμάτων.
- Δυνατότητα κατασκευής όλο το χρόνο.
- Η δυνατότητα ανάπτυξης ενός σχεδίου για ένα σπίτι με μεγάλα ανοίγματα χωρίς πρόσθετα στηρίγματα ή οποιαδήποτε διάταξη.
- Φιλικότητα προς το περιβάλλον και πυρασφάλεια.
Προσοχή! Το ελαφρύ μεταλλικό πλαίσιο είναι πιο ακριβό.
Κανόνες σχεδιασμού δαπέδου σπιτιού
Κατά την ανάπτυξη της διάταξης των σπιτιών και των εξοχικών σπιτιών με δύο ορόφους, λαμβάνονται υπόψη οι ανάγκες όλων των μελών της οικογένειας. Αυτό επιτρέπει όχι μόνο να κάνει το κτίριο άνετο για διαβίωση, αλλά και να λαμβάνει υπόψη το λειτουργικό φορτίο στα δάπεδα και το θεμέλιο. Εκτός από τη γενική ιδέα, εκπονείται ένα σχέδιο για κάθε όροφο.
Προσοχή! Είναι απαραίτητο να προσδιορίσετε εκ των προτέρων τη θέση των συσκευών θέρμανσης, ειδικά εάν έχει προγραμματιστεί εστία ή τζάκι.
Σωστή διάταξη του πρώτου ορόφου
Κατά την ανάπτυξη ενός έργου για ένα μικρό σπίτι, δίνεται ιδιαίτερη προσοχή στη σωστή διάταξη. Κατά κανόνα, στο ισόγειο υπάρχουν δωμάτια για διάφορους σκοπούς, μερικά από τα οποία είναι τα ίδια για όλα τα κτίρια. Τις περισσότερες φορές έχουν:
- Το σαλόνι όπου θα φιλοξενηθούν οι επισκέπτες.
- Κουζίνα;
- Μπάνιο για τους επισκέπτες
- Διάδρομος ή αίθουσα?
- Λεβητοστάσιο ή λεβητοστάσιο.
Συμβουλή! Το δωμάτιο ντέφι στην είσοδο του σπιτιού δεν θα επιτρέψει την είσοδο κρύου αέρα από το δρόμο στα δωμάτια, και ως εκ τούτου θα είναι πολύ πιο εύκολο να διατηρηθεί μια άνετη θερμοκρασία.
Εκτός από τα αναφερόμενα δωμάτια, εάν υπάρχει ελεύθερος χώρος στο ισόγειο, μπορείτε να παρέχετε:
- Υπουργικό συμβούλιο;
- Τραπεζαρία;
- Ξενώνας.
Έργα εξοχικών σπιτιών και σπιτιών που διατίθενται δωρεάν υποδεικνύουν τη δυνατότητα συμπερίληψης του πρώτου ορόφου του γκαράζ στο σχέδιο. Για αυτόν, πρέπει να παρέχεται ξεχωριστή είσοδος και η δυνατότητα διέλευσης μέσα στο σπίτι.Μακροί και στενοί διάδρομοι πρέπει να αποφεύγονται για να είναι επιτυχές το σχέδιο. Αυτό μπορεί να επιτευχθεί συνδυάζοντας πολλά δωμάτια. Εγγράματος χωρισμός εις ζώνας βοηθήστε να χωρίσετε ένα δωμάτιο από το άλλο.
Σωστή διάταξη του δεύτερου ορόφου
Στα κλασικά έργα σπιτιών, ο 2ος όροφος είναι ένας χώρος αναψυχής για όλη την οικογένεια. Είναι συνηθισμένο να τοποθετείτε εδώ:
- Υπνοδωμάτια;
- Γκαρνταρόμπα;
- Μπάνια εξοπλισμένα με μπανιέρα ή ντους.
- Παιδικά δωμάτια.
Εάν το επιτρέπει η περιοχή του σπιτιού, στον δεύτερο όροφο μπορείτε να επισημάνετε ένα δωμάτιο που θα χρησιμοποιηθεί για οικογενειακές διακοπές. Αυτό είναι ένα είδος αναλόγου του καθιστικού, που προορίζεται αποκλειστικά για άτομα που ζουν στο σπίτι.
Συμβουλή! Εάν υπάρχει γκαράζ στο σπίτι, θα πρέπει να τοποθετήσετε γκαρνταρόμπα ή αποθήκη πάνω από αυτό. Αυτή η περιοχή δεν είναι κατάλληλη για υπνοδωμάτιο ή παιδικό δωμάτιο.
Κανόνες για το συνδυασμό πολλών δωματίων
Εάν η περιοχή του σπιτιού είναι μικρή, μπορείτε να συνδυάσετε μεμονωμένα δωμάτια αφαιρώντας μερικά χωρίσματα... Τέτοιος διάταξη στούντιο σας επιτρέπει να μεγιστοποιήσετε τον ελεύθερο χώρο. Τις περισσότερες φορές, στο ισόγειο, η κουζίνα, το σαλόνι και η αίθουσα συνδυάζονται σε ένα ενιαίο σύνολο, με την υποχρεωτική κατανομή των αντίστοιχων ζωνών. Διατίθεται νησί για την κουζίνα. Ένα πλήρες σετ με μετρητή ράβδων με αυτήν την επιλογή είναι υποχρεωτικό. Το σχήμα του εξαρτάται από το σχήμα του δωματίου. Οι πιο διαδεδομένες είναι τριγωνικές, ημικυκλικές δομές σχήματος U, ωστόσο, αν θέλετε, μπορείτε να δημιουργήσετε ένα αυθαίρετο σύστημα σύμφωνα με ένα μεμονωμένο σκίτσο.
Ο συνδυασμός πολλών δωματίων σάς επιτρέπει να εγκαταλείψετε τους διαδρόμους. Θα είναι δυνατό να μπείτε σε ένα γραφείο ή ένα μπάνιο από οποιοδήποτε σημείο του συνδυασμένου χώρου. Εάν η περιοχή των χώρων είναι αρκετά μεγάλη, θα πρέπει να εγκαταλειφθεί η ιδέα του συνδυασμού πολλών χώρων στο ισόγειο.Σε αυτήν την περίπτωση, θα πρέπει να εγκαταστήσετε εσωτερικά χωρίσματα, με βάση τον σκοπό του δωματίου.
Συμβουλή! Μια πτήση από σκάλες μπορεί να χρησιμοποιηθεί ως φυσικό διαμέρισμα.
Στον δεύτερο όροφο, θα πρέπει επίσης να αποφύγετε τη δημιουργία διαδρόμων. Τις περισσότερες φορές, τα μικρά «τακούνια» οργανώνονται με ελεύθερο χώρο που βρίσκεται μπροστά από την σκάλα και χρησιμοποιούνται για να εισέλθουν στα δωμάτια. Μερικές φορές ένα υπνοδωμάτιο συνδυάζεται με πολλά μικρά δωμάτια που χρησιμοποιούνται ως καμαρίνια.
Χαρακτηριστικά σχεδίων για διώροφα σπίτια με σοφίτα
Σκέφτομαι την οικοδόμηση σπίτια σοφίτας, θα πρέπει να αποφασίσετε αμέσως για ποιο σκοπό θα κατασκευαστεί αυτή η υπερδομή. Για να λάβετε την τελική απόφαση σχετικά με την ανάγκη ανάπτυξης ενός τέτοιου έργου, αξίζει να γνωρίζετε εκ των προτέρων όλα τα πλεονεκτήματα και τα μειονεκτήματα της κατασκευής σοφίτα... Τα οφέλη περιλαμβάνουν:
- Ευπαρουσίαστη εμφάνιση. Μια οροφή με αέτωμα με σπάσιμο και πλαγιές σε ορισμένες γωνίες μπορεί να προσθέσει ελκυστικότητα.
- Η δυνατότητα δημιουργίας πρωτότυπου εσωτερικού, με τη σωστή επιλογή του σχήματος της σοφίτας.
Τα μειονεκτήματα ενός τέτοιου σπιτιού περιλαμβάνουν:
- Αυξημένες απαιτήσεις για την ποιότητα του αερισμού και της θερμομόνωσης. Εάν παραβιαστεί η τεχνολογία εκτέλεσης εργασιών, κατά τη διάρκεια της λειτουργίας οι τοίχοι και η οροφή θα παγώσουν, θα εμφανιστεί συμπύκνωση.
- Δυσκολία με φυσικό φωτισμό. Η εγκατάσταση κάθετων παραθύρων δεν παρέχει επαρκή φωτισμό. Απαιτείται εγκατάσταση ειδικών παραθύρων, γεγονός που θα αυξήσει το κόστος κατασκευής.
- Η παρουσία μιας «νεκρής ζώνης». Με την ίδια συνολική επιφάνεια του πρώτου και σοφίτα, το τελευταίο έχει πολύ λιγότερο χρήσιμη επιφάνεια λόγω της παρουσίας κεκλιμένου τοίχου. Δεν είναι δυνατή η εγκατάσταση τυπικών επίπλων σε αυτήν την περιοχή.
Παρά τα αναφερόμενα μειονεκτήματα, τέτοια σχέδια είναι αρκετά δημοφιλή. Σας προσφέρουμε να εξοικειωθείτε με τα έργα και τις φωτογραφίες των σπιτιών με μια σοφίτα που έχει ήδη χτιστεί. Θα βοηθήσουν στον προσδιορισμό της σκοπιμότητας κατασκευής ενός διώροφου σπιτιού ενός τέτοιου σχεδίου στον ιστότοπό σας.
Σχετικό άρθρο:
Σπίτι με σοφίτα: έργα, φωτογραφίες. Τα σοφίτα είναι μια πρακτική και πολύ ελκυστική ιδέα για ένα ιδιωτικό οικόπεδο. Έργα, φωτογραφίες επιτυχημένων εσωτερικών χώρων και προτάσεις από έμπειρους κατασκευαστές βρίσκονται στο υλικό μας.
Χαρακτηριστικά έργων διώροφων σπιτιών με γκαράζ
Εάν η οικογένεια έχει αυτοκίνητο, το γκαράζ στην πίσω αυλή γίνεται σημαντικό. παράρτημα... Με περιορισμένη περιοχή της περιοχής, η επιλογή ενός ανεξάρτητου κτηρίου πρέπει να εγκαταλειφθεί αμέσως. Εκτός από τις πλατείες για το ίδιο το γκαράζ, θα πρέπει να παρέχετε επιπλέον μέτρα για τη διέλευση μεταξύ του σπιτιού και του γκαράζ.
Έργα διώροφων σπιτιών με γκαράζ βοηθούν στην αξιοποίηση του διαθέσιμου χώρου. Οι λύσεις που προσφέρουν οι σχεδιαστές θα επιτρέψουν την τοποθέτηση όχι ενός αυτοκινήτου, αλλά δύο ή περισσότερων κάτω από μια στέγη. Ο χώρος πάνω από το γκαράζ μπορεί να διατεθεί για μία από τις εγκαταστάσεις, ή ταράτσα.
Χαρακτηριστικά ενός διώροφου σπιτιού με βεράντα
Εάν δεν υπάρχει επιθυμία εγκατάστασης στον ιστότοπο κιόσκι, αξίζει να εξεταστεί η δυνατότητα ανέγερσης κτιρίων κατοικιών με ανοιχτό χώρο βεράντα... Εδώ μπορείτε να συγκεντρώσετε μεγάλες εταιρείες για να πιείτε τσάι ή απλά να συνομιλήσετε.
Οι διαστάσεις μιας τέτοιας επέκτασης και ο σχεδιασμός της πρέπει να είναι συνεπείς με τις διαστάσεις του σπιτιού και την επιλεγμένη στιλιστική κατεύθυνση. Αυτό εξετάζεται ακόμη και στο στάδιο της ανάπτυξης ενός σχεδίου για τη μελλοντική δομή. Σε αυτήν την περίπτωση, το τελικό κτίριο θα έχει ευδιάκριτη εμφάνιση.
Επισκόπηση και σχέδια έργων διώροφων σπιτιών
Δεν είναι πάντα δυνατό να προσδιοριστούν τα σχεδιαστικά χαρακτηριστικά των μελλοντικών κατοικιών, για πρώτη φορά.Προς το παρόν, μπορείτε να βρείτε σχεδιαγράμματα για έργα κατοικιών και εξοχικών σπιτιών δωρεάν. Μπορούν να χρησιμοποιηθούν ως ιδέα για μεταγενέστερη εφαρμογή.
Συμβουλή! Μελετώντας τα τυπικά έργα διώροφων σπιτιών στον κατάλογο, θα πρέπει να προσέξετε το μέγεθος του κτιρίου.
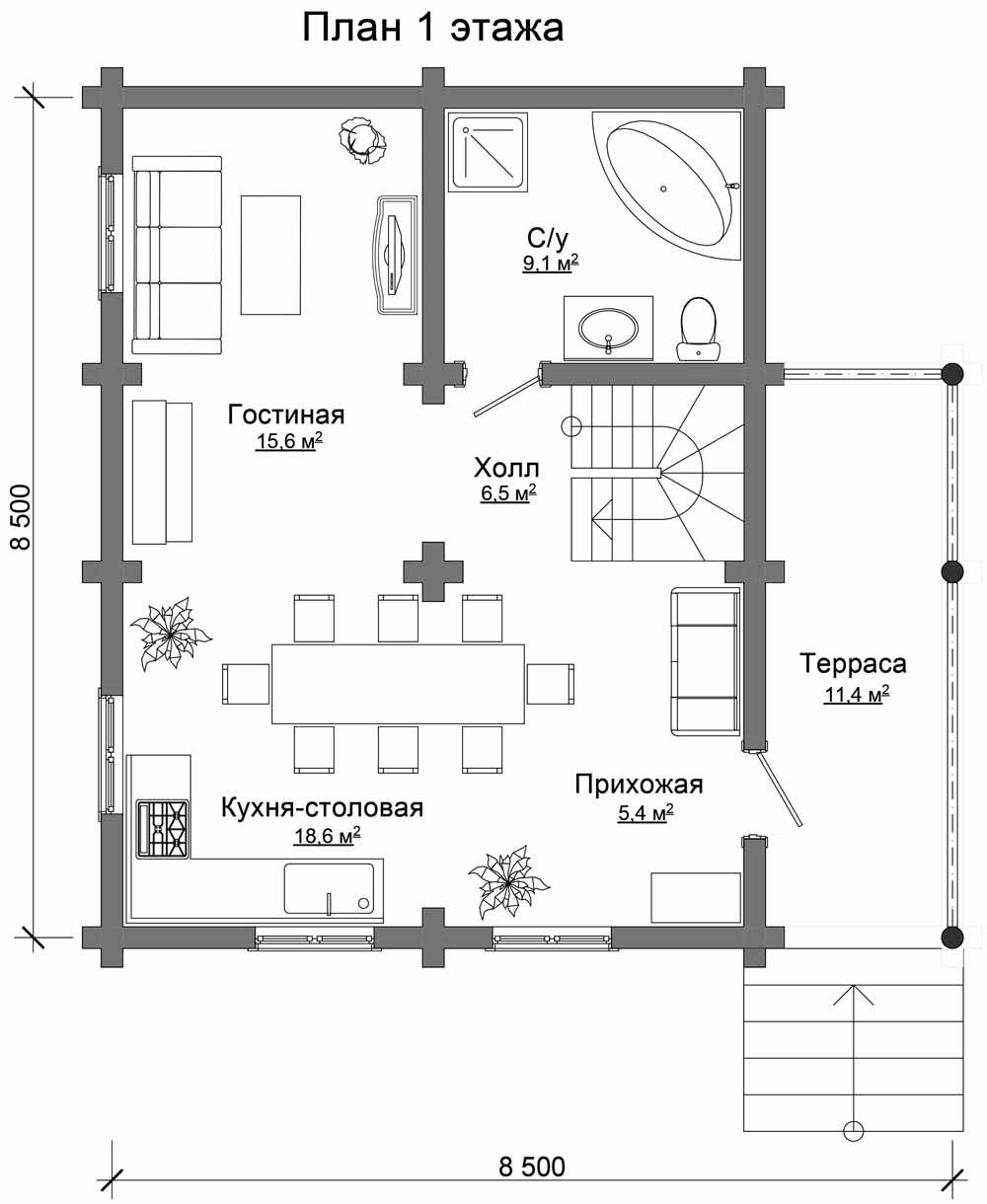
Διάταξη σπιτιού 9 επί 9 m: πιθανές επιλογές
Κατά την ανέγερση κτιρίων με παρόμοιες συνολικές διαστάσεις, η τεχνολογία κατασκευής πρέπει να τηρείται αυστηρά. Το εντυπωσιακό βάρος αυξάνει τις απαιτήσεις στη βάση. Το θεμέλιο πρέπει να αντέχει το εφαρμοζόμενο φορτίο.Η διάταξη ενός σπιτιού 9 έως 9 έχει σχεδιαστεί λαμβάνοντας υπόψη την ισότητα των τοίχων. Οι κρεβατοκάμαρες στον δεύτερο όροφο έχουν ίσο εμβαδόν εάν η σκάλα βρίσκεται στην άλλη πλευρά.
Κατά την ανάπτυξη της διάταξης ενός διώροφου σπιτιού 9 έως 9 μέτρων, πρέπει να δίνεται προσοχή σε κάθε όροφο. Μετά από αυτό, μπορείτε να αρχίσετε να διακοσμείτε την πρόσοψη.
Το σχέδιο ενός διώροφου σπιτιού 10 επί 10 μέτρα: μια τυπική λύση
Εάν η περιοχή του ιστότοπου το επιτρέπει, το έργο ενός διώροφου σπιτιού 10 επί 10 μέτρα θα είναι η καλύτερη επιλογή. Αυτή η περιοχή θα είναι αρκετή για να αναπτύξει μια κατάλληλη λύση και να επιλέξει τη βέλτιστη διάταξη. Το σχέδιο ενός διώροφου σπιτιού 10 επί 10 μ. Σας επιτρέπει να αυξήσετε την πλατεία μεμονωμένων δωματίων.
Έργο διώροφης κατοικίας 7 επί 7 μ
Είναι δύσκολο να ανεγερθούν κτίρια με μεγάλες διαστάσεις σε ένα μικρό χώρο. Σε αυτήν την περίπτωση, είναι σκόπιμο να εξεταστεί το ενδεχόμενο κατασκευής σπιτιού με μικρή έκταση. Με μια μικρή κατειλημμένη περιοχή του προσωπικού οικοπέδου, είναι δυνατή η κάλυψη όλων των κύριων χώρων: κουζίνα, υπνοδωμάτια, σαλόνι.
Ένα τυπικό έργο ενός διώροφου σπιτιού 7 επί 7 μ. Σας επιτρέπει να γίνετε ιδιοκτήτης ενός άνετου σπιτιού χωρίς σημαντικές οικονομικές επενδύσεις. Ωστόσο, μην περιορίζετε τα χρησιμοποιούμενα υλικά.
Συμβουλή! Είναι καλύτερα να αναθέσετε τη διάταξη του σπιτιού 7 με 7 μέτρα σε επαγγελματίες.
Διάταξη σπιτιού 6 επί 8 μέτρα: μια ενδιαφέρουσα λύση
Το ορθογώνιο σχήμα του σπιτιού κάνει ορισμένες απαιτήσεις για τη διαρρύθμιση μιας κατοικίας 6 έως 8 μ. Στο ισόγειο υπάρχει κουζίνα με σαλόνι, και στον δεύτερο όροφο, υπάρχουν υπνοδωμάτια.
Εάν οι παράμετροι του ιστότοπου δεν επιτρέπουν την τοποθέτηση διώροφου κτηρίου 6 × 8 m, αξίζει να εξεταστεί το έργο ενός σπιτιού 8 επί 6 m.
Διάταξη σπιτιού 6 × 10 μ
Ένα άλλο παράδειγμα ορθογώνιας διάταξης είναι το έργο μιας κατοικίας 6 επί 10 μ. Περιλαμβάνει την τοποθέτηση δωματίων προσανατολισμένων στον επισκέπτη στον πρώτο όροφο και υπνοδωμάτια για άτομα που ζουν στο σπίτι στο δεύτερο. Υπάρχει αρκετός χώρος για να παρέχεται γκαρνταρόμπα και ακόμη και ένα μικρό γυμναστήριο.
Διάταξη σπιτιού 9 x 6 m: τυπικές λύσεις
Η τυπική διάταξη ενός σπιτιού 9 x 6 m επιτρέπει μια ορθολογική ρύθμιση όλων των κύριων δωματίων. Σε αυτήν την περίπτωση, το γραφείο μπορεί να βρίσκεται όχι μόνο στον πρώτο όροφο, αλλά και στον δεύτερο.
Όταν εργάζεστε σε οικιακό έργο 9 επί 6 μέτρα, θα πρέπει να προσθέσετε ατομικότητα στο σπίτι. Ειδικά αν η οικογένεια έχει μικρά παιδιά.
Η διαρρύθμιση ενός διώροφου σπιτιού 12 επί 12 μέτρα
Η μεγάλη έκταση του σπιτιού σας επιτρέπει να παρέχετε γκαράζ. Σε ένα διώροφο σπίτι 12 επί 12 μ., Μπορείτε να σχεδιάσετε ένα γκαράζ διαστάσεων 6 επί 6 μ.
Το κόστος κατασκευής ενός διώροφου σπιτιού με κλειδί στο χέρι - έργο, κατασκευή
Δεν είναι απαραίτητο να εκτελείτε μόνοι σας όλες τις κατασκευαστικές εργασίες. Είναι δυνατή η παραγγελία κατασκευής με το κλειδί στο χέρι. Έργα διώροφων σπιτιών με σχέδιο και φωτογραφίες θα σας επιτρέψουν να αξιολογήσετε το τελικό αποτέλεσμα. Σας προτείνουμε να εξοικειωθείτε με τις μέσες τιμές για τέτοιες υπηρεσίες:
Έργα εσωτερικού χώρου: φωτογραφίες ενδιαφέρων λύσεων
Σας προτείνουμε να εξοικειωθείτε με τη φωτογραφία των οικιακών έργων που εφαρμόζουν ενδιαφέρουσες λύσεις.



























































































