DIY greenhouse for cucumbers: ideas for ready-made designs with photos
Not every region can boast of suitable conditions for growing cucumbers in the open field from early spring. Central Russia has a great chance to crunch fresh fragrant cucumbers long before the hot summer days. To do this, you just need to build a greenhouse for cucumbers with your own hands. Photos will help you decide on the choice of arrangement, and the advice of today's review by the homebase.techinfus.com/en/ editorial staff will help you avoid common mistakes in working on a building.
The content of the article
- 1 Advantages and disadvantages of homemade cucumber greenhouses
- 2 Options for greenhouses for cucumbers with photos of do-it-yourself designs
- 3 How to choose the right material for the frame and sheathing of a greenhouse for cucumbers
- 4 When does a greenhouse need a foundation
- 5 Where to place a greenhouse in a summer cottage
- 6 How to make a borage in the country with your own hands - general provisions
- 7 How to make a greenhouse for cucumbers from arcs with a film coating with your own hands
- 8 How to make a borage from wood and polycarbonate with your own hands
- 9 How to make a recessed greenhouse for cucumbers from old window frames with your own hands
- 10 Rules for the operation of greenhouses for cucumbers
- 11 Video: do it yourself greenhouse
Advantages and disadvantages of homemade cucumber greenhouses
Each structure has its pros and cons. To decide which greenhouse to build, consider the advantages and disadvantages of building a greenhouse for cucumbers with your own hands.
Pros:
- you can select material in accordance only with your own ideas about the future building;
- the dimensions of the future structure can be any, based on the needs of the site owner;
- a greenhouse made with your own hands is much easier to dismantle with the onset of the cold season.
Minuses:
- It will be faster to buy a ready-made greenhouse than to build it yourself, because the process can take a lot of time and effort;
- you can make a mistake in the calculations and spend much more on materials than a ready-made greenhouse for cucumbers would cost.
Options for greenhouses for cucumbers with photos of do-it-yourself designs
Let's take a look at other people's sites and get acquainted with different types of greenhouse designs for cucumbers, which the owners built on their own. We offer several photos of borage greenhouses, made by hand.
In the photo above, a budget version of a greenhouse, assembled from a box-base and curved pipes.

A similar version of a pre-fabricated greenhouse: instead of a box, slate dug into the ground is used

Large-scale greenhouse made of glass and wood: such a building cannot be dismantled with the onset of winter, but it will also last more than one season

Wooden box and wooden frame with a film stretched from above - large harvests of cucumbers are provided
It all depends on the desire of the owner of the site and the possibilities of using this or that material.
Related article:
Do-it-yourself greenhouse from a profile pipe. A separate review provides detailed instructions for the design and construction of a structure from a shaped pipe with photo examples.
How to choose the right material for the frame and sheathing of a greenhouse for cucumbers
If all the structures have been studied, and the desired type of structure has been selected, then it is time to decide on the material for the frame and sheathing. Wooden blocks, boards, PVC pipes, HDPE, polypropylene narrow pipes are perfectly suited for the frame, a galvanized metal profile used for drywall is convenient to use.
The cladding material can be polyethylene, reinforced transparent film, spandbond, lutrasil, polycarbonate and glass. Each material has its own characteristics: if you prefer to build a permanent greenhouse, then you should opt for a combination of metal, wood, polycarbonate or glass. For a seasonal greenhouse, materials that are easier to work with will do.
Related article:
Do-it-yourself greenhouse made of plastic pipes. A separate review provides a detailed overview of the use, design and installation of PVC pipe greenhouses.
When does a greenhouse need a foundation
A foundation is not required for summer seasonal buildings, but if there is a desire to build a solid, durable greenhouse, then a foundation will definitely be needed for it. The foundation is considered the guarantor of the stability and reliability of the building, protecting it from deformation during possible ground movement.

A foundation that can later be veneered with natural or artificial stone can become a noteworthy structure in the garden
Make strip foundation from such material: timber, sleepers, cement, crushed stone. For columnar foundation use reinforced concrete, bricks, blocks, wooden bar, metal piles.
Where to place a greenhouse in a summer cottage
The goal of the greenhouse is to produce a quick and impressive vegetable harvest. Therefore, it is required to choose the right place for installing the greenhouse. First of all, the illumination of the place is taken into account, for which the course of the sun across the sky serves as a reference point. A shady location would be extremely unfortunate. The building is oriented, like beds in the open field, to the cardinal points, the wind rose is also taken into account.
Cucumber is a light-demanding culture, but gives preference to morning and evening rays. That is why the greenhouse is placed with its end to the south and north. A strong wind will also not please gentle whips, so it is better to put a greenhouse where the wind is not so rampant. If there is a lowland on the site, then installing a greenhouse there will not be the best idea due to spring flooding.If there is a southern or eastern slope, it will be possible to place the building on any other than the northern one.
Advice! The greenhouse should be easily accessible for all communications in order to facilitate your own work.
How to make a borage in the country with your own hands - general provisions
In order to know how to properly make a greenhouse for cucumbers, you need to act according to the plan:
- The first place will be visualization, preferably in the form of a drawing with all the markings.
- Depending on the type of construction chosen, materials and tools are selected. To work with wood, you will need a grinder and discs, a drill, self-tapping screws, a hammer. The metal profile will have to be cut and soldered, so you will need a welding machine, electrodes, PVC pipes for frame, pipe soldering iron and matching fittings for connection, perforated aluminum tape.
- Covering material can be glass, polycarbonate, film and even plastic bottles. For the film, you will need scissors, for glass, respectively, a glass cutter.
- After the readiness of the drawings and a set of building materials and tools, you can begin to build the structure.
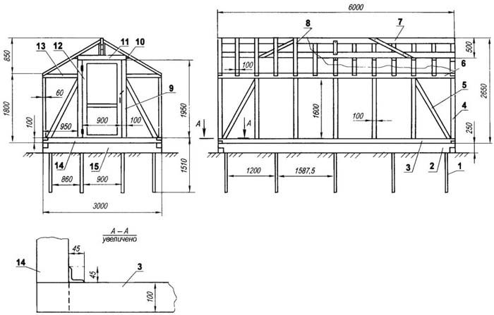
In the photo below are several approximate diagrams of greenhouses for do-it-yourself cucumbers:
Related article:
DIY polycarbonate greenhouse. Drawings, types of structures, step-by-step construction, advice and recommendations of specialists and much more in a separate publication of our portal.
How to make a greenhouse for cucumbers from arcs with a film coating with your own hands
Greenhouse arch with arches - the leader among homemade greenhouses. The collection takes only a few hours, and the structure is also quickly disassembled in the fall and put away for storage until the next season.
For the foundation of the greenhouse, you will need a box of boards. The convenient width of the board is 15-20 cm. All wood is treated with an antiseptic. To assemble the box, iron corners and self-tapping screws are purchased. For the frame, use PVC pipes Ø20-25 mm. A dense wire will serve as a tie. It remains to prepare the selected covering material.
Advice! Prepare 3-6 meter pipes.
Making the base
The base is made in the form of a box - this is both the fastening of the entire structure, and the retention of fertile soil inside the greenhouse. It would be better to build a base from a wooden bar with a cross section of at least 10 × 10 cm, although just wide boards will do. The building material is sawn according to the dimensions of the drawing and instructions, connected with corners and self-tapping screws.
Advice! If there is no desire or opportunity to tinker with the timber, then the vertically inserted parts of the slate, which will also prevent the soil from washing out of the greenhouse, will do.
Installation and connection of arcs with ties
As soon as the box of the mini-greenhouse for cucumbers is ready, they move on to arranging the arches. They need to be located no further than a meter from each other. So that the arcs do not stagger, 2-3 screeds are made along them along the entire length of the greenhouse. The arcs are inserted directly into the ground or attached to a wooden box. The fittings should be cut with a grinder into pieces of 50-60 cm, and the pipes can be cut into pieces of 3 meters: with such an arc length, the height of the greenhouse will be equal to one meter.
On the ground in the marked places, cuttings of reinforcement are driven in with a mallet or hammer to a depth of 25 cm.
Important! The fittings must be on the same level on each side!
The pipes can be easily bent and inserted into the fittings near the ground. To secure the structure with high quality, use a perforated tape. The arcs can be skewed a little, but to correct this temporary defect, a tie is made of several long pipes, which is attached to the arcs with wire.
The greenhouse needs to be closed from the ends, any material will do: both film and polycarbonate, or you can simply pull off the edges of the film and fix them together.
Fastening the film
The film is taken from the calculation of the length of the pipes. If the length of the greenhouse is 3 meters, then the width of the covering material should not be less than 4 meters, because the film must be fixed from below. The length of the material will take 7 meters.
The film is cut with a margin of 2.5-3 meters in length, the sleeve is cut, and the canvas is straightened. The one-piece canvas is laid on the arcs from above and aligned along all edges. Now you need to fix the film in any way.
Advice! The best attachment in this case will be 10-15 cm pieces of garden hose, cut lengthwise.
Related article:
DIY greenhouse made of scrap materials. Structural features, the use of various materials to create a reliable load-bearing frame and high-quality cladding, step-by-step installation instructions with the rules for choosing a suitable place on the land are in our publication.
How to make a borage from wood and polycarbonate with your own hands
Polycarbonate cucumber greenhouses are very popular. The use of synthetic material has been going on for over 40 years in horticulture and agriculture. The photo below shows an aesthetic polycarbonate borage.
An Israeli invention with a transparency of 80-85% has become popular not only for its external aesthetics and neat appearance, but also for characteristics such as resistance to natural phenomena such as hail, wind, rain, snow and the minimum heat transfer coefficient. A polycarbonate greenhouse for cucumbers can be bought ready-made or made yourself.
Assembly, installation and processing of the frame
To get an excellent result, you need to pay attention to the recommendations for assembling and installing the frame. It is recommended to use polycarbonate honeycomb sheets with a thickness of 4-6 mm. Polycarbonate is a material that does not allow air to pass through, therefore, even at the stage of drawings, the problem of ventilation is solved, as well as the access of water to the greenhouse.
Material such as polycarbonate is easy to work with - you can use a regular sharp knife to cut. If the material is used sparingly, then there will be less waste. The following tools and materials are useful for construction:
- metal profiles or wooden bars are used as a frame;
- polycarbonate sheets;
- film;
- screwdriver with self-tapping screws.
Advice! It is important to treat wooden or metal products: wood with an antiseptic, and metal with an anti-corrosion agent.
Do-it-yourself polycarbonate greenhouse assembly for cucumbers looks like this:
- The foundation laying consists of digging a trench 0.5 m deep and 2 m wide. The length of the trench is the same as the length of the greenhouse.
- The trench is covered with sand and gravel, and a 25-30 cm layer of soil is placed on top.
- The insulating layer consists of a foil.
- The wooden base matches the size of the base. The base is fixed.
- Next, the racks are installed with a step of 1 m, which are attached to the base.
Sheathing of the frame with polycarbonate
The last step is attaching the polycarbonate. Due to the fragility of the material, metal washers must be placed under the screws.

The sheets are convenient to work with, bend easily, but, nevertheless, it is not worth checking them for strength specially
First, they close the ends of the greenhouse and make a door. Then they begin to lay and attach the sheets on each side of the greenhouse.The work of making a polycarbonate borage greenhouse is not difficult and will hardly take more than one day, especially if there are helpers.
How to make a recessed greenhouse for cucumbers from old window frames with your own hands
Not everyone is familiar with a buried greenhouse for growing cucumbers. This is an easy-to-use greenhouse that allows you to please with the earliest harvest.The small size does not allow growing crops on an industrial scale, and inside it is quite crowded. But the high yields of the first crunchy cucumbers are worth it.
Here's what you need: a wooden beam, polycarbonate or a frame with glass, peat, straw, organic matter.
Digging and filling trenches with biofuel
Once the snow has melted, you can start digging a trench. The depth can be 50-60 cm, width - 80-100 cm. The length is chosen by the owner of the site. If the soil is sandy, it is advisable to strengthen the trench with boards.
Simple organic matter is laid in the trench: manure, sawdust, straw and the layer is tamped. Everything is covered with fertile soil of at least 25 cm. Then straw is scattered on top for thermal insulation and mulch.
Production of a box and laying of window frames
The box is made of solid materials at hand. To keep warm, it is important to sprinkle the outer wall with peat or bales of compressed straw. This will provide additional support for the frames. Old window frames with glass are simply laid on top of the greenhouse.
Heating the beds with hot water spill
In early spring, it is required to warm up the soil. To do this, you need to spill the soil with hot water, cover the ridge with film and close all the frames. After 2-3 weeks, a reaction will occur between the heating soil and hot manure: both the soil and the air will warm up.
Attention! For such an early greenhouse, you need to choose the seeds of self-pollinated varieties and hybrids.
The greenhouse is actively used up to frost.
Rules for the operation of greenhouses for cucumbers
If the greenhouse is covered with a film, then it must be carefully removed and cleaned for the winter, but caring for polycarbonate will be more serious:
- NO to any fire near the greenhouse;
- NO abrasive detergents - it is enough to wipe the polycarbonate with water and ordinary soapy water;
- In winter, it is better to remove the polycarbonate sheets and store them indoors.
We talked about simple ways to build large and small greenhouses made of polycarbonate and other materials for growing cucumbers. The only thing left is to make a greenhouse. We hope this video helps you.








































