Mide siete veces: elige el mejor proyecto de casa de troncos
Si desea reducir los costos de construcción y tener en cuenta todos los matices del uso de la vivienda durante la operación por adelantado, preste atención a este artículo. En la publicación de hoy de la redacción de homebase.techinfus.com/es/, le diremos cómo se deben elaborar los proyectos de casas a partir de un registro. En este artículo, le presentaremos el concepto de qué es un proyecto de casa individual, cuáles son las diferencias entre las opciones de construcción de verano y las opciones de construcción durante todo el año, cuál es la secuencia de trabajo de construcción y levantamiento, y a qué debe prestar atención al elaborar un presupuesto y un plan de construcción.

Las características del consumidor de un edificio de cualquier nivel de complejidad están determinadas por la calidad de la preparación de la documentación del proyecto.
El contenido del artículo
- 1 Ventajas, desventajas, características de las casas de troncos modernas.
- 2 Tipos de proyectos de casas a partir de registros redondeados, una descripción general de las ofertas actuales con precios.
- 3 Características del desarrollo de proyectos de una casa de madera a partir de un tronco redondeado.
- 4 Diferencias entre proyectos de edificios de madera de verano de casas de troncos para residencia permanente.
- 5 Construir una casa a partir de un tronco calibrado o tala manual: los pros y los contras de diferentes tecnologías
- 6 Proyectos de casas a partir de un tronco redondeado con fotos y comentarios útiles.
- 7 Formación del precio del proyecto y construcción de una casa de troncos, una casa de troncos llave en mano.
- 8 Elegir el mejor proyecto para una casa a partir de un registro: conclusiones e información adicional
- 9 Video: descripción de la implementación del proyecto de una casa a partir de un registro.
Ventajas, desventajas, características de las casas de troncos modernas.
Sin exagerar, estos materiales de construcción pueden llamarse únicos. Cada tronco tiene un patrón de corte específico. Además de la apariencia exclusiva, hay varias ventajas importantes a tener en cuenta:
- limpieza ecológica;
- instalación rápida;
- facilidad de procesamiento de materiales;
- excelentes propiedades de aislamiento térmico;
- peso razonable que no aumente indebidamente la carga en el suelo y los cimientos;
- en una casa de madera, la microventilación natural facilita el mantenimiento de las condiciones de temperatura;
- fitoncidas saludables que mejoran la composición del aire en las habitaciones.
También se deben enumerar las desventajas para un análisis objetivo:
- Los productos de madera se dañan por los cambios de humedad y temperatura.
- Deben estar protegidos de insectos dañinos en descomposición.
- El material es inflamable, por lo que se requieren medidas especiales de seguridad contra incendios.
- Su resistencia limitada debe tenerse en cuenta al crear el marco estructural del edificio durante la operación.
- La vida útil típica de las estructuras de madera es menor que la de los análogos hechos de hormigón, ladrillos.
Las dimensiones de los productos de madera cambian significativamente a medida que se secan. La casa de troncos a veces se deja durante varios meses después de completar el montaje. Además, al instalar bloques de ventanas y puertas, se utilizan huecos tecnológicos con un relleno suave. Estas características aumentan el costo total.

La práctica a veces refuta los supuestos teóricos. Estas casas noruegas permanecen intactas durante siglos sin el uso de tratamientos protectores modernos.
Artículo relacionado:
Las vigas de madera son la mejor solución para tu hogar. Ventajas y desventajas del material, variedades y precios en una publicación separada de nuestro portal.
Tipos de proyectos de casas a partir de registros redondeados, una descripción general de las ofertas actuales con precios.
El costo de la documentación de un proyecto depende de muchos factores. Un juego estándar de dibujos se puede comprar más barato. Hacer ajustes está asociado con el trabajo de especialistas y los correspondientes costos adicionales. Los más caros son los proyectos de casas de troncos, creados de acuerdo con una tarea técnica única.
Proyecto de boceto de casa
Estos conjuntos de documentos contienen indicadores técnicos y económicos generales. Un dibujo de un edificio con dimensiones le permitirá elegir la ubicación dentro de los límites del terreno.

En los planos de las habitaciones, puede experimentar con la disposición de muebles, equipos, verificar la conveniencia de los pasillos.
Además de las vistas desde todos los lados, puede solicitar un boceto tridimensional de la estructura y los interiores interiores. Dichos materiales se crean en forma tridimensional con la posibilidad de visualización desde diferentes puntos. El costo de un borrador de diseño de una casa de troncos es de 80-140 rublos. por m² de la superficie total.
Proyecto de casa individual
Para la construcción, aprobación de permisos oficiales, registro estatal de una propiedad, es necesario preparar un conjunto completo de documentación. Contiene dibujos con secciones, una descripción de unidades complejas, cálculos de ingeniería.

Se utilizan dibujos especiales para cortar espacios en blanco, elaborando una especificación visual general
Desarrollado por separado suministro de agua, otros sistemas de ingeniería. Si es necesario, realizar encuadernación en el suelo, hacer proyectos diseño de exteriores, edificios adicionales. El costo del paquete principal de documentación es de 140-250 rublos. por m².
Proyecto de casa típica
Un kit listo para usar no solo es más económico que la preparación individual de un paquete de documentación. En este caso, estamos hablando de una solución probada en la práctica. Puede comenzar inmediatamente la etapa de construcción, comprar materiales, buscar un equipo de construcción. Si lo desea, la oficina de arquitectura realizará pequeños cambios a un costo mínimo. Son admisibles todas las correcciones que no afecten a la integridad y fiabilidad de las estructuras portantes. En una amplia gama de ofertas estándar, es fácil encontrar una opción con parámetros adecuados.
Artículo relacionado:
¿Qué es un carro de armas?: ventajas y desventajas, características principales, la elección de un proyecto para construir una casa y un baño desde un carro de armas, características de la tecnología noruega y consejos útiles, en nuestra publicación.
Características del desarrollo de proyectos de una casa de madera a partir de un tronco redondeado.
Todo el trabajo debe comenzar con el desarrollo de un plano del local. En este caso, no ahorre espacio. Las habitaciones separadas son útiles para alojar huéspedes, pasatiempos de los anfitriones, trasteros y vestidores.Un lugar para descansar veranda cree en diferentes diseños para uso durante todo el año o verano.

No existen requisitos estrictos para los dibujos a mano alzada. Sin embargo, no se debe olvidar el contenido de información suficiente de dichos materiales.
Prepare una lista de necesidades para cada sistema de ingeniería. Para calcular el suministro de agua, por ejemplo, no solo necesita el número de usuarios. Deberá considerar la frecuencia de los procedimientos de higiene, otras preferencias personales y cargas máximas.
Explore el área por separado. Compruebe la comodidad de las autopistas y las pasarelas peatonales. Las camas, los árboles frutales, un pozo y una casa deben estar lo suficientemente lejos del tanque séptico. Preparar los resultados de los estudios geológicos. Te ayudarán a elegir el adecuado Fundación... En un nivel alto de agua subterránea, un contorno especializado esquema de drenaje.
Artículo relacionado:
Proyectos de casas enmarcadas, fotos y precios. ¿Por qué es tan popular la tecnología de marcos? ¿Cuánto vale una casa así? Lea más en una publicación separada en nuestro portal.
Diferencias entre proyectos de edificios de madera de verano de casas de troncos para residencia permanente.
Si se espera una operación estacional, puede reducir los costos en varias áreas. No se necesita un sistema de calefacción completo. Para calentar durante una ola de frío, es suficiente usar un calentador de ventilador. El rendimiento del aislamiento debe considerarse de manera similar. Los bloques de ventanas más simples, los grupos de entrada sin vestíbulo son bastante adecuados. En algunas situaciones, no se instala un suministro de agua estacionario. La bomba para suministrar líquido desde el pozo a la casa está conectada de acuerdo con un esquema temporal.
El proyecto de una casa para residencia permanente se crea sin las excepciones enumeradas anteriormente. Para la región de Moscú, los expertos recomiendan usar troncos con un diámetro de al menos 250-270 mm. El espesor de la pared de madera maciza debe ser de al menos 200 mm.
A veces se montan en el exterior de una losa de poliestireno expandido (50-100 mm). Esto reduce la conductividad térmica general. Pero al mismo tiempo se bloquea el intercambio natural de aire. Se obtendrá un rendimiento de aislamiento aceptable incluso sin una capa adicional. Sin embargo, es necesario utilizar ventanas de doble acristalamiento multicámara, puertas modernas con múltiples contornos de juntas. Un vestíbulo será útil, que evitará la penetración directa de aire frío en la habitación en invierno.
Artículo relacionado:
Proyectos de casas de un bar para residencia permanente. son especialmente populares. Las ventajas y desventajas de las casas de un bar, variedades, diseños, proyectos de edificios de uno y dos pisos, en nuestra publicación.
Construir una casa a partir de un tronco calibrado o tala manual: los pros y los contras de diferentes tecnologías
Al crear productos estándar mediante un método de fábrica, se proporciona el mismo diámetro a lo largo de toda la longitud de la pieza de trabajo. Esta tecnología va acompañada de un mayor consumo de materias primas, lo que tiene un impacto creciente en el costo. Por otro lado, las piezas planas son más fáciles de instalar. El montaje no requiere altas calificaciones de los artistas intérpretes o ejecutantes.
Una desventaja significativa es la reducción de la resistencia general, ya que la parte fuerte del tronco se corta. El desplazamiento del núcleo a lo largo provoca fuertes deformaciones.
La eliminación de las capas superficiales provoca hongos y otros daños biológicos. La humedad penetra dichos materiales. A un precio razonable, es difícil encontrar troncos redondeados gruesos con un diámetro de más de 300 mm.
Esta tecnología conserva las capas protectoras naturales. En este caso, los baños y otras estructuras relativamente pequeñas se ensamblan sin tacos. No es difícil encontrar piezas de trabajo con un diámetro de más de 400 mm en el mercado a un precio razonable.
El principal inconveniente es la gran dependencia de la habilidad del equipo de especialistas. Los servicios de artesanos altamente calificados son costosos.
Proyectos de casas a partir de un tronco redondeado con fotos y comentarios útiles.
Los siguientes ejemplos destacan detalles a los que vale la pena prestar atención. Tenga en cuenta la funcionalidad mientras explora hermosas casas de troncos. Los cambios correctos en el proyecto terminado ayudarán a tener en cuenta los deseos exactos de los futuros usuarios. Algunos fabricantes especializados ofrecen una opción de:
- cabina manual;
- tronco redondeado;
- Vigas perfiladas / encoladas.
Proyectos de vivienda para residencia permanente
En los edificios de un piso no hay transiciones a diferentes niveles, por lo tanto, se proporciona una operación conveniente. Están aumentando los requisitos para el tamaño del terreno. El área de las paredes exteriores está aumentando, por lo que se necesita un aislamiento térmico de alta calidad. Se reduce la carga sobre la base.

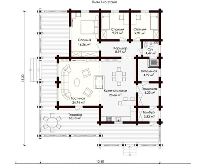
La gran terraza tiene suficiente espacio para acomodar varias áreas de asientos para niños y adultos.
| Grupo | Opciones | Los valores |
|---|---|---|
| Indicadores técnicos | Numero de pisos | 1 |
| Numero de habitaciones | 3 | |
| Superficie total, m2 | 210 | |
| Caracteristicas de diseño | Fundación | Pila-parrilla. |
| Paredes | Se montan con sujetadores duraderos galvanizados. Se utiliza aislamiento entre las coronas. | |
| Techo | Armazón de celosía de tablas. Aislamiento de fibra - 20 cm. Losetas metálicas, canalón y sistema de retención de nieve. | |
| Precio (a junio de 2018), rublos, | Proyecto | 32000 |
| Construcción llave en mano | 3600000 |

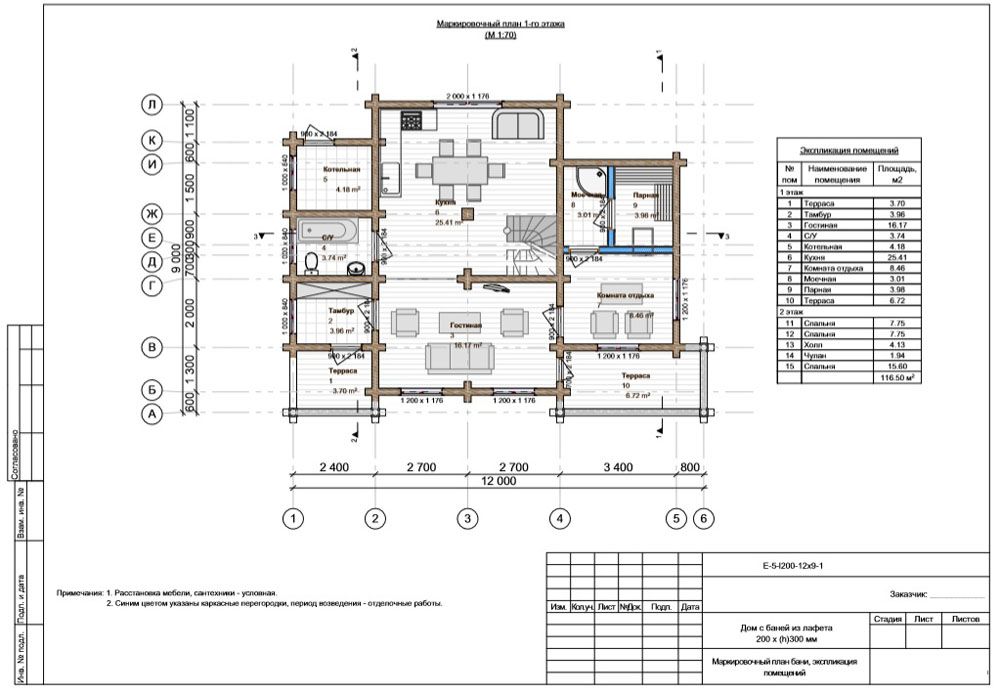
Planos de planta. La eliminación fuera del circuito residencial simplifica el aislamiento de las salas técnicas. Se crea una entrada independiente a la sala de calderas de acuerdo con la normativa vigente.
| Grupo | Opciones | Los valores |
|---|---|---|
| Indicadores técnicos | Numero de pisos | 2 |
| Numero de habitaciones | 3 | |
| Superficie total, m2 | 269 | |
| Caracteristicas de diseño | Fundación | Parrillada sobre pilotes. Apto para suelos blandos. |
| Paredes | Pueden estar hechos de una barra, troncos redondeados con aislamiento entre las coronas. | |
| Techo | Vigas de madera. Azulejos metálicos. Aislamiento de lana mineral con vapor e impermeabilización. | |
| Precio (a junio de 2018), rublos, | Proyecto | 36000 |
| Construcción llave en mano | 5600000 |

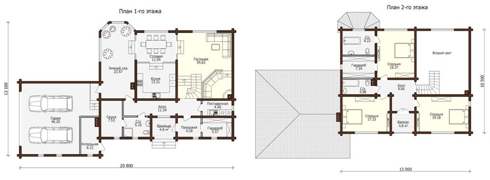
El espacio adicional es adecuado para salas de estar. Un requisito adicional obligatorio es un buen aislamiento acústico.
| Grupo | Opciones | Los valores |
|---|---|---|
| Indicadores técnicos | Numero de pisos | 2 |
| Superficie total, m2 | 212 | |
| Caracteristicas de diseño | Fundación | Con cargo extra. Tornillo - 275,000 rublos; cinta - 480,000 rublos; losa - 960,000 rublos. |
| Paredes | Tronco redondeado. La altura de las paredes es de 290 cm. | |
| Techo | En la versión básica - fieltro debajo del techo. Instalación de baldosas metálicas - 570,000 rublos. | |
| Precio (a junio de 2018), rublos, | Proyecto | 21000 |
| Construcción llave en mano | 2280000 |
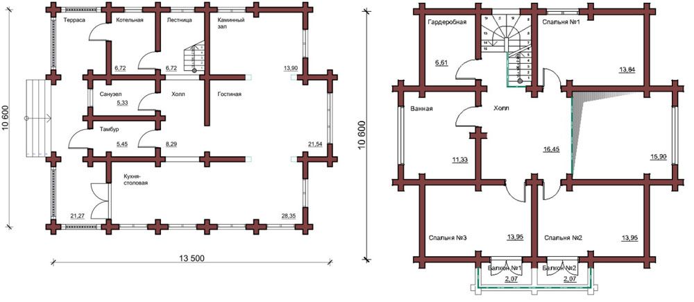
Con esta parte de la estructura, puede compensar fácilmente el terreno irregular. Con una altura suficiente, se pueden hacer cuartos de servicio. Este elemento evita la penetración de humedad en los elementos de madera.

En el interior de una casa hecha de troncos redondeados, es apropiado utilizar piedra natural con un acabado rugoso.
Casas de campo de verano de un tronco con una foto dentro de la casa.
En tales edificios, puede reducir el grosor de las paredes. Lo principal es garantizar la estabilidad de la estructura.
| Grupo | Opciones | Los valores |
|---|---|---|
| Indicadores técnicos | Numero de pisos | 1 |
| Numero de habitaciones | 1 | |
| Superficie total, m2 | 46 | |
| Caracteristicas de diseño | Fundación | Atornille las pilas con rejilla. |
| Techo | Baldosas blandas. | |
| Precio (a junio de 2018), rublos, | Proyecto | 17600 |

Una foto del diseño de una casa de madera de un tronco en el interior muestra el color de las paredes. Este acabado se utiliza para enmascarar defectos estéticos.
Artículo relacionado:
Proyectos de casas de campo por 6 acres. Ejemplos de fotos de casas de campo hermosas y compactas con recomendaciones para elegir un diseño en una publicación separada de nuestro portal.
Proyectos de baños de un tronco.
Dichos edificios sobre una base preparada se pueden instalar en 1-2 días. La microventilación natural es muy adecuada para este propósito funcional.
| Grupo | Opciones | Los valores |
|---|---|---|
| Indicadores técnicos | Numero de pisos | 1 |
| Superficie total, m2 | 18 | |
| Caracteristicas de diseño | Fundación | Con cargo extra. Tornillo - 70,000 rublos; cinta - 160,000 rublos; losa - 270,000 rublos. |
| Paredes | Troncos redondeados con compactación de yute. | |
| Techo | Tejas flexibles. | |
| Precio (a junio de 2018), rublos, | Proyecto | 4000 |
| Construcción llave en mano | 360000 |
| Grupo | Opciones | Los valores |
|---|---|---|
| Indicadores técnicos | Numero de pisos | 1 |
| Superficie total, m2 | 50 | |
| Caracteristicas de diseño | Fundación | Con cargo extra. Tornillo - 136,000 rublos; cinta - 230,000 rublos; losa - 480,000 rublos. |
| Paredes | Troncos redondeados con un diámetro de 200 mm. | |
| Techo | Tejas flexibles con aislamiento, vapor e impermeabilización. | |
| Precio (a junio de 2018), rublos, | Proyecto | 5200 |
| Construcción llave en mano | 518000 |
Artículo relacionado:
Proyectos de sauna con sala de relajación y terraza. En una publicación separada, aprenderá sobre los diseños de baños más exitosos con una extensión en forma de terraza o terraza.
Formación del precio del proyecto y construcción de una casa de troncos, una casa de troncos llave en mano.
Está claro que el costo base es el mínimo a partir del cual deberá basarse al iniciar el cálculo de gastos. Los gastos adicionales surgirán inevitablemente en el curso del trabajo. El uso de baldosas cerámicas, por ejemplo, aumenta no solo el costo de los materiales. Tenemos que fortalecer la base, teniendo en cuenta el aumento de peso.
Una foto de una casa de troncos solo da una idea general de los parámetros estéticos. Puede estudiar el proyecto con mayor precisión utilizando un modelo de computadora. El acabado adicional aumenta los costos. El uso de madera natural le permite minimizar este trabajo. Debe estudiar cuidadosamente las redes de ingeniería internas y externas, tener en cuenta las características de instalación en edificios hechos de materiales combustibles. Las inversiones en unidades de puertas y ventanas de alta calidad se amortizan al reducir los costos operativos.
Elegir el mejor proyecto para una casa a partir de un registro: conclusiones e información adicional
Es conveniente solicitar un proyecto de una casa de troncos completa con construcción llave en mano. En esta versión, el contratista es responsable no solo de la documentación del diseño. El contrato establece los términos de construcción, garantías oficiales, sanciones por incumplimiento de las obligaciones asumidas. Para obtener más información, consulte los comentarios de la publicación. Deje aquí sus propios comentarios sobre proyectos, tecnologías interesantes.




































