Proyectos de casas de un piso hasta 100 metros cuadrados. m: un algoritmo para la implementación exitosa de planes con costos razonables
Un edificio pequeño, con la distribución adecuada, es bastante capaz de satisfacer no solo necesidades básicas sino también amplias. Al mismo tiempo, existe la oportunidad de ahorrar tiempo y dinero. Obtendrá estas y otras ventajas después de leer los materiales que se presentan a continuación. En la revisión de hoy, consideraremos en detalle la preparación de un proyecto de alta calidad para una casa de un piso de hasta 100 metros cuadrados. metro.
El contenido del artículo
- 1 Ventajas y desventajas de los proyectos de casas privadas de un piso de hasta 100 metros cuadrados. metro
- 2 Características del diseño y zonificación de una casa de un piso de hasta 100 m².
- 3 ¿Qué materiales se pueden usar para hacer una casa privada de un piso?
- 4 Ejemplos de casas de un piso de hasta 100 metros cuadrados. m: fotos de diseños, características del proyecto
- 5 Ventajas y desventajas de los proyectos de casas de hasta 100 m² con ático.
- 6 ¿En qué estilo se puede crear la fachada de una cabaña de un piso: foto con comentarios
- 7 Recomendaciones para trabajar con un proyecto: cuál es mejor, un pedido o una solución lista para usar
- 8 El costo de diseñar una casa privada de un piso: una descripción general de los servicios especializados y consejos útiles adicionales
- 9 Video con proyectos de casas de un piso.
Ventajas y desventajas de los proyectos de casas privadas de un piso de hasta 100 metros cuadrados. metro
En primer lugar, se presta atención a estas soluciones debido a su costo razonable. Sin embargo, un estudio cuidadoso proyectos de casas de un piso le permitirá encontrar beneficios adicionales. Esta pequeña propiedad es ideal para residencia temporal durante la temporada de verano. Ocupa un mínimo de espacio en la tierra. El área "guardada" se puede utilizar para crear un diseño de paisaje espectacular, aumentar el jardín / huerto, la construcción de varias dependencias.
Un proyecto correctamente diseñado de una casa de hasta 100 m² ayudará a organizar una vida cómoda durante todo el año para una familia de 3-4 personas. En este caso, será necesario mejorar las características de aislamiento, instalar un sistema de calefacción.Pero todo el trabajo general de construcción, acabado e instalación es más fácil de realizar dada la altura relativamente baja de un edificio de un piso.
La ausencia de tramos de escaleras no solo simplifica el diseño de proyectos de casas de un piso. Esto reduce en gran medida la carga real sobre los usuarios futuros y aumenta el nivel de seguridad. La estabilidad de un edificio de un piso se puede garantizar con el uso de una base económica, incluso en suelos blandos, con un alto nivel de agua subterránea. El corto plazo para la implementación de los planes de construcción es positivo. Esta ventaja se puede aprovechar con una preparación cuidadosa.
El único inconveniente de una estructura pequeña es el área utilizable limitada. Una familia numerosa tiene que aumentar el número de pisos para satisfacer las necesidades correspondientes con una cantidad limitada de terreno.
¡Nota! En algunos casos, es necesario reducir el "punto" del edificio, teniendo en cuenta la distancia permitida a las instalaciones de tratamiento, las tuberías principales y otros códigos de construcción aplicables.
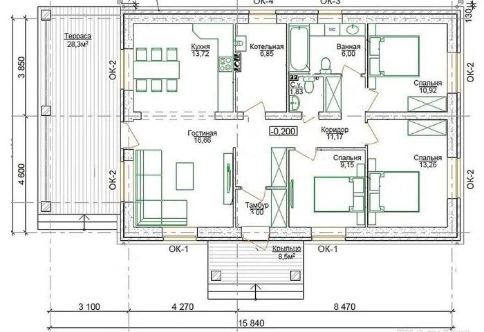
Características del diseño y zonificación de una casa de un piso de hasta 100 m².
Este trámite se realiza siguiendo las normas de la legislación vigente. Posteriormente, la información se ingresará en la base de datos catastral, por lo que se deben excluir los errores. Es mejor confiar la creación de proyectos de casas de un piso a especialistas especializados bajo un convenio con indicación del costo y garantías oficiales.
Alojamiento setos, árboles, pistas, tanque séptico y otros objetos es un tema extenso para otro artículo. Aquí estudiaremos con más detalle cómo utilizar racionalmente el área disponible.
Este plan destaca los matices que merecen atención:
- En condiciones climáticas domésticas, un garaje aislado cerrado (1) es una parte obligatoria de un edificio residencial de esta categoría. Es mejor hacerlo en forma de extensión, y no en un sótano o sótano. Esto simplifica la creación de protección contra la penetración de olores desagradables y productos químicos peligrosos en la sala de estar.
- Tambour (2) también se instala teniendo en cuenta el clima difícil. Evita la pérdida de valioso aire caliente. Aquí instalan armario de almacenamiento ropa y zapatos, lugares para secar cosas.
- El espacio común de la cocina / sala / comedor (3) es una técnica arquitectónica típica para proyectos de casas de un piso. Le permite combinar varias áreas funcionales en un volumen. Además de ahorrar espacio para tabiques, se obtiene un gran espacio libre.
- En este proyecto, una despensa se encuentra junto a la cocina (4).
- Para la recreación, barbacoa, juegos infantiles, un gran abierto veranda (5) con salida separada (6).
- Esta escalera (7) conduce a ático... Allí, según el proyecto, se pueden colocar dormitorios, un estudio. Las habitaciones correspondientes deberán trasladarse al primer piso si se hace un ático "frío".
- Se necesitará una habitación separada (8) para caldera de combustible sólido... Compacto gas y eléctrico los análogos se pueden instalar en el gabinete de los muebles de cocina del gabinete.
- El tamaño del baño se puede aumentar gracias al trastero.
Este ejemplo muestra la importancia de la fase de diseño. Para simplificar la tarea, es necesario elaborar una lista de criterios obligatorios de antemano. Definir numero de habitaciones, habitaciones para niños, otras salas de estar y servicios públicos independientes. La anchura de los pasillos facilita el desplazamiento.
De esta forma, no solo el proyecto de una casa de 100 metros cuadrados. em áticosino también la distribución de los muebles.Con el uso de tales herramientas de software, puede mover muebles individuales, cambiar elementos decorativos, experimentar con diferentes colores.
Un objeto de este tipo se puede girar en la pantalla de una computadora, acercar y alejar y ver desde diferentes lados y desde arriba. Con un clic del mouse de la computadora, cambian ventanas y puertas, cortan decoración de fachada y tipo de cubierta de techo.

Los materiales dados son más convenientes en comparación con los dibujos de proyectos de casas de un piso, que se crean de acuerdo con las normas estándar.
Pero al final es necesario preparar documentación que sea comprensible para los intérpretes. Además de la parte general de construcción y acabado, se necesitarán diagramas de redes eléctricas, de gas y de otra ingeniería. Los planos indican los puntos de conexión para dispositivos técnicos. Las listas de materiales, elementos estructurales de la fábrica, bloques de puertas y ventanas y otros productos se agregan a los materiales adjuntos. Son necesarios para encontrar las compras necesarias en las cadenas minoristas.
Artículo relacionado:
El plan de una casa de un piso. Proyectos de casas de diferentes tamaños con sótano, garaje y ático, cómo desarrollar correctamente un proyecto de redes de ingeniería en una casa, consejos útiles de especialistas, encontrará en la publicación.
¿Qué materiales se pueden usar para hacer una casa privada de un piso?
En el siguiente grupo de subtítulos, se indican las características familiares. Estudie cuidadosamente toda la información para la correcta elección de proyectos de casas de un piso. Tenga en cuenta que algunos componentes estructurales están hechos de diferentes materiales.
Proyectos de casas desde un bar: comodidad y respeto al medio ambiente.
A diferencia de los troncos, los elementos de madera en el cruce se unen en un área más grande. Esto mejora el rendimiento del aislamiento sin aumentar el espesor de la pared. Tales piezas se crean en la fábrica, por lo que el montaje no va acompañado de dificultades innecesarias. Los productos de alta calidad se secan de manera óptima, protegidos por impregnaciones de la descomposición y otros efectos adversos. Los fabricantes proporcionan dibujos detallados para simplificar el montaje. Algunos vendedores ofrecen casas completas con trabajos de instalación profesionales.
| Material | Conductividad térmica seca, W / m ° C | Espesor de pared recomendado para las condiciones climáticas típicas de la región de Moscú, cm |
|---|---|---|
| Haz (pino) | 0,09-0,11 | 27-28 |
| Bloques de espuma (hormigón celular con una densidad de 500 kg por metro cúbico) | 0,12-0,14 | 36-38 |
| Bloques de espuma (hormigón celular con una densidad de 400 kg por metro cúbico) | 0,1-0,11 | 33-34 |
| Ladrillo (cerámica con una densidad de 1300 kg por metro cúbico) | 0,4-0,43 | 120-125 |

En el exterior, se puede utilizar pintura. Si es necesario, instale una capa adicional de aislamiento térmico con un espacio de ventilación hasta la pared. En proyectos de casas de un piso utilizan materiales ligeros para techos... Como regla general, una estructura ligera se monta en un económico base de tira... Para acelerar el proceso, puede utilizar bloques de hormigón armado estándar.
Los fitoncidas naturales contenidos en la resina de la madera saturan el ambiente con agradables aromas y sustancias beneficiosas. La estructura especial del material crea una microventilación del local. Esto compensa la tensión excesiva de los bloques de puertas y ventanas modernos.

En la decoración de interiores, las áreas de madera se ven ventajosas, cubriéndolas con barniz transparente.
¡Nota! Al colocar elementos estructurales individuales, es necesario recordar la baja resistencia del material a las altas temperaturas.Observe las normas de aislamiento estándar al pasar los conductos de humos a través del suelo. Se utiliza equipo de protección especial para un cableado seguro.
Artículo relacionado:
Proyectos de casas desde un bar para residencia permanente. En nuestra publicación encontrará las ventajas y desventajas de las casas de madera, ejemplos de proyectos, fotos y diseños, recomendaciones de expertos.
Proyectos de casas a partir de bloques de espuma: mejores características de aislamiento.
Productos de bloques de espuma crear en un entorno de fábrica. Los fabricantes responsables mantienen la uniformidad de dimensiones, uniformidad de estructura, resistencia y otros parámetros del consumidor en cada envío.

A partir de bloques de espuma, puede crear un sótano (sótano). Estas partes están protegidas con una capa de impermeabilización.
Los edificios de formas complejas se erigen de forma rápida y precisa a partir de grandes "cubos". Está permitido realizar operaciones de trabajo solo, lo que es útil para construir una casa por su cuenta. Un ligero aumento de peso en comparación con la madera hace que el uso de una base más potente.
¡Importante! La resistencia de los bloques de espuma estándar es suficiente para edificios de 2 pisos. Con un aumento de altura, la estructura se refuerza con un bastidor de potencia de hormigón armado (acero).
No es combustible, por lo que no hay restricciones de seguridad enumeradas anteriormente. Las propiedades aislantes mejoradas con el cálculo correcto de los proyectos de casas de un piso le permiten no instalar capas adicionales de aislamiento.

Para tal proyecto, una casa compacta hecha de bloques de espuma de hasta 100 metros cuadrados. m se puede construir en una temporada de verano
Proyectos de casas de ladrillo: fiabilidad y versatilidad
Como se señaló anteriormente, la conductividad térmica ladrillo estándar peor en comparación con otras opciones. Es necesario aumentar el grosor de las paredes, instalar aislamiento adicional en el exterior, elegir un tipo de base suficientemente potente. La fuerza aumenta, pero este parámetro no es una ventaja significativa para los edificios de un piso.
El pequeño tamaño de los productos facilita la colocación. También implican la posibilidad de crear aberturas de ventanas redondeadas, paredes curvas y otros elementos complejos.
¡Importante! Las inversiones en tal estructura serán significativas. Sin embargo, podemos contar con confianza con una larga vida útil sin reparación.
Proyectos de casas en marco de metal y madera: instalación rápida.
Una ventaja adicional de este proyecto de casa de un piso es su bajo peso, lo que reduce la carga sobre los cimientos. Para una instalación precisa, utilice un conjunto de espacios en blanco, dibujos de montaje.
Tal proyecto de una casa de un piso de 100 metros cuadrados. m debe comprobarse con especial atención. Los cambios de diseño posteriores durante la construcción serán demasiado difíciles o completamente imposibles.
Artículo relacionado:
Proyectos de casas de madera. En el artículo, consideraremos en detalle cuál es la ventaja de estas estructuras, tipos de tecnologías, precios promedio de construcción, proyectos originales, consejos útiles y mucho más.
Ejemplos de casas de un piso de hasta 100 metros cuadrados. m: fotos de diseños, características del proyecto

Se pueden explorar técnicas arquitectónicas y de diseño útiles en esta y las siguientes figuras (imágenes)
Aquí el horno se instala en el bloque de entrada para facilitar el mantenimiento. Armarios empotrados (vestidores) son partes de estructuras de edificios. Varios baños evitan molestias durante las visitas de los huéspedes. Su número se elige teniendo en cuenta las necesidades reales de los residentes permanentes.

Esta ubicación del garaje ayuda a aislar bien la sala de estar del ruido y otras influencias adversas.

El área es un poco más grande que el estándar establecido en el artículo. Pero el arquitecto pudo hacer 3 dormitorios completos.

Con la ayuda de una imagen volumétrica, puede aclarar los detalles del interior de un proyecto de casa de 100 cuadrados.
Además de dichos materiales, los desarrolladores proporcionan un diseño electrónico. El archivo correspondiente se puede procesar utilizando un software especial o un editor de gráficos típico.
Ventajas y desventajas de los proyectos de casas de hasta 100 m² con ático.
El espacio libre debajo del techo se puede utilizar para crear salas de estar y servicios públicos.
La flecha marca la altura, que define el espacio libre debajo de la rampa. Si son demasiado pequeños, instale más particiones decorativas.

Para la iluminación natural, se utilizan diseños más costosos en comparación con los bloques de ventanas convencionales.
Tenemos que fortalecer el piso entre pisos, la base. Para aclarar el monto de la financiación, también es necesario tener en cuenta los siguientes trabajos y costos:
- mejorando los parámetros de aislamiento del techo, paredes;
- instalación de escaleras, ventanas, puertas;
- construcción particiones interiores;
- expansión del suministro de calor y otros sistemas;
- modernización de calderas y equipos técnicos auxiliares;
- trabajos de acabado interior.
Artículo relacionado:
Casa con buhardilla: proyectos, fotos. Los áticos son una idea práctica y muy atractiva para una parcela privada. Proyectos, fotos de interiores exitosos y recomendaciones de constructores experimentados están en nuestro material.
¿En qué estilo se puede crear la fachada de una cabaña de un piso: foto con comentarios
Con la ayuda de este material, se eliminan pequeños defectos e irregularidades. La combinación con baldosas proporciona una protección adicional para el edificio en lugares difíciles (pedestal, porche y grupo de entrada, conexión tubería-techo).

Los elementos de acabado de estilo rústico son visibles no solo en la fachada, sino también en otras partes del proyecto.
Recomendaciones para trabajar con un proyecto: cuál es mejor, un pedido o una solución lista para usar
La investigación de mercado se asegurará de que haya una variedad de ofertas temáticas. Los proyectos estándar de casas de una planta de hasta 100 m² se basan en madera, ladrillos, otros materiales. Hay opciones con garaje, ático, sin estas adiciones. Como regla general, puede realizar cambios significativos en el color, la tecnología interna y decoración exterior... El alojamiento se determina teniendo en cuenta los requisitos personales. enchufes electricos y lamparas, ajustar el número de radiadores de calefacción y ancho de las puertas... Muy raramente, se necesita realmente un pedido individual.
Ventajas significativas de un conjunto de documentación listo para usar:
- precio bajo;
- alta calidad, probada durante el funcionamiento;
- cumplimiento de las normas aplicables, lo que simplifica las actividades de registro;
- Falta de defectos menores eliminados en el curso de la aplicación práctica de soluciones de ingeniería.

El costo de diseñar una casa privada de un piso: una descripción general de los servicios especializados y consejos útiles adicionales
Los sitios especializados ofrecen una conveniente selección de opciones de acuerdo con criterios específicos:
- cuadrado;
- número de pisos;
- el propósito de la casa (residencial, cabaña, invitado);
- la presencia de un garaje, ático, sótano;
- tipo de techo (2 o 4 inclinados, plano, complejo);
- numero de habitaciones;
- materiales de paredes, fachadas;
- habitaciones adicionales (piscina, bañera, gimnasio);
- elementos arquitectónicos y funcionales especiales (segunda luz, balcón, hogar, etc.);
- estilo de diseño general.
El costo de un proyecto terminado para una casa de un piso es de hasta 100 metros cuadrados. m es de 18.500 a 32.000 rublos. Las funciones y algunos cambios se pagan por separado:
| Servicio | Rango de precios, frote. |
|---|---|
| Pasaporte arquitectónico | 3400-4800 |
| Adaptación de la cimentación teniendo en cuenta los parámetros geológicos del terreno. | 9400-14000 |
| Elaboración de lista de materiales | 5400-8800 |
| Cálculo del costo de construcción de una casa de un piso de hasta 100 metros cuadrados. metro | 6500-12800 |
| Copia de la documentación del proyecto | 2000-4500 |
| Diseño individual (por 1 m2) | 250-500 |
| Diseño de protección contra rayos | 3200-5600 |
Para comunicarse con los especialistas de la oficina de arquitectura en igualdad de condiciones, utilice los materiales del artículo y la información adicional en el sitio del complejo. Envíe su opinión sobre soluciones arquitectónicas. Haga preguntas adicionales sobre el tema en los comentarios.















































