Снимка на оформлението на едноетажна къща 10 на 10: тайните на ефективната рационализация на района
Удобна и надеждна селска къща е мечтата на много жители на града. Различни оформления на снимки едноетажна къща 10 до 10 ще ви помогнат да изберете функционален, добре планиран и удобен дом, в който ще бъде приятно да живеете и да се отпуснете.
Съдържанието на статията
Предимства и характеристики на едноетажна къща 10 на 10
Сграда с оформление 10 на 10 се счита за най-популярната опция. Такава сграда има следните предимства:
- такава зона е подходяща за комфортен престой на семейство от няколко души;
- за изграждането на едноетажна сграда, фундаментът не е толкова мощен, колкото за къщи с голям брой етажи, което ще спести пари;
- снимки на оформлението на едноетажна къща 10 на 10 показват, че няма стълби, които да представляват опасност за малките деца;
- през зимните периоди стаята се отоплява много бързо, като същевременно не са толкова големи топлинни загуби като в сграда от няколко етажа;
- избор от различни дизайнерски опции.
За да направите престоя си удобен, трябва да извършите правилното оформление на стаите. Трябва да има определение за зони за работа и почивка.
Полезна информация! Кога дизайн на къща има много фактори, които трябва да се вземат предвид на сайта. Това е местоположението по отношение на комуникациите, до границите със съседите и правилното разстояние от кладенци и резервоари. Розата на вятъра също се взема предвид при проектирането на покривна конструкция.
Начини за разширяване на жизненото пространство
Правейки план на къщата 10 до 10 едноетажни, трябва да обмислите възможностите за увеличаване на използваемата площ.Има няколко начина за разширяване и оптимизиране на пространството:
- на сутеренния етаж можете да оборудвате работилница, просторен битов блок или фитнес;
- по време на инсталацията скатен покрив можете да оборудвате места за барбекю или почивка;
- дизайнът също се счита за популярно решение тераси или веранди;
- в подреждане на тавана можете да отделите уютно пространство за работната зона или детска стая.
Има много икономически възможности за разширяване и рационално използване на района.
Компоненти на плана на едноетажна къща 10 на 10
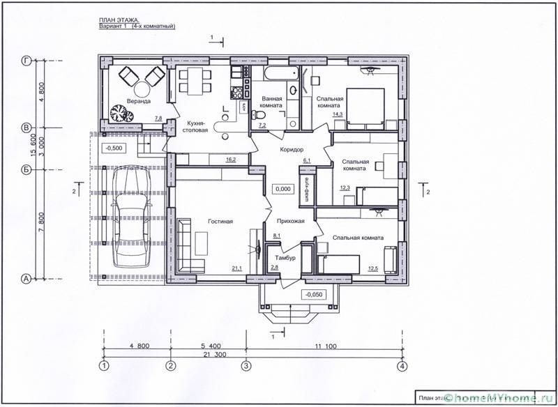
Снимките на оформлението показват проекта на едноетажна къща 10 на 10, която включва много нюанси. Той отбелязва местоположението на прозорците, вратите и размерите на помещенията и помощни помещения.
Също така, на етапа на създаване на проект се извършва изчисляването на основата, покривните конструкции, подовете и стените. Схемата се обмисля електрическо окабеляване с връзката на контакти, лампи и превключватели.

В някои случаи е по-добре да поверите планирането на специалисти, които ще извършат правилно изчисленията. Можете сами да скицирате предварителния план
Дизайнът трябва да вземе предвид водопровода, вентилационните линии, както и отоплението и канализацията. Въз основа на проекта се извършват изчисления на необходимите довършителни и строителни материали.
Проектът включва описания на строителните етапи от полагане на основата до подреждане на покривната конструкция. Планът отчита следните важни моменти:
- издигане на фундамент... Избор на опции: блок, купчина, лента;
- монтаж на стени;
- монтаж на прозорци и врати;
- монтаж на прегради между стаите;
- подреждане на комуникационни линии;
- довършителни работи отвън и вътре в къщата;
- подреждане на покрива.

Свързана статия:
Проекти на едноетажни къщи с три спални. Ще ви разкажем как правилно да извършите оформление с три спални в специална публикация на нашия портал.
Стаи: снимка на оформлението на едноетажна къща 10 на 10
Оформлението на сграда с един етаж осигурява индикация за всички дневни и помощни помещения. Стандартният семеен проект включва кухня, хол, коридор, спалня, детска стая, баня с тоалетна. Можете също така да създадете ергономично оформление на едноетажна къща 10 на 12, снимките ви позволяват да видите най-интересните решения. Опцията за оформление зависи от предпочитанията и нуждите на всяко отделно семейство. Планирането разглежда следните помещения:
- цялото семейство се събира в хола, така че за него е отделена голяма площ;
- броят на спалните зависи от състава на семейството;
- кухня и трапезария могат да се комбинират, дори 10 квадрата могат да поместят зона за готвене и трапезария;
- необходимите санитарни помещения - баня;
- килера е функционален, в него се съхраняват необходимите консумативи;
- съблекалня може да се постави в просторни гардероби;
- котелното зависи от вида на отоплението, в някои случаи не е необходимо.
Нюансите на оформлението на спалните и детските стаи
Някои области изискват специален подход. Това са стаи за почивка или детски стаи. При планирането на такива помещения трябва да се имат предвид следните характеристики:
- спалните трябва да бъдат разположени в отдалечени части на къщата, така че, ако е възможно, да няма шумни стаи наблизо. Например хол или кухня;

Спалнята също може да бъде разделена на няколко зони. Например, за да се направи разлика между работното място и зоната за спане с преграда
- прозорците на спалнята или детската стая трябва да са обърнати към слънчевата страна или изток;
- площ на помещенията не трябва да бъде по-малко от 10 квадратни метра;
- детска стая за две деца трябва да бъде 12-24 квадратни метра;

Детска стая за двама изисква специално оформление, възможно е да се използват прегради, екрани или двустепенни конструкции.
легло за детската стая
- такива помещения не трябва да бъдат преминаващи;
- препоръчителната височина на тавана е най-малко 2,5 метра;
- подреждане на мебели трябва да се планира на етапа на проектиране, за да се изчислят точно размерите на леглата и гардеробите.
Като планирате предварително, можете да помислите за удобното разположение на всички стаи в пространството за комфортен престой за цялото семейство. Оформлението на едноетажна къща 8 на 10, което може да се види на снимката, също се извършва, като се вземат предвид тези правила.
Препоръки за ефективна организация на пространството
Препоръките на опитни дизайнери ще помогнат за създаването на ефективно оформление на жилищата:
- отхвърлянето на коридора ще помогне да се спести полезно пространство. В този случай тази стая се изнася на затворена веранда или просторен гардероб - съблекалня се намира до вратата;
- комбинирането на кухнята, хола и трапезарията в една стая ще разшири пространството чрез премахване на прегради;
- един от начините за спестяване на полезни измервателни уреди е организирането на обща баня, в този случай можете да използвате ъглови водопроводни инсталации, което ще помогне за освобождаването на малко свободно пространство;
- струва си активно да използвате рафтове - ниши, окачени шкафове, в които можете да поставите нещата. В този случай не можете да използвате обемни шкафове и масивни моливници;
- допълнително е оборудвана килера, която е комбинирана с съблекалня. На това място можете да съхранявате несезонни неща, инвентар и строителни инструменти.

Когато създавате функционално и удобно оформление, трябва правилно да поставите общи стаи. На снимката на оформлението на едноетажна къща 10 на 10 можете да видите интересни решения, които могат да бъдат използвани. Като вземете предвид съветите на професионалистите и тайните на планирането, можете да създадете комфортен дом за всички членове на семейството.
Видео: компетентно оформление на къщата













































