Combinaison de commodité, de style et de beauté: choisir le meilleur design de hall pour votre appartement
La conception de la salle de l'appartement est toujours une question responsable. C'est un endroit où toute la famille se rassemble, enfants et adultes passent leur temps libre. Nos recommandations vous aideront à créer un intérieur unique qui répond à toutes les exigences nécessaires d'une maison moderne. Nous vous aiderons à prendre en compte les nuances de base qui peuvent être utiles à un débutant.
Le contenu de l'article
- 1 Le choix des couleurs pour le hall de l'appartement: idées de design avec photos
- 2 Matériaux de finition
- 3 Méthodes de planification d'une salle dans un appartement avec une photo d'intérieurs
- 4 Comment meubler une salle: caractéristiques des éléments fonctionnels et décoratifs
- 5 Conception du salon dans l'appartement en fonction du style avec des exemples de photos
- 6 Faire un salon dans un appartement en fonction de la zone avec une photo des intérieurs
- 7 Tendances modernes dans la conception de la salle dans l'appartement 2017-2018 avec des photos d'intérieurs
- 8 Conception impeccable du hall de l'appartement: conclusions et recommandations supplémentaires
- 9 Vidéos avec des idées actuelles pour la conception de salles dans des appartements et des maisons privées
Le choix des couleurs pour le hall de l'appartement: idées de design avec photos
Une salle pour un appartement soviétique était le plus souvent nécessairement "encombrée" d'un mur spacieux avec un buffet et des rangées de cristal. Les chambres modernes ne sont pas encombrées. Si nécessaire, la salle à manger, bureau, supplémentaire coin nuit.
Tout d'abord, vous devez décider de la palette de couleurs principale pour la conception du hall de l'appartement. Habituellement, ils procèdent du style général de l'appartement et, parfois, le ton de la salle, au contraire, détermine le reste de la conception de la pièce.
Cette couleur se marie bien avec le blanc, l'or, la pistache. Il crée une sensation de légèreté, donc il est bien adapté pour créer des intérieurs aérés «atmosphériques». Les couleurs claires élargissent visuellement l'espace, elles sont donc bien adaptées à la conception de halls dans un appartement avec des plafonds bas.
Pour que les couleurs sombres n'aient pas d'effet déprimant sur la psyché, ajoutez du blanc et d'autres nuances claires. Il convient de souligner la brillance de la finition contrastée.
Cette gamme de design de hall dans l'appartement est associée à des matériaux naturels (cuir, bois naturel). Il est utilisé pour créer des intérieurs solides. Il a un effet apaisant agréable.
Les photos montrent comment, en jouant avec les nuances, vous pouvez créer l'impression souhaitée.
Les couleurs trop vives semblent accrocheuses, mais elles ont un impact émotionnel excessif. Cette conception convient aux fêtes orageuses, mais pas pour des vacances reposantes.

Le propriétaire a le droit de choisir une palette de couleurs appropriée, des détails techniques et décoratifs, un cercle d'amis et des divertissements
Article associé:
Dans la publication, nous parlerons de la façon de combiner les couleurs à l'intérieur et de l'effet de la couleur sur l'humeur d'une personne. Nous découvrirons comment cela peut aider table de combinaison de couleurs à l'intérieur dans la planification indépendante de la conception de la pièce.
Matériaux de finition
Lors du choix de ce groupe de produits, tenez compte de:
- apparence de surface;
- la complexité de créer un design de hall dans un appartement;
- résistance à diverses influences pendant le fonctionnement;
- durabilité planifiée et facilité des travaux de restauration;
- prix et obligations de garantie officielle.
Une analyse complète vous aidera à comprendre comment concevoir une pièce en utilisant les meilleurs matériaux.
Plafond et sol
Cette pièce ne devrait pas avoir une intensité de mouvement élevée, comme dans les couloirs. Il y aura moins de couloir, pollution mécanique. Il n'y a pas de changements brusques de température et d'humidité, comme dans cuisine ou salle de bains... Des exigences correspondantes, relativement faibles, sont imposées aux revêtements de sol lors de l'examen de la conception d'une salle dans un appartement:
- Le bois naturel apportera chaleur et sensations tactiles agréables, exclusivité des motifs naturels.
- Qualité stratifié ressemble beaucoup et coûte moins cher.
- Un compromis intelligent est une carte combo multicouche. Seule la couche supérieure est constituée d'espèces précieuses, le coût total est donc tout à fait acceptable.
- Les carreaux de céramique et la pierre naturelle sont rarement utilisés sous les latitudes domestiques. Pour créer des conditions de température confortables, ces revêtements de sol sont complétés par un chauffage intégré à la chape.
Dans la version la plus simple, les plafonds sont nivelés avec du plâtre et peints. Cette technologie classique signifie une utilisation économique de la hauteur disponible. La structure suspendue prend beaucoup plus de place. Les plaques de plâtre sont fixées sur une caisse en métal ou en bois. L'épaisseur totale de la couche peut être supérieure à 10 cm.

Conception de hall dans un appartement avec un faux plafond. Il peut être combiné avec une structure tendue
Lors du choix de cette option, il est nécessaire de déterminer à l'avance les emplacements d'installation de toutes les lampes. Des points de fixation spéciaux sont installés sous de lourds lustres et projecteurs.
Des murs
L'absence de restrictions importantes permet l'utilisation de différents matériaux pour la décoration. Des nuances importantes sont notées dans les exemples suivants.

Une photo de beau papier peint dans les couloirs des appartements démontre l'importance de choisir le bon motif
Remarque! Pour vérifier de nombreuses options différentes, utilisez les sites Web officiels des fabricants et des grandes entreprises commerciales. Ils publient des photos prises en haute résolution. De tels matériaux seront utiles pour une étude approfondie des petites choses à distance, sans achats personnels.

Pour les travaux de peinture, choisissez des produits écologiques adaptés à une utilisation dans les zones résidentielles
Via plâtre décoratif créer des surfaces aux reliefs, ornements et motifs complexes. Pour l'exécution de haute qualité des opérations de travail, une haute qualification de l'interprète est requise.

Conception expressive mais économique du hall de l'appartement. Au lieu d'un bois massif naturel coûteux, vous pouvez utiliser un stratifié abordable pour la décoration murale
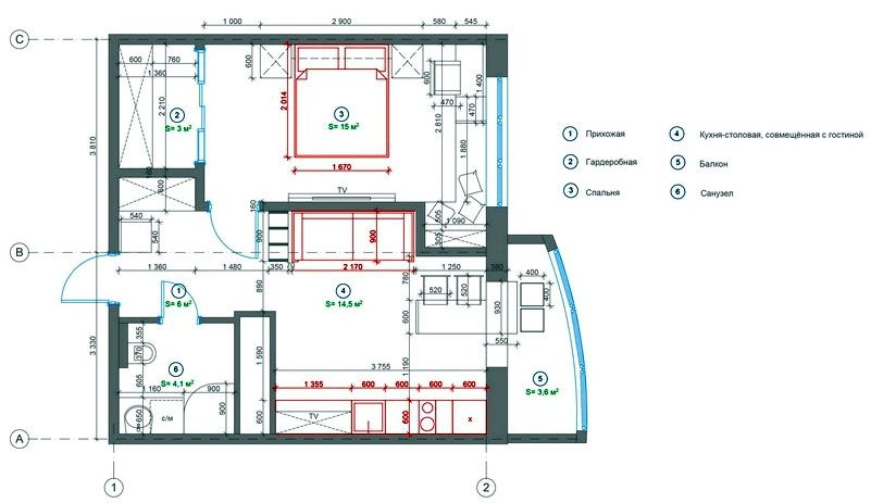
Méthodes de planification d'une salle dans un appartement avec une photo d'intérieurs
L'imagination doit être aidée pour que l'image créée ne déçoive pas après avoir terminé le travail de finition. Les aménagements intérieurs du salon que vous aimez sur la photo peuvent être transférés de manière fiable dans votre propre projet. Il n'est pas nécessaire d'avoir une formation artistique ou des compétences en architecture. Utilisez un logiciel moderne pour créer rapidement et précisément des mises en page 3D.

L'image électronique au format 3D est pratique pour étudier la conception du hall de l'appartement sous différents angles
Il peut être modifié au besoin. Sans perdre de temps, ils vérifient la cohérence des motifs et des couleurs. Expérimenter des maquettes électroniques vous aidera à comprendre comment organiser au mieux les meubles de la pièce pour les futurs utilisateurs.
Lors du développement d'un projet de conception, spécifiez les paramètres suivants:
- la largeur des passages, en tenant compte des caractéristiques physiologiques individuelles;
- liberté de mouvement le long des itinéraires typiques avec différentes positions des vantaux de porte;
- distance à la télé;
- facilité d'accès à d'autres types d'appareils ménagers.
Article associé:
Pourquoi salon combiné avec cuisine, a gagné une telle popularité, quel est l'avantage d'une telle mise en page, des photos d'intérieurs en grand nombre, les recommandations d'experts sont présentées dans notre revue.
Comment meubler une salle: caractéristiques des éléments fonctionnels et décoratifs
Le choix des produits individuels est largement déterminé par le but approuvé, les exigences particulières des membres de la famille. Vous trouverez ci-dessous des conseils utiles par sujet.
Armoire et meubles rembourrés
Si les clients restent souvent, le salon est équipé de meubles rembourrés pliants. Il est converti, si nécessaire, en un lieu de couchage à part entière.

Photo de meubles d'armoire pour le hall dans un style moderne. L'éclairage intégré sert de décoration et facilite la recherche d'articles placés au fond des étagères
Rideaux, éléments de décoration
La couleur, la texture et d'autres paramètres esthétiques de ces produits sont sélectionnés en fonction d'un certain style. En comparant plusieurs options pour la conception de la salle de l'appartement, ils vérifient en outre la facilité d'utilisation et les caractéristiques d'entretien.
Article associé:
Rideaux dans le salon dans un style moderne: photo. Dans l'article, nous examinerons de plus près les types de rideaux, comment choisir les bonnes toiles en fonction du style d'un appartement ou d'une maison, et d'autres conseils utiles de designers.
Conception d'éclairage de salon avec des photos de différentes options
Déterminez les exigences en matière d'éclairage naturel, général et local. Il convient de fournir une bonne visibilité dans les zones de lecture et de restauration. Une bonne distribution des appareils réduira les coûts énergétiques.
Equipement technique
Le dernier exemple rappelle la nécessité de vérifier soigneusement les équipements installés. Dans les salons modernes, ils utilisent:
- équipement spécial pour la lecture de matériel audio et vidéo;
- moyens de téléphonie, communication avec Internet;
- conditionneurs, purificateurs d'air et humidificateurs;
- radiateurs supplémentaires.

Avec une grande distance par rapport aux ouvertures des fenêtres, la télécommande des rideaux est utile
Conception du salon dans l'appartement en fonction du style avec des exemples de photos
La conception du salon doit correspondre au style général choisi pour la propriété. Les vraies photos suivantes et en utilisant des graphiques informatiques montrent les directions de conception typiques qui ont été utilisées lors de la rénovation des halls.

Loft (modification des locaux industriels) - pas de plâtre sur la maçonnerie, hauts plafonds, conception simple

Art Déco. Couleurs claires avec des accents expressifs, un mobilier luxueux, des œuvres d'art authentiques

Le caractère pratique du minimalisme. L'un des avantages évidents d'une telle conception de hall dans un appartement est la simplicité d'entretien.
Article associé:
Styles à l'intérieur: photos avec descriptions et des critiques vidéo des tendances classiques, modernes, ethniques, nationales et autres, des recommandations et des conseils d'experts - dans notre publication.
Faire un salon dans un appartement en fonction de la zone avec une photo des intérieurs
Les paramètres précédents pouvaient être modifiés sur une large plage. Dans cette partie de l'étude, nous examinerons les positions stationnaires. Les murs d'immeuble ne doivent pas être enlevés afin de ne pas perturber la charpente du bâtiment. Il s'agit d'une limitation importante, qui est prise en compte séparément lors de la conception de la conception de la salle. Des photos avec des exemples d'intérieurs vous aideront à mieux comprendre les techniques professionnelles individuelles.
Conception d'un salon spacieux dans différents appartements avec une photo intérieure
Dans cette version, vous pouvez utiliser de grands meubles, des couleurs sombres dans la décoration, de grands dessins.

S'il y a suffisamment d'espace, il conviendra d'installer un foyer. S'il n'y a pas de cheminée, vous pouvez acheter un modèle électrique qui reproduit fidèlement le processus de combustion du bois.
Conception d'un hall dans un appartement de 18 m²: possibilités polyvalentes d'une surface moyenne
Dans de telles pièces, une attention suffisante doit être accordée à la disposition. Si les moyens électroniques ou les dessins ne conviennent pas pour une raison quelconque, utilisez des expériences sur le terrain. Utilisez du carton pour créer des motifs pour les contours de meubles, de téléviseurs et d'autres grands objets. Installez-les et déplacez-les dans la pièce pour vérifier les différentes options de conception du hall de l'appartement, clarifiez la facilité d'utilisation.
Comment créer un design de haute qualité pour une petite salle à Khrouchtchev
Il est très difficile d'offrir des conditions de vie confortables sur la base de locaux ultra-compacts. Si possible, utilisez différentes options pour combiner les pièces. Planifiez soigneusement les zones fonctionnelles, utilisez des couleurs claires et de petits motifs de décoration. Le mobilier et l'équipement sont soigneusement sélectionnés ici. La préférence est donnée aux petits modèles, les transformateurs.

L'extension du salon se fait en combinant avec d'autres pièces: salle à manger, cuisine, balcon vitré
Tendances modernes dans la conception de la salle dans l'appartement 2017-2018 avec des photos d'intérieurs
Cette section contient des exemples montrant la mise en œuvre des tendances de la mode. Ces idées peuvent être répétées avec les corrections nécessaires dans votre propre projet.

Cette photo du salon démontre les bienfaits du bois naturel à l'intérieur. Un tel matériau convient tout à fait au design moderne.

Les nouvelles fenêtres ont des propriétés isolantes améliorées. Cela vous permet de créer un bon éclairage naturel dans une maison privée avec un magnifique panorama sans perte de chaleur inutile.

Avec une hauteur de plafond élevée, la séparation des zones par différents niveaux de sol est utilisée. Le mobilier original de la salle sur la photo de l'appartement est complété par des éléments de décoration appropriés pour former une image élégante

Avec une palette de couleurs globalement neutre, l'intérieur est «animé» en ajoutant quelques détails lumineux.

Cette photo du salon montre un exemple de camouflage réussi de la structure de pouvoir dans un appartement. Le changement de forme a transformé un élément fonctionnel en une décoration originale. Coutures soulignant la légèreté
Conception impeccable du hall de l'appartement: conclusions et recommandations supplémentaires
Appliquer l'algorithme donné dans la publication de manière séquentielle, au fur et à mesure que les sections individuelles sont présentées. Cette approche aidera à prendre en compte toutes les nuances importantes, à vérifier soigneusement les caractéristiques techniques et opérationnelles. Publiez vos propres solutions réussies dans les commentaires. Posez des questions immédiatement pour obtenir des conseils professionnels.














































