Gazebo con barbecue: progetti, foto, idee migliori
L'area suburbana ha i suoi attributi obbligatori, senza i quali è difficile immaginare attività ricreative all'aperto. Uno stabilimento balneare con bagno turco, un accogliente giardino e, naturalmente, un gazebo con barbecue. Progetti, foto di strutture simili possono essere trovati nelle fonti disponibili. Come scegliere un disegno, dove posizionare il gazebo, da cosa costruirlo - in questo materiale.
Il contenuto dell'articolo
- 1 Opzioni di design, materiali e caratteristiche del design
- 2 Progettazione di un'area barbecue in una casa di campagna: progetti, foto
- 3 La corretta selezione di barbecue e barbecue per una residenza estiva: dispositivi fotografici
- 4 Gazebo con barbecue: progetti, foto di posizionamento sul sito
- 5 Un paio di suggerimenti utili
- 6 Riassumendo
- 7 Video: gazebo con un complesso di fornaci
Opzioni di design, materiali e caratteristiche del design
Prima di iniziare la costruzione, è necessario studiare le possibili opzioni per i gazebo, scegliere una struttura ideale per l'ubicazione del sito.
Strutture simili possono essere di tre tipi:
- Aperto;
- chiuso;
- mezzo aperto.
Il gazebo aperto non ha pareti. Essenzialmente lo è baldacchino, che viene utilizzato solo nella stagione calda.

Gli svantaggi di una tale struttura sono evidenti: è stagionale e aperta a tutti i venti, la neve, la pioggia.
Gli edifici chiusi possono essere utilizzati tutto l'anno. Sono solidi e fissati, come si suol dire, da secoli. In tale gazebo puoi suddividere lo spazio separando la zona pranzo dalla cucina.
La struttura semiaperta è una sorta di compromesso. Non fa caldo in estate con questo design, ma in inverno braciere riparata dai venti forti da tre pareti. Se lo desideri, puoi rendere trasformabile la quarta parete.
Scegliere un materiale
Opzioni di cosa costruire con le tue mani gazebo con barbecue - un mucchio di. Devono essere selezionati tenendo conto delle caratteristiche del design, del panorama del sito e delle proprie capacità. Se l'esperienza di costruzione non è molto grande, non dovresti intraprendere progetti troppo complessi.
Tradizionalmente, i gazebo sono costruiti in legno, pietra o metallo.
Fiaba in legno
Il legno è un materiale naturale caldo, tradizionale per le nostre latitudini. La lavorazione degli elementi strutturali può essere molto diversa.
Tabella 1. Vantaggi e svantaggi del materiale
| professionisti | Svantaggi |
|---|---|
| L'albero consente di realizzare qualsiasi progetto di design. | Il legno è un materiale pericoloso per il fuoco. La sistemazione di un barbecue in un tale gazebo richiede misure speciali per prevenire incendi accidentali. |
| Basso costo del materiale e dei lavori di costruzione. Utilizzando un fondotinta leggero. | L'albero richiede una manutenzione costante. Deve essere trattato contro gli insetti, permanentemente dipinto o verniciato, assicurarsi che non si formino marciume e funghi. |
| Non è necessario utilizzare attrezzature o strumenti speciali per la costruzione | |
| Gli edifici in legno con la cura adeguata dureranno per decenni |
pietra di fondazione
Mattone, blocco o pietra: tutti questi materiali ti consentono di costruire una struttura solida che non teme né il tempo né i capricci del tempo.
Tabella 2. Caratteristiche delle strutture in pietra
| professionisti | Svantaggi |
|---|---|
| Le strutture in pietra non hanno paura del fuoco. | È necessaria una solida base completa |
| Gli edifici in mattoni non richiedono una manutenzione costante. | La posa di mattoni o pietra dovrebbe essere eseguita da professionisti. Non è facile costruire un simile gazebo con le tue mani. |
| Gli edifici realizzati con questo materiale possono durare fino a cento anni. | |
| Tali edifici proteggeranno in modo affidabile da qualsiasi maltempo. |

Per un cenone di Capodanno con barbecue, una struttura in pietra è perfetta. Se fornisci un sistema di riscaldamento aggiuntivo, puoi trascorrere del tempo con gli amici qui.
Pizzo metallico
Un gazebo in ferro battuto è una lussuosa decorazione del sito. È improbabile che sia possibile farlo con le tue mani, per questo devi avere abilità professionali.
Tabella 3. Uso specifico del metallo
| professionisti | Svantaggi |
|---|---|
| Design esclusivo | Le strutture forgiate sono un piacere costoso |
| Il metallo è un materiale durevole, durerà almeno mezzo secolo | Il metallo richiede una manutenzione regolare: verniciatura, protezione dalla ruggine. |
| La forgiatura funziona bene con altri materiali da costruzione | Il pizzo forgiato non ti proteggerà dal vento e dalla pioggia. Quindi puoi usare un tale gazebo solo stagionalmente. |
| Il metallo non ha paura delle scintille del barbecue. |
Progettazione di un'area barbecue in una casa di campagna: progetti, foto
Non è sufficiente scegliere il materiale per il gazebo, devi anche decorarlo in modo bello ed elegante. Questo può essere fatto senza spendere soldi e sforzi extra. Diamo un'occhiata a semplici soluzioni originali, alle loro caratteristiche stilistiche.
Chalet francese

In questo design, i pavimenti dovrebbero essere fatti di pietra naturale o legno non trattato. La struttura stessa si distingue per la sua robustezza e buona qualità.
Caratteristiche di stile:
- ampio sbalzo tettisporgente di un metro e mezzo oltre le mura;
- tetto caldo a quattro falde;
- cornici volumetriche;
- interni discreti.
Per mantenere lo stile, puoi posizionare attributi di caccia nella stanza: pelli o teste di animali. Opzione meno "maschile" - decorazione con piatti di argilla, ghirlande e ghirlande. Per la decorazione vengono utilizzati colori naturali, non troppo luminosi: marrone, terracotta, rosso, grigio.Tutti i mobili e le decorazioni sono realizzati in legno, preservando la struttura naturale.
Il fascino dei classici

Tali edifici si distinguono per forme chiare, design laconico. Le tettoie possono avere quattro o sei pareti e un semplice tetto
Caratteristiche di stile:
- l'uso del marmo e del legno nella decorazione;
- colori pastello negli interni.
Per la decorazione vengono utilizzati elementi forgiati, cornici ricci. Decora un gazebo classico con fiori in vasi e vasi.
Motivo orientale
Il termine "stile orientale" è adatto a tipi di architettura araba, giapponese e cinese. La direzione ascetica giapponese-cinese è più adatta per dare.

Un elemento importante di questo progetto è la presenza di un serbatoio naturale o artificiale e di una collina su cui verrà posizionata la struttura.
Caratteristiche di stile:
- l'uso di materiali naturali, tra cui bambù e canna;
- tetto riccio a più livelli con angoli verso l'alto;
- uso di colori calmi negli interni.
Per decorare una stanza del genere, vengono utilizzati carta di riso, stuoie, mobili in miniatura, lampade da terra.
Stile moderno
Progetti simili per gazebo con barbecue e barbecue per cottage estivi utilizzano una combinazione di materiali. È accettabile l'uso di plastica e vetro, legno e cromo.

In un tale progetto, tutto dovrebbe essere il più laconico possibile. I designer usano il minimalismo per modellare questi disegni
Accogliente Provenza
Lo stile preferito dai residenti estivi. Può essere applicato non solo al gazebo, ma a tutte le strutture del sito.
Caratteristiche di stile:
- spaziosità della stanza;
- l'uso di combinazioni di tessuti grezzi e di pizzo;
- mobili in vimini e forgiati;
- decorazione con vasi, candelieri, dipinti.
La corretta selezione di barbecue e barbecue per una residenza estiva: dispositivi fotografici
Un'altra fase importante nella sistemazione di un gazebo è la selezione di un braciere. Diamo un'occhiata a modelli, progetti, foto. Un gazebo con barbecue dovrebbe essere realizzato nello stesso stile, quindi anche il braciere dovrebbe corrispondere alla direzione scelta.
Opzioni di fabbrica per il braciere:
- Braccialetti elettrici. Ci saranno fumo e sporcizia da loro, le scintille non danneggeranno il pavimento né causeranno un incendio. Il grill elettrico è un design compatto che può essere smontato e rimontato se necessario.
- Ghisa. Un dispositivo durevole e affidabile. Una tale griglia non si deforma dal calore, come la sua controparte in acciaio. La ghisa trattiene perfettamente il calore, quindi non richiede troppo carburante.
- Acciaio. Il loro principale vantaggio è il basso costo. In una tale griglia, puoi cucinare qualsiasi piatto. Col tempo si brucia, ma non importa, a un prezzo del genere puoi comprarne uno nuovo.
I bracieri in pietra sono un'opzione fissa. Puoi costruire un tale braciere da mattoni resistenti al calore da solo, senza abilità speciali. Questo design non ha paura del caldo, durerà quanto il gazebo.

Il complesso barbecue fisso può avere un tavolo da taglio, un luogo per la conservazione della legna da ardere. Puoi aggiungere un calderone, una stufa russa al kit
Gazebo con barbecue: progetti, foto di posizionamento sul sito
Quando si determina un luogo in cui posizionare un luogo di vacanza, è necessario considerare i seguenti punti:
- distanza da casa. Non posizionare l'edificio troppo lontano. Dovrai portare piatti e cibo da casa per apparecchiare la tavola;
- la presenza di un serbatoio nel sito. La sistemazione vicino all'acqua è l'ideale;
- la possibilità di condurre comunicazioni. È molto conveniente quando c'è l'opportunità di condurre acqua e fognature nell'edificio. È possibile lavare cibo e stoviglie in loco.
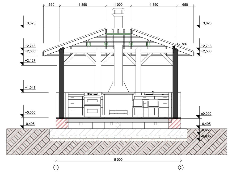
Dopo aver affrontato il posizionamento della struttura, è necessario preparare un disegno dettagliato. Esempi di disegni:
Tabella 4. Cosa è importante considerare quando si redige un disegno
| Opzioni | In base a quanto calcolato |
|---|---|
| Altezza apertura ingresso | Calcolato dall'altezza media di una persona. Se nella famiglia ci sono persone con un'altezza superiore alla media, questo dovrebbe essere preso in considerazione. |
| Larghezza ingresso | Di solito è standard, circa un metro |
| Dimensioni degli elementi | La lunghezza standard del legname segato e del metallo laminato è di sei metri. Per risparmiare denaro, è necessario fare affidamento su questo indicatore. |
| Calcolo di elementi di fissaggio e materiale | Tutti gli elementi strutturali sono collegati con elementi di fissaggio. È necessario elaborare attentamente tutte le connessioni tenendo conto del carico. |
Un paio di suggerimenti utili
- Se la griglia fissa viene estratta dalla tettoia, è possibile proteggere la muratura dalla pioggia con vernice acrilica.
- Posizionando il focolare, è necessario concentrarsi sulla dimensione degli spiedini.
Riassumendo
Abbiamo considerato le opzioni per i progetti, le foto di gazebo con barbecue. Sul terreno del giardino, puoi costruire una struttura che diventerà non solo un luogo per la preparazione del barbecue, ma sarà il momento clou della proprietà di una casa suburbana e l'invidia dei vicini.

È importante scegliere materiali durevoli e di alta qualità, scegliere la posizione ottimale per la struttura
Griglia confortevole, piccoli oggetti accoglienti nel design, abbondanza di verde - e il compito è stato fatto perfettamente!
Video: gazebo con un complesso di fornaci

































