Rostwerk: cos'è, i suoi tipi e lo scopo
Prima di costruire una casa e decidere quali fondamenta creare - colonnare o mucchio, i costruttori alle prime armi devono affrontare un concetto come un grillage. Di seguito considereremo cos'è un grillage e la sua necessità di costruire le fondamenta di un edificio.
Il contenuto dell'articolo
- 1 Rostwerk - che cos'è?
- 2 Materiali usati
- 3 Tipi e scopo delle grigliate
- 4 Fondamenta a pila
- 5 Dimensioni e dimensioni principali
- 6 Principali produttori e serie standard di bistecchiere
- 7 Disposizioni di base per la progettazione e il calcolo della griglia del palo
- 8 Creare una base a griglia con le tue mani
- 9 Conclusione
Rostwerk - che cos'è?
Una griglia è un elemento posizionato orizzontalmente della fondazione su pali di una struttura (una sorta di cintura o cuscino), che assume l'intero carico dell'edificio e, distribuendolo uniformemente, lo trasferisce alle colonne di supporto. Ciò si ottiene legando le pile in una struttura integrale. Poiché la griglia sulla fondazione del palo aumenta la resistenza dell'edificio, è necessario fornire una rigidità sufficiente a tutte le articolazioni.
Il vantaggio di una tale base per un edificio è la sua durata, resistenza e possibilità di installazione su terreni sabbiosi e argillosi, nonché su sabbie mobili. Inoltre, a causa della piccola quantità di lavori preparatori e della soluzione concreta utilizzata, una tale costruzione della base della casa è considerata un'opzione meno costosa rispetto ad altri tipi di fondazioni.
Per capire meglio cos'è un grillage, è necessario conoscere la sua classificazione nelle seguenti tipologie:
- nel luogo di sistemazione;
- dai materiali da costruzione utilizzati;
- da una soluzione costruttiva.
Per località:
- Superficiale. Questo è il tipo di costruzione ottimale per ottenere una stabilità affidabile.Poiché la suola della cintura è disposta direttamente sul terreno, tutto il carico futuro della struttura verrà distribuito non solo tra le pile, ma anche sull'intera fondazione.
- Incasso. In questo caso, una parte della struttura con una larghezza suola di 50 cm o più entra nel terreno. Come tipi di fondazioni utilizzato per edilizia, su terreni instabili, edifici di più piani.
- Sospeso. La distanza tra il suolo e la struttura è di 100 mm o più. In questo caso, la griglia è realizzata in legno o acciaio per escludere il contatto dell'edificio con l'umidità del suolo. Per evitare che la struttura cada sotto il peso della struttura, vengono utilizzate pile o pilastri di dimensioni impressionanti.
Per decisione costruttiva:
- Grillage monolitico È una struttura olistica in cemento armato creata nel sito della fondazione. Il tipo più comune è il tipo a nastro, ma il grillage a lastra è indispensabile per la costruzione di strutture su terreni instabili. Il suo dispositivo è associato a costi di manodopera significativi, rinforzi frequenti e costi elevati.
- Struttura metallica prefabbricata, i cui elementi sono fissati mediante saldatura. Lo svantaggio è la laboriosità dell'installazione e l'insufficiente rigidità e resistenza delle articolazioni. La griglia prefabbricata viene installata sulle cime delle pile e saldata ad esse senza successivo getto di calcestruzzo. Le fondazioni su pali con griglia prefabbricata sono adatte per edifici non capitali, la cui durata è di circa 10-20 anni.
- Cintura monolitica prefabbricata è un'opzione combinata e comprende elementi di produzione industriale, fissati tra loro mediante chiavetta e giunti chiave. Dopo che la struttura è stata assemblata, tutti i giunti vengono colati con calcestruzzo per formare un robusto nastro singolo. Tali griglie sono utilizzate nella costruzione di edifici residenziali e uffici a più piani, nonché di fabbriche e fabbriche. Il dispositivo di una cintura monolitica prefabbricata richiede grandi costi di materiale, l'uso di attrezzature speciali e una grande precisione durante l'installazione.
Comprendendo cos'è una fondazione grillage, vale anche la pena considerare i materiali utilizzati nella struttura.
Attenzione! Puoi abbandonare il dispositivo di grilletto, solo nella costruzione individuale. Nel caso di costruzione di edifici a due o più piani, è necessario garantire una rigidità sufficiente.
Materiali usati
Le caratteristiche strutturali degli edifici e l'entità dei carichi risultanti determinano l'uso di materiali per la creazione di grate:
- cemento armato;
- legna;
- metallo.
Fondazioni su pali con grate monolitiche
Il nastro in cemento armato ha un'elevata stabilità, rigidità, affidabilità, durata e può sopportare carichi elevati. Queste qualità divennero la ragione dell'uso diffuso della griglia a pelo con sovrapposizione monolitica. La struttura è costituita da rinforzi in ferro, che aumenta le caratteristiche di resistenza della fondazione, e calcestruzzo. Il rinforzo di una griglia monolitica su pali può essere eseguito con aste alberghiere fissate in un telaio piatto o telai volumetrici.
Le griglie in calcestruzzo sono simili nella struttura alle cinghie in cemento armato, l'unica differenza è la mancanza di rinforzo nella struttura delle prime. L'intero carico è depositato e distribuito dal calcestruzzo. Le teste dei pali di fondazione devono essere incassate di 100 mm nel calcestruzzo della griglia. Tali cinture sono utilizzate solo nella costruzione di edifici a un piano.
Importante! Determina la stima e le norme per il dispositivo di una griglia monolitica - HESN.
Strutture in legno
La struttura in legno è utilizzata principalmente nella costruzione di case di legno. La posa di una griglia di legno su una fondazione colonnare viene eseguita su uno speciale tampone impermeabilizzante realizzato con feltri per tetti o feltro per tetti. Inoltre, per escludere danni prematuri al legno, la struttura deve essere trattata con speciali impregnazioni bioprotettive. Il fissaggio del legno ai pali viene effettuato mediante staffe o bulloni.
Ci sono due opzioni per organizzare una cintura di legname:
- Quando si costruiscono le fondamenta di un edificio, viene creato un ponte singolo o doppio da tronchi preelaborati, che viene installato su una piattaforma di macerie pianificata. Questa opzione era precedentemente utilizzata per la costruzione di piccole strutture in legno;
- La griglia è fissata da una barra su una base colonnare. Tuttavia, la struttura non ha un'elevata resistenza, poiché il legno non è il materiale da costruzione più affidabile, quindi è più spesso utilizzato durante la creazione tende da sole e gazebo.
Video: grillage del dispositivo per una casa in legno
Cintura in metallo per fondazione
Il tornio metallico è realizzato con profilo a canale, trave a I o quadrato e presenta un'elevata resistenza e rigidità. Di norma, questo design viene utilizzato quando si costruiscono basi per viti per pali case a un piano. Il canale è installato sulla testa dei supporti e fissato mediante giunto saldato.
Una cintura di metallo viene utilizzata principalmente in una versione sospesa. Tuttavia, negli ultimi anni, tali progetti sono stati utilizzati molto raramente, poiché, a causa della gravità del materiale, è necessario attirare attrezzature speciali di sollevamento, che sono economicamente non redditizie. Inoltre, il metallo è soggetto al rischio di processi corrosivi.
Tipi e scopo delle grigliate
Le strutture della griglia differiscono per tipo e scopo. Molti fattori vengono presi in considerazione quando si sceglie il design richiesto.
Striscia di fondazione con grillages
Per gli edifici, un supporto abbastanza forte e affidabile sono le fondamenta con una griglia a nastro, per la cui costruzione vengono utilizzate due tecnologie. Uno di questi viene utilizzato quando si organizzano le fondamenta sopra il livello del suolo e il secondo viene utilizzato nella fase di creazione di una struttura reticolare, che assume parte del carico.
Una fondazione a strisce è l'opzione migliore per organizzare una fondazione su pendii e aree con terreno difficile, poiché non richiede lavori preparatori complessi per la pianificazione del sito con il coinvolgimento di attrezzature speciali. Questo design è perfetto per la costruzione di strutture realizzate con materiali leggeri.
È necessario utilizzare una fondazione a strisce durante la costruzione di una casa:
- Cuscino di sabbia, lo spessore del quale è di 200-300 mm. Viene creato sotto la struttura in cemento e le pile per proteggerli dagli effetti distruttivi dell'umidità del suolo.
- Impermeabilizzazione della griglia e dei supporti, per i quali si utilizzano film di polietilene, materiale di copertura o tubi in cemento-amianto.
Quando si organizzano le fondamenta, è necessario prestare attenzione calcolare il numero e il passo delle pile nella griglia del nastro, così come il suo spessore e altri parametri.
Per la recinzione
Il dispositivo della griglia per recinzioni è necessario per la protezione completa della struttura, che il piano della recinzione non può fornire. La creazione della cintura è dovuta non solo alla fornitura di fattori esterni, ma anche al fatto che, ad esempio, gli animali domestici non possono uscire dal sito. I motivi possono essere qualsiasi, ma le prestazioni devono essere sempre di alta qualità, per garantire robustezza e durata della struttura.
In linea di principio, il grillage sotto la recinzione praticamente non differisce dalla cintura utilizzata nella disposizione delle fondamenta delle case. Utilizza la stessa costruzione, materiali da costruzione e svolge funzioni simili.
Per fondazioni su pali
La necessità di una fondazione colonnare con una griglia è determinata direttamente dalla struttura specifica dell'edificio, dal suo peso e dalla rigidità del telaio della struttura. Per evitare il crollo delle colonne portanti, sono obbligate con una cintura monolitica in cemento armato, metallo o persino legno.
Nella costruzione vengono utilizzati diversi schemi delle fondamenta degli edifici:
- Le colonne con una cintura incernierata sono sepolte nel terreno. Questo schema è utilizzato nel 90% di tutte le fondazioni su pali;
- I pilastri poggiano su un terrapieno di pietrisco senza approfondire nel terreno. Con questo schema viene assicurata l'elevata rigidità della base della casa, che consente di ridurre al minimo la probabilità che la struttura si abbassi;
- Senza grillage. Questa opzione viene utilizzata per la costruzione di piccole case.
In una nota! I supporti per la base colonnare dell'edificio possono essere combinati, ad esempio, la muratura è combinata con la stuccatura del calcestruzzo o una base di macerie da costruzione. In linea di principio, le proprietà della fondazione non cambiano da questo, ma il processo di sistemazione è notevolmente semplificato e il costo è ridotto.
Fondamenta a pila
Tecnologia grillage con pile annoiate
La disposizione delle fondamenta con una griglia su pali trivellati è obbligatoria quando si erigono edifici su terreni irregolari, pendii e terreni instabili. Queste strutture sono l'opzione migliore per la costruzione di piccole case e strutture di capitali di medie dimensioni. Le basi annoiate con una griglia hanno una capacità portante maggiore rispetto alle basi monolitiche e a nastro e sono più economiche.
Pali trivellati, in grado di sopportare un carico di circa 1500 kg. Per erigere una struttura di medie dimensioni, avrai bisogno di diverse dozzine di colonne, il cui diametro può raggiungere i 150 cm e la lunghezza fino a 40 m.
Per attrezzare la base dell'edificio non sono necessari grandi lavori di sterro. Ogni pila è impermeabilizzata con due strati di feltro per tetti o feltro per tetti e fissata in uno strato di terreno antigelo. L'impermeabilizzazione protegge il calcestruzzo dalla distruzione e riduce la pressione del suolo sui supporti.
Vantaggi della fondazione su supporti annoiati:
- durante la costruzione della fondazione, gli edifici situati nelle immediate vicinanze non sono esposti a forze dinamiche;
- la possibilità di installare su qualsiasi terreno;
- non danneggia il paesaggio circostante;
- situato al di sotto del livello di congelamento del suolo;
- adatto per legno, telaio e case di mattoni;
- economicità;
- la velocità del dispositivo di fondazione è di diversi giorni.
Le parti superiori dei pilastri installati sono tagliate allo stesso livello, dopo di che sono unite da una cintura comune. Una griglia su pali trivellati permette una distribuzione uniforme del carico esercitato dal peso della struttura su tutto il basamento dell'edificio. Il dispositivo della fondazione con griglia a palo può essere visto nel video qui sotto:
Lo svantaggio di questo design è il fatto che a causa della presenza di spazio libero tra il pavimento e il terreno, la fondazione perforata con una griglia deve essere isolata. Ciò porta a costi aggiuntivi di manodopera e materiali.
Grillage su pile di viti
Il vantaggio delle fondazioni su pali a vite è che non richiedono l'installazione di scavi e vengono solitamente utilizzate su terreni argillosi e pesanti. Dopo aver installato i supporti, le loro teste vengono tagliate in un livello e viene installata la cinghia a traliccio.
Le strutture monolitiche in cemento armato e cemento per pile a vite sono realizzate estremamente raramente, poiché questo tipo di supporto viene utilizzato per la costruzione di strutture leggere. Molto spesso, la griglia a vite è costituita da un angolo o canale di metallo.
Prima di installare la griglia sulle teste pile di viti, ad esse sono saldate piattaforme metalliche, le cui dimensioni dovrebbero consentire di correggere lo spostamento assiale dei supporti.Inoltre, tutte le pile sono fissate con un canale o un angolo, a seguito del quale viene creata una struttura forte e affidabile.
Importante! Prima di installare la fondazione e la griglia su pile di viti, è necessario eseguire un trattamento anticorrosione di tutti gli elementi strutturali metallici. Ciò aumenterà notevolmente la vita utile della struttura in costruzione.
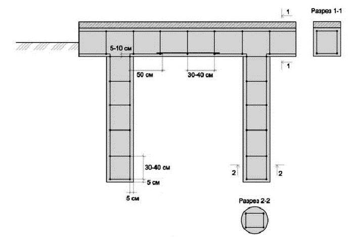
Dimensioni e dimensioni principali
Per creare una base forte e durevole, è necessario effettuare i calcoli corretti. La forma e le dimensioni della griglia utilizzata sono determinate dalle caratteristiche strutturali dell'edificio in costruzione, dai carichi sulla fondazione, dal numero e dalla posizione dei pali.
Viene creata la griglia e la costruzione della fondazione della striscia. L'altezza delle griglie per le fondazioni dei pali dipende direttamente dal livello a cui la struttura deve essere sollevata da terra, nonché dal suo peso. Puoi eseguire autonomamente il calcolo di una struttura basata sul terreno o leggermente approfondita. Nel caso di un dispositivo a cintura appesa, è meglio affidare i calcoli agli specialisti, poiché sono molto difficili per un non professionista.
È possibile calcolare in modo indipendente le dimensioni della griglia della fondazione su pali utilizzando la formula B = M / (L × R)dove:
- B - l'altezza minima consentita per il supporto della cintura;
- M - il peso della struttura della struttura esclusi i supporti utilizzati;
- L - lunghezza della cintura;
- R - la forza del suolo alla superficie della terra.
Le gabbie di rinforzo per cinture su una fondazione su pali vengono create allo stesso modo di una struttura su una fondazione a strisce. Nella struttura è necessario eseguire rinforzi trasversali longitudinali (di lavoro), orizzontali e verticali. La sezione totale del rinforzo longitudinale deve essere almeno lo 0,1% della sezione della cintura. Per selezionare la sezione trasversale di ciascuna barra e il loro numero pari, viene utilizzato un assortimento di rinforzi.
| Tipo di armatura | Lunghezza della cintura, m | Diametro, mm |
|---|---|---|
| Rinforzo longitudinale (funzionante) | Fino al 3 | dal 10 |
| Oltre 3 | dal 12 | |
| Rinforzo orizzontale (trasversale) | dal 6 | |
| Rinforzo verticale | Fino a 0,8 | dal 6 |
| Più di 8 | dalle 8 |
Principali produttori e serie standard di bistecchiere
Per edifici privati o di piccole dimensioni, è possibile realizzare cinture reticolari direttamente in cantiere, ma durante la costruzione di edifici industriali, edifici a più piani, ecc. utilizzare progetti realizzati in fabbrica. Tra i principali produttori di grigliati in cemento armato da 35 tonnellate, si possono distinguere le seguenti aziende:
- JSC APSK "Gulkevichsky";
- CJSC "OBD";
- JSC "T-Beton";
- LLC LSR. Costruzione-Ural ";
- LLC "ZKPD Tomsk House-Building Company";
- JSC "PZSP".
| Serie | Descrizione | |
|---|---|---|
| Grigliati monolitici in cemento armato serie 1.411.1-1 / 89 | Per la realizzazione di fondazioni per pilastri prefabbricati in cemento armato di edifici industriali a uno e più piani delle serie II 20-1 / 70, II 20-2 / 70, II 20-3 / 70. | I supporti delle strutture delle serie II 20-1 / 70, II 20-2 / 70, II 20-3 / 70 hanno una sezione di 400 * 400 e 400 * 600 mm. e deve essere annegato nella fondazione di 600 mm. |
| Serie 1.011-6 | Realizzato in cemento pesante, classe B 12,5 | Pali quadrati 300 * 300 e 350 * 350 mm. |
| Serie per griglia metallica: 3.407-115 3.407.2-162 3.407.9-146 3.407.9-1581 | Per il funzionamento della struttura a temperatura: ● fino a - 40 ° C, la griglia è realizzata in acciaio al carbonio grado ВСт 3, corrispondente a GOST 380-71; ● inferiore a - 40 ° C per la griglia, viene utilizzato acciaio bassolegato di qualità 09G2S, che corrisponde a GOST 19281-73 e 19282-73. | |
Il nome, che designa le tipiche griglie per le fondazioni su pali, include gli indici delle lettere obbligatorie RS e RB e numeri di serie. I segni РС1 - РС5 vengono utilizzati su supporti quadrati e i contrassegni RB vengono utilizzati per pile rettangolari.
Importante! Se è necessario ordinare griglie da 50 tonnellate, il produttore di prodotti in calcestruzzo deve essere scelto con molta attenzione per garantire la resistenza e la durata dell'intera struttura.
Disposizioni di base per la progettazione e il calcolo della griglia del palo
Quando si costruisce una fondazione a graticcio, è necessario conoscere i requisiti di base per una griglia ed eseguire calcoli competenti dell'intera struttura. È inoltre necessario disporre di uno schema esecutivo per le griglie, sul quale sono indicati tutti i principali elementi strutturali. Un punto importante nella progettazione della fondazione dell'edificio è il calcolo esatto del numero richiesto di supporti per ogni specifico tipo di struttura. Il calcolo si basa sul peso totale della struttura e sulla capacità portante del terreno. La massa della casa deve essere divisa per la capacità portante del terreno e, otteniamo il valore dell'area della base proiettata. Per determinare il fattore di sicurezza, l'area della fondazione dovrebbe essere aumentata del 30%. Per calcolare il numero richiesto di colonne di sostegno, l'area di base deve essere divisa per il volume di ogni pila, mentre devono essere soddisfatte le seguenti condizioni:
- i supporti devono essere installati in tutti gli angoli della struttura da montare;
- le pile sono montate nei punti di intersezione delle pareti dell'edificio;
- secondo SNIP, la distanza tra le pile nella griglia è di 2-2,5 m.
Il collegamento del mucchio alla cintura può essere rigido o libero. In caso di connessione libera, le teste dei supporti entrano nella griglia ad una profondità di 50-100 mm. Questo tipo di fissaggio è adatto per colonne di supporto caricate centralmente.
Con una connessione rigida, la testa del palo si rompe e il rinforzo viene esposto, dopo di che è monolitico in una griglia di cemento o cemento armato. Questo tipo di allegato viene eseguito nei casi in cui:
- la costruzione di fondazioni su pali con grill viene eseguita su terreni instabili;
- i carichi orizzontali sono posti sui supporti;
- alla base sono installati supporti combinati o inclinati;
- le colonne portanti lavorano con carichi in trazione.
Esempio di calcolo
Considera un esempio di calcolo di una fondazione su pali con grate per una casa di mattoni a un piano con un tetto a padiglione fatto di tegole metalliche. L'edificio ha due solai in cemento armato di spessore 220 mm. Le dimensioni della casa in pianta sono 6 * 9 m, lo spessore dei muri portanti è di 380 mm. L'altezza totale del pavimento è di 3,15 m, dal pavimento al soffitto - 2,8 m, e la lunghezza totale delle partizioni all'interno dell'edificio è di 10 m (non ci sono muri interni nei locali). Sul sito è presente una miscela refrattaria con una porosità di 0,5 e una profondità di 3,1 m.
| Tipo di carico | Coefficiente |
|---|---|
| Legna | 1,1 |
| Metallo | 1,05 |
| Riempimento, isolamento, cemento armato, massetti | 1,1 |
| Articoli fabbricati | 1,2 |
| Elementi realizzati direttamente in cantiere | 1,3 |
| Attrezzature, mobili, persone | 1,2 |
| Neve | 1,4 |
Preimpostiamo la larghezza della griglia 400 mm. e un'altezza di 500 mm. La lunghezza del supporto è di 3 me la sezione trasversale è di 50 cm Siamo guidati dal gradino delle pile di supporto - 1,5 m Per determinare il numero totale di pile, è necessario dividere la lunghezza della griglia per il gradino dei supporti e aggiungere 1 (se necessario, arrotondare il valore risultante per un intero numeri - 30 / 1,5 + 1≈21).
- Area di supporto, m2 3,14*0,52/4 = 0,196
- Perimetro, m - 2*3,14*0,5 = 3,14
- Peso alla griglia, kg- 0,4 m. * 0,5 m. * 30 m. * 2500 kg / m3 = 19500
- Peso supporto, kg- 21 * 3 m. * 0,196 m2* 2500 kg / m3*1,3 = 40131
- Peso edificio, t- Peso supporti + peso griglia + totale da tavola ≈ 224
Per calcolare il volume della griglia e altri parametri, è necessario determinare la massa della struttura senza supporti di fondazione. Di conseguenza, otteniamo M = 204 t. La larghezza della salatura è uguale a M / (L * R) = 204 / (30 * 75) = 0,09 m. Tale cintura non può essere utilizzata per la costruzione, in questo caso, poiché le sporgenze dei muri di mattoni non dovrebbero essere più di 40 mm. Pertanto, assegniamo la larghezza - 400 mm e l'altezza rimane - 500 mm.
Calcolo e disegni di rinforzo della griglia di fondazione su pali
La sezione trasversale dell'armatura orizzontale (di lavoro) deve essere 0,1% * 0,4 * 0,5 = 0,0002 m2 = 2 cm2... In questo caso sono sufficienti 4 aste metalliche Æ 8 mm, ma secondo gli standard è necessario utilizzare il minimo consentito Æ 12 mm. Per l'armatura verticale e trasversale, vengono utilizzate barre Æ 6 mm.
I calcoli richiedono del tempo, ma possono far risparmiare molto tempo e denaro durante la costruzione di una casa. Per una migliore comprensione dell'importanza del processo di calcolo, dovresti guardare questo video:
Creare una base a griglia con le tue mani
Per un'installazione indipendente di una fondazione a graticcio, è necessario eseguire le seguenti fasi di lavoro:
- progettazione e calcolo della fondazione;
- lavori preparatori e pianificazione del sito;
- perforazione e scavo di pozzi;
- creazione di casseforme;
- realizzazione di un telaio di rinforzo;
- colata di cemento e vibrante.
Nel caso in cui venga utilizzata una griglia metallica nella fondazione, viene saldata alle teste delle colonne di supporto. Quando si installa la cintura, l'orizzontale deve essere rigorosamente mantenuto in modo che il carico dall'edificio venga trasmesso uniformemente alla fondazione.
Predisponendo una struttura ad incasso in cemento armato, sarà necessario riempire in pietrisco con una frazione di 20-60 mm, e compattarlo utilizzando un vybroplat. Lo strato di pietrisco deve essere di almeno 150 mm. Per migliorare la capacità portante del terreno sotto la cintura, la pietra frantumata deve essere posata in piccoli strati, che devono essere compattati con un vibratore. La cassaforma per la griglia è installata sul substrato di pietrisco, la cui larghezza dovrebbe superare leggermente lo spessore delle pareti e l'altezza dei pannelli della cassaforma dovrebbe anche tenere conto delle dimensioni del futuro seminterrato.
Nello schema di rinforzo delle grate delle fondazioni su pali, proprio come nella costruzione delle fondazioni, vengono utilizzate due cinghie superiori e inferiori di rinforzo metallico, nonché aste verticali e longitudinali di diametro inferiore. Nella fase di rinforzo, è necessario posare scatole e tubi per la successiva posa delle utenze. Poiché, se ciò non viene fatto, in seguito dovrai martellare il cemento, il che porterà a una violazione dell'integrità del monolite.
Riempiendo la cintura di cemento, è necessario far vibrare la soluzione. È difficile ottenere uniformità e resistenza elevata senza seguire questa procedura. Ecco perché la lavorazione del calcestruzzo con un vibratore durante il getto della fondazione e della cintura è estremamente necessaria e obbligatoria. La cassaforma può essere rimossa dopo 4 giorni se la temperatura dell'aria era + 20 ° C dopo la gettata. A questo punto, la resistenza di progetto del calcestruzzo raggiungerà il 50%, il che è abbastanza per iniziare la fase successiva dei lavori di costruzione. A una temperatura di + 10 ° C, questo periodo sarà di circa 2 settimane. A temperature più basse, il monolite versato necessita di isolamento o riscaldamento.
Gli errori tipici commessi durante la creazione di una fondazione annoiata con una griglia possono essere visti nel video qui sotto:
Articolo correlato:
Fondazione fai da te su pile di viti. Qualsiasi costruttore più o meno competente è perfettamente in grado di realizzare una struttura del genere. I suoi vantaggi e svantaggi, le caratteristiche di installazione e finitura sono tutto questo nel nostro materiale.
Considera i pro ei contro di una fondazione su pali con una griglia a una profondità di congelamento e perché questo tipo di fondazione è preferito.
I vantaggi includono:
- elevata stabilità e capacità portante;
- a basso costo;
- non necessita di grandi volumi di sterro;
- facilità di installazione;
- elevata stabilità su terreni instabili.
Tra gli svantaggi della fondazione con griglia a pelo ci sono i seguenti:
- l'impossibilità di costruire un seminterrato;
- la costruzione di muri con materiali pesanti non è raccomandata;
- la complessità di eseguire i calcoli necessari.
Conclusione
In quasi tutti i casi, quando si costruiscono le fondamenta per edifici a uno o più piani, è necessario creare una griglia. L'uso di una cintura durante la creazione delle fondamenta è un processo piuttosto laborioso, tuttavia, se tutti i requisiti vengono presi in considerazione e soddisfatti, vengono effettuati i calcoli necessari e vengono utilizzati materiali da costruzione di alta qualità e compatibili, viene garantita l'affidabilità dell'intera struttura dell'edificio.









































