Fossa settica fai-da-te senza pompare 10 anni per cottage domestici ed estivi: caratteristiche di installazione e foto
DIUna delle condizioni per un comodo passatempo fuori città è la costruzione di una rete fognaria. Allo stesso tempo, vengono eseguiti lo smaltimento delle acque reflue, la raccolta e lo smaltimento di alta qualità. Tali progetti richiedono una pulizia regolare. Per evitare la frequente chiamata di attrezzature speciali per il pompaggio dei rifiuti, puoi assemblare una fossa settica con le tue mani senza pompare per 10 anni per una casa e un cottage estivo. Per il corretto lavoro di installazione, è necessario saperne di più sulle caratteristiche strutturali di tali strutture.
Il contenuto dell'articolo
- 1 Una fossa settica con le tue mani senza pompare 10 anni per una casa e una residenza estiva in sostituzione di un pozzo nero
- 2 Come scegliere il posto giusto per posizionare una fossa settica
- 3 Prezzo per fosse settiche per una casa privata
- 4 Dispositivo per fosse settiche fai da te da anelli di cemento: diagramma e caratteristiche costruttive
- 5 Costruzione monolitica in calcestruzzo
- 6 Applicazione di Eurocubes
- 7 Come usi le botti?
- 8 Fosse settiche per cottage estivi con un alto livello di acque sotterranee: caratteristiche di installazione
- 9 Video: fossa settica con le tue mani
Una fossa settica con le tue mani senza pompare 10 anni per una casa e una residenza estiva in sostituzione di un pozzo nero
La necessità di installare un sistema fognario sorge quando si vive in una casa di campagna durante tutto l'anno. In questo caso, è necessaria una fossa fognaria. Questo è uno speciale contenitore sigillato dove vengono raccolti i rifiuti. In tale installazione, i rifiuti non vengono smaltiti naturalmente e spesso è necessario il pompaggio tramite una macchina per fognatura. Creare una fossa settica con le tue mani senza pompare 10 anni per una casa e una residenza estiva è considerata l'opzione migliore.
Le sfumature delle fosse settiche per una casa privata con le tue mani
Per qualsiasi progetto di una fossa settica, di tanto in tanto è necessario il pompaggio. Pertanto, vale la pena considerare l'organizzazione del servizio.

Prima di procedere con l'installazione, vale la pena considerare i dettagli dell'installazione e raffigurarli su carta
Prima di installare il sistema, è necessario eseguire calcoli di un volume adeguato, nonché determinare la capacità di drenaggio del terreno.

Il design è costituito da molti elementi aggiuntivi che richiedono la giusta scelta della posizione per la posizione
La fossa settica è una costruzione solida e solida. Più lentamente l'acqua si muove, meglio pulisce.
È importante scegliere la giusta dimensione della fossa settica. Ciò aiuterà la struttura a funzionare meglio. Se il sistema viene utilizzato tutto l'anno, deve essere interrato mezzo metro sotto il punto di congelamento. Dopo 12-15 anni di attività, il terreno inizia a interrarsi.
Informazioni utili! Affinché le fosse settiche per i cottage estivi inizino a funzionare senza pompare, i batteri devono stabilirsi nel serbatoio. Per questo, viene introdotta una miscela limosa. Puoi invece usare il kefir.
Il dispositivo e il principio di funzionamento della struttura
Un separatore viene utilizzato per raccogliere le acque reflue. Separa componenti solidi e liquidi. Le sostanze pesanti si depositano sul fondo e sulla superficie si forma una crosta.
Con l'aiuto dei batteri, le frazioni dense vengono elaborate biologicamente. In questo caso si formano componenti gassosi che richiedono uno scarico. La fossa settica è un fosso con un fondo di terreno, in cui le pareti sono ulteriormente rinforzate.
La struttura ha il seguente segno di azione: i liquidi passano lentamente nel terreno. Il volume della sostanza passata dipende dalle dimensioni della colonna d'acqua.
Opzioni del dispositivo senza pompaggio
Le fosse settiche per una casa privata possono essere di vari modelli. Con le tue mani, invece di un filtro bene, puoi installare un sistema di tubi o un fosso con filtrazione. Con l'aiuto di varie attrezzature, è possibile aumentare la produttività dell'impianto di trattamento delle acque reflue.

La fossa settica, realizzata a mano, va realizzata tenendo conto della possibilità di ulteriori manutenzioni
Per migliorare le prestazioni del dispositivo, è possibile apportare le seguenti modifiche:
- se una pompa di drenaggio è installata nella seconda camera, è possibile utilizzare l'acqua accumulata Smalto;
- l'utilizzo di un compressore per spostare l'aria attraverso il separatore contribuirà a migliorare l'attività batterica. Ciò ridurrà la formazione di limo;
- il serbatoio del filtro può essere disposto con pietre, tra di loro si formano delle cavità dove passerà l'acqua.
Articolo correlato:
Fosse settiche per cottage estivi: quale è meglio? Esempi di diversi tipi di strutture di trattamento, nonché suggerimenti utili per la loro installazione, sono disponibili in una pubblicazione separata sul nostro portale.
Come scegliere il posto giusto per posizionare una fossa settica
Per creare una fossa settica di alta qualità con le tue mani senza pompare 10 anni per una casa e un cottage estivo, devi scegliere il posto giusto. Dovrebbe essere posizionato a venti metri da un pozzo potabile ea un metro dal passaggio delle acque sotterranee.
L'acqua da esso deve essere deviata lontano dalle fondamenta. Il volume della struttura dovrebbe superare la quantità di acqua consumata tre volte, poiché gli scarichi devono depositarsi nel contenitore per circa tre giorni.
Se il sito ha una pendenza, il sistema deve essere posizionato sotto la posizione dell'edificio principale.
Informazioni utili! La distanza minima dall'edificio alla stazione deve essere di almeno cinque metri.
Calcoli del volume e della profondità della struttura futura
L'installazione dei sistemi di trattamento inizia con la marcatura della posizione delle acque. Ciò tiene conto della profondità di congelamento dello strato di terreno.Affinché il dispositivo funzioni completamente, è possibile utilizzare materiali come trucioli di plastica espansa, argilla espansa o polistirolo.
Le camere della struttura devono avere un volume che viene calcolato tenendo conto della quantità giornaliera di acque reflue. In questo caso, devono essere presi in considerazione i seguenti punti:
- numero di residenti;
- uso di attrezzature idrauliche;
- caratteristiche del lavoro degli elettrodomestici;
- caratteristiche delle faccende domestiche in casa e sul sito.
Informazioni utili! Secondo SNiP, con un volume di scarico fino a 1 metro cubo al giorno, è necessaria una struttura con una camera. Se il numero varia da 1 a 10, viene selezionata una struttura a due camere. Tre camere sono utilizzate per grandi volumi.
Prezzo per fosse settiche per una casa privata
Molti impianti di trattamento sono offerti da produttori nazionali. Non vengono presentati solo dispositivi costosi, ma anche fosse settiche economiche per una casa privata. Il prezzo dipende dal numero di telecamere e dalle prestazioni.
La tabella mostra i modelli più famosi:
| Nome | Scarico liquido, l | Prezzo medio, strofinare. |
|---|---|---|
| Topas 8 | 450 | 107 000 |
| Eco-Grand 5 | 260 | 74 000 |
| Unilos Astra 3 | 160 | 66 500 |
| Germoglio | 250 | 26 900 |
| Termite | 400 | 74 000 |
| Serbatoio 1 | 600 | 35 000 |
| Tritone | 500 | 48 000 |
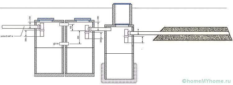
Dispositivo per fosse settiche fai da te da anelli di cemento: diagramma e caratteristiche costruttive
Puoi creare una fossa settica da anelli di cemento con le tue mani. Il diagramma mostra le caratteristiche di questo design.
Gli anelli di cemento sono tra i materiali più diffusi per la costruzione di impianti di depurazione. I vantaggi del design includono:
- velocità del lavoro di installazione;
- ottima tenuta;
- lunga durata;
- forza.
Il diametro della struttura dovrebbe essere selezionato tenendo conto del volume. Tuttavia, una telecamera richiede quattro anelli. Gli svantaggi includono il volume limitato e l'alto costo di costruzione.
Dopo aver creato il pozzo di fondazione, viene realizzata la base per le camere di stoccaggio. Questa zona viene cementata. Un cuscino di pietrisco è realizzato per attrezzare bene il filtro. Gli anelli sono montati uno sopra l'altro. Un passo importante è considerato la conduzione dei tubi al pozzo. In questo caso, è necessario calcolare correttamente l'angolo di inclinazione e il diametro.

La disposizione delle strutture in anelli di cemento facilita l'accesso durante la manutenzione del sistema
Le camere sono sigillate da entrambi i lati. Per questo vengono utilizzati lubrificanti e malta cementizia.
Costruzione monolitica in calcestruzzo
Le installazioni monolitiche in calcestruzzo sono considerate affidabili e durevoli. Hanno i seguenti vantaggi:
- lunga durata;
- praticità;
- elevate proprietà impermeabilizzanti;
- disponibilità di materiali.
Gli svantaggi di tali strutture includono la necessità di installare un sistema di rinforzo e un basso livello di produttività. Quando si esegue il calcestruzzo, è necessaria la posa di una rete di rinforzo. Per i danni da corrosione, è necessario creare uno strato di cemento sul sito.
Informazioni utili! Prima dell'installazione di tale installazione, viene eseguita la cassaforma. Per crearlo, scudi e Schede OSB... Questi tipi di materiali sono caratterizzati da una maggiore resistenza all'umidità e basso costo.
Applicazione di Eurocubes
Se hai determinati materiali, puoi creare una buona fossa settica dagli eurocubi con le tue mani senza pompare.Gli Eurocubes sono contenitori speciali realizzati con materie prime polimeriche. Una base di cemento è necessariamente realizzata sotto di loro. Ciò impedirà al sistema di spostarsi sotto l'influenza delle acque sotterranee.
L'installazione in plastica deve essere isolata prima dell'installazione. Quindi la struttura viene cementata e riempita d'acqua. I tubi di ventilazione vengono portati in superficie. Questo utilizza campi di filtrazione e cassette filtro.
Informazioni utili! Per migliorare il processo di pulizia, si consigliano additivi biologici che aumentano la velocità di decomposizione delle particelle.

La tenuta della struttura durante l'installazione dei tubi è assicurata da speciali sigillanti e soluzioni
Come usi le botti?
Spesso un barile viene utilizzato per creare una fossa settica. Un design simile è costituito da diverse camere. Il processo di movimento del fluido viene eseguito per gravità. Per questo, l'installazione viene eseguita sotto i tubi installati.
Per aumentare la struttura, è possibile eseguire l'installazione di una seconda canna. Durante l'installazione, è necessario osservare la tenuta. Questa struttura ha molti vantaggi. Questa è una vasta gamma, resistenza a fattori aggressivi e una lunga durata.
Prodotti in plastica
Facile installazione da un barile di plastica. Non necessita di particolare manutenzione. Se l'edificio viene utilizzato per la residenza permanente, è possibile utilizzare un serbatoio, un intero serbatoio o un cubo di plastica.
Fosse settiche per cottage estivi con un alto livello di acque sotterranee: caratteristiche di installazione
Un approccio speciale richiede l'uso di fosse settiche per cottage estivi con un alto livello di acque sotterranee. Allo stesso tempo, è importante pensare al sistema di trattamento delle acque reflue. Per questo, viene utilizzata una struttura sigillata e di stoccaggio. Allo stesso tempo, il sistema è protetto dall'intrusione di liquidi sotterranei. Ma una tale struttura richiede una pulizia regolare con attrezzature speciali.
Per l'installazione di un contenitore sigillato, viene utilizzata plastica o cemento. Questo design è suddiviso in camere, progettate per fornire e rimuovere i fluidi di scarto.
Informazioni utili! Se la struttura viene installata senza pompare il liquido, viene eseguito un trattamento aggiuntivo delle acque reflue. In questo caso, vengono utilizzate cassette filtro speciali.

L'alto livello delle acque sotterranee richiede l'installazione di una struttura speciale, che può essere eseguita in modo indipendente
Articolo correlato:
Una fossa settica per una residenza estiva con un alto GWL. Un materiale separato fornisce informazioni sulla costruzione di fosse settiche con un alto GWL, installazione e regole operative.
Come scegliere una fossa settica per un'area con un alto livello di acque sotterranee
Quando scegli una fossa settica per un sito con un alto livello di acque sotterranee, dovresti essere guidato da alcuni consigli:
- il volume dell'impianto è calcolato in base alla velocità di trattamento delle acque inquinate;
- è meglio usare materiali in cemento o polimerici per creare una struttura;
- strutture efficaci che sono montate orizzontalmente e a basse profondità;
- si possono utilizzare sistemi forzati o sistemi cumulativi;
- il numero di camere influisce sul risultato della pulizia.
Informazioni utili! Non dovresti costruire fosse settiche da pneumatici o mattoni. Con una posizione ravvicinata delle acque sotterranee, vale la pena abbandonare l'uso di tubi perforati.
La scelta dei design per le fosse settiche è varia. Molti di loro possono essere creati indipendentemente dai materiali di scarto.
Video: fossa settica con le tue mani










































