Idei dovedite practic sau Cum să faci un polizor cu propriile mâini conform desenelor cu dimensiuni
Un instrument într-o gospodărie este un lucru necesar. Un meșter de casă nu se poate descurca fără burghie, râșniță, șurubelniță și multe alte dispozitive necesare reparării și construcției. Dar nu toată lumea are posibilitatea de a cumpăra mecanisme la nesfârșit dacă sunt necesare doar pentru o muncă temporară sau urgentă. Există o mulțime de informații în rețea despre produsele de casă care pot fi realizate din material vechi. Astăzi, comisia de redacție homebase.techinfus.com/ro/ a pregătit pentru dvs. toate cele mai utile informații despre cum să faceți un polizor cu propriile mâini. Desene cu dimensiuni, opțiuni pentru utilizarea diferitelor motoare și sfaturi practice ale profesioniștilor din materialul nostru.
Conținutul articolului
- 1 Ce este un polizor și la ce servește
- 2 Schema schematică a proiectării polizorului și principiul funcționării acestuia
- 3 Un exemplu de mecanism bine gândit este un polizor de la Chapay
- 4 Recomandări video și foto pentru a face o mașină de tocat acasă
- 4.1 Ce să faci o unitate pentru un polizor
- 4.2 Merită să faceți o râșniță de casă cu un motor de mașină de spălat
- 4.3 Recomandări pas cu pas cu privire la modul de realizare a polizorului dintr-un burghiu
- 4.4 Râșniți-vă singuri dintr-o râșniță: desene și duze gata făcute
- 4.5 Cum să faci un polizor dintr-un polizor cu propriile mâini: instrucțiuni video
- 4.6 Cum să faci un polizor cu propriile mâini: desene cu dimensiuni de la diferiți autori
- 4.7 Cum să lipiți o bandă pentru o polizor cu propriile mâini și cerințe speciale pentru aceasta
- 4.8 Cum și ce să faci role pentru bricolaj
- 4.9 Cum să faci un scripete pentru un polizor cu propriile mâini: recomandări video
- 4.10 Masă rotativă pentru polizor
- 5 Prețuri pentru polizoare de uz casnic și profesionale
Ce este un polizor și la ce servește
Cuvântul „Grinder” este de origine engleză și literalmente citește ca un grinder. În termeni tehnici, acest termen este folosit pentru a se referi la un dispozitiv de măcinare. Deci, s-ar putea numi doar această unitate un polizor, dar atunci ar exista o confuzie cu polizoarele manuale care au un dispozitiv ușor diferit. Grinder este o unitate staționară cu acționare electrică.

În caz contrar, designul său este foarte asemănător cu o șlefuitoare manuală și se bazează pe un scripete rotativ cu o bandă de hârtie abrazivă
La ce se folosește un polizor? În primul rând, este un mecanism de ascuțire a sculelor de tăiat de uz casnic.Cu o anumită îndemânare, puteți ascuți perfect cuțitele sau foarfecele de bucătărie, tăietorii de lemn. În plus, cu ajutorul unei mașini staționare, meșterii macină piese din lemn, piese din piatră și metal. Un polizor va ajuta la alinierea marginii de sticlă, plăci din fibră sau MDF.
Mașinile profesionale nu sunt ieftine - de la 30.000 de ruble, așa că problema cum să faci un polizor de casă cu propriile mâini este discutată în multe forumuri.
Schema schematică a proiectării polizorului și principiul funcționării acestuia
După cum am spus deja, designul polizorului seamănă cu un dispozitiv simplu al polizorului manual. Mișcarea benzii de șlefuit se efectuează cu ajutorul rolelor și acestea sunt rotite de un motor electric. Pentru a face centura să se întindă fără a se lăsa, există un mecanism de tensionare care mișcă unul dintre role. Diferența față de o unitate manuală este doar în prezența unui dispozitiv care fixează piesa de prelucrat. Este o masă cu mecanism pivotant și încuietori sigure. Masa poate fi rotită pentru a manipula piese din diferite părți.
Pentru a asigura măsuri de siguranță atunci când lucrați cu un mecanism rotativ, râșnița este echipată cu un ecran acrilic.
Întregul mecanism este conectat la mașina universală folosind elemente de fixare fiabile. Modelele fabricate din fabrică sunt, fără îndoială, destul de puternice și dau impresia că sunt ușor de utilizat. Dar bricolajii se plâng de fiabilitatea elementelor de fixare standard și de lungimea excesivă a benzii, care necesită un motor de mare putere. Deci, nu numai din cauza costului ridicat, ci și din motive pur practice, mulți decid să facă o polizor de curea cu propriile mâini. Această lucrare nu este atât de dificilă pe cât pare la prima vedere și puteți utiliza și piese de schimb second hand din alte mecanisme.
Un exemplu de mecanism bine gândit este un polizor de la Chapay

Marca „de la Chapay” este un instrument universal datorită unui dispozitiv și a unui design competent și practic gândit
Mașinile Chapaevsky sunt capabile să prelucreze lemn, metal, plastic, piatră. Acestea sunt comandate de oameni care au nevoie de utilizarea constantă a acestui instrument și de reglarea sa specială. Astfel de polizoare sunt un exemplu de dispozitive de casă cu performanțe ridicate. Iată o prezentare rapidă a unui astfel de model:
vizualiza polizor Chapay
Recomandări video și foto pentru a face o mașină de tocat acasă
Dispozitivul a trecut prin mai multe actualizări, iar acum există multe „clone”. Pentru o persoană care este chiar în cel mai mic nivel versat în mecanică, este posibil să repete un astfel de ansamblu cu o parte din răbdare și perseverență. Să aruncăm o privire mai atentă la detaliile procesului.
Ce să faci o unitate pentru un polizor
Unitatea este cea mai importantă parte a oricărei mașini. Selectați motorul potrivit pentru mașină. Polizor necesită un motor de la o jumătate până la trei mii rpm cu o capacitate de 0,75 kW.

Puteți utiliza și motoare de mare putere, în kilowați sau mai mult, dar există pericolul ca banda de smirghel să se rupă
Performanța dispozitivului depinde de puterea motorului. Este foarte convenabil dacă există posibilitatea reglării manuale a unității pentru rezolvarea diferitelor probleme. Când începeți să faceți o mașină de măcinat simplă cu propriile mâini, scotociți coșul de gunoi din garaj sau magazie: probabil există motoare adecvate de la unități care și-au servit timpul.
Merită să faceți o râșniță de casă cu un motor de mașină de spălat
Să începem cu problema controversată a realizării unui polizor de bricolaj bazat pe un motor de la o mașină de spălat. Este controversat dintr-un singur motiv: în timpul funcționării, pe dispozitiv se generează mult praf și așchii, particule de vopsea și alte deșeuri. Se înfundă în orificiile motorului de la mașina de spălat, iar structura eșuează rapid. Cu toate acestea, pentru unii meșteri, astfel de unități funcționează cu succes. Un exemplu de astfel de dispozitiv în acest videoclip:
Recomandări pas cu pas cu privire la modul de realizare a polizorului dintr-un burghiu
Un burghiu este un instrument obligatoriu în fiecare casă. Deseori se sparge ceva în el, apare o carcasă sau o ancoră sau poate un model nou, mai puternic și mai convenabil, astfel încât cel vechi adună praf undeva într-o cutie din garaj.
Cum se face acest lucru în practică - să analizăm procesul în detaliu în instrucțiunile foto și video:
Râșniți-vă singuri dintr-o râșniță: desene și duze gata făcute
Un polizor unghiular sau, într-un mod comun, un polizor, este o bază aproape gata pregătită pentru un LSM. Pe baza sa, o mașină este asamblată conform aceluiași algoritm ca dispozitivul de mai sus dintr-un burghiu. Schema este după cum urmează:
Rezultatul este un mini polizor DIY care va ascuți cuțitele și foarfecele. Există o opțiune să nu începeți cu produse de casă, ci să cumpărați o duză din fabrică. Este atașat la polizor cu un suport. Găsirea unui astfel de dispozitiv nu este ușoară, dar în această epocă a comerțului pe internet, nimic nu este imposibil. Un astfel de obiect gadget este convenabil, deoarece este posibil să utilizați un polizor de lucru fără a încălca în mod fundamental designul unui dispozitiv de lucru.

Un astfel de polizor este potrivit pentru netezirea cusăturilor după sudare. Pentru alte lucrări, va trebui să vă gândiți la o montură staționară
Cum să faci un polizor dintr-un polizor cu propriile mâini: instrucțiuni video
O altă versiune ușor de utilizat a unui LSHM de casă este de la un polizor convențional. Aproape tot ce trebuie să faceți este să fixați dispozitivul pe un banc de lucru și să configurați un sistem de pornire și oprire. Mai multe despre acest lucru în videoclip.
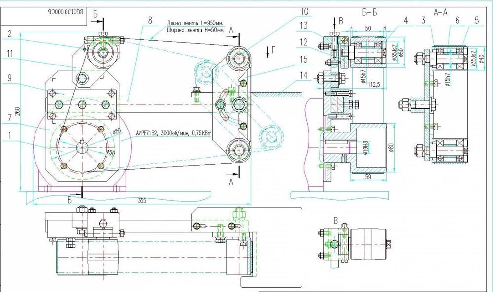
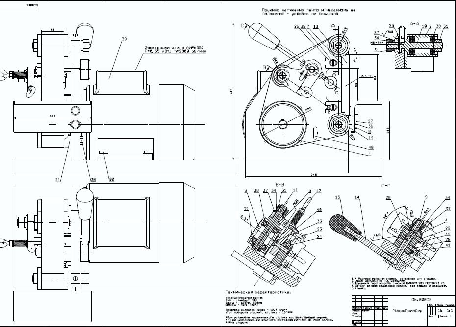
Cum să faci un polizor cu propriile mâini: desene cu dimensiuni de la diferiți autori
Fiecare maestru aduce ceva al său la proiectare, așa că, înainte de a începe să faceți un ascuțitor dintr-o râșniță cu propriile mâini, studiați posibilele opțiuni. Iată câteva desene, de exemplu:
Cum să lipiți o bandă pentru o polizor cu propriile mâini și cerințe speciale pentru aceasta
Când dezvoltați o râșniță de casă cu propriile mâini, este mai bine să prevedeți utilizarea benzii de smirghel de dimensiuni standard. Dimensiunile standard sunt lungimi în 1830, 1600, 1230, 915 și 610 mm și lățimi de 100 și 50 mm. Apoi, nu trebuie să vă descurcați cum să faceți o bandă pentru o polizor cu propriile mâini. Banda, de casă sau fabricată în fabrică, trebuie să îndeplinească următoarele cerințe:
- baza din tesatura elastica;
- capacitate mare de a rezista la viteze unghiulare;
- rezistenta la abraziune;
- posibilitatea de a se prelungi fără a rupe integritatea cu 10-15%;
- încălzire minimă în timpul funcționării pe termen lung.
Sfat! Nu utilizați benzi mai lungi de 1230 mm pentru instrumentul dvs. de casă, pentru acestea va trebui să măriți dimensiunile structurii și acest lucru propune cerințe suplimentare pentru amplasarea acestuia.

Când faceți singură banda, încercați să nu faceți mai mult de o cusătură. Toate cusăturile sunt întinse în timpul procesului de șlefuire și banda se pierde
Cum să lipiți banda acasă:
- Tăiați o fâșie de lungimea și lățimea dorită de pe foaia de smirghel. Tăiați marginile benzii în diagonală.
- Conectați marginile și pre-lipiți-le pe partea abrazivă cu bandă de mascare.
- Fixează tăietura cu câteva picături de super lipici.
- Aplicați lipici pe punctul tăiat și pe o bucată de bandă de mătase, apăsați suprafețele împreună.
- Înfășurați zona de lipire cu hârtie și apăsați-o peste noapte.
Cum și ce să faci role pentru bricolaj
Prima regulă este că rolele nu trebuie să fie prea grele, în caz contrar motorul nu va putea să deschidă imediat piesele grele și va urma un smucit inevitabil, care poate deteriora cureaua. Din acest motiv, nu se recomandă măcinarea rolelor grele de oțel. În cel mai bun caz, rola de oțel ar trebui să fie goală, iar pentru aceasta strungătorul vă va încărca aproape de două ori mai mult. O cale bună de ieșire este utilizarea duraluminului: este atât ușor, cât și suficient de greu pentru a îndeplini sarcina la îndemână. Pentru a preveni saltul benzii de pe rolă, trebuie să faceți o canelură de capăt pe ea.
Important! Suprafața rolelor trebuie să fie rugoasă în intervalul 1,25-2,5 Ra. Dacă indicatorii sunt mai mari, banda se va uza rapid. Pe rolele netede, șmirghelul se va întoarce.

Ansamblurile rulmenților trebuie ținute închise pentru a preveni pătrunderea resturilor. Știfturile de cotter sunt folosite pentru a fixa rolele pe LShM de casă
Cum să faci un scripete pentru un polizor cu propriile mâini: recomandări video
Un scripete pentru o mașină de bandat poate fi realizat dintr-o roată de motocicletă, placaj obișnuit, lemn sau alt material la îndemână. Iată un exemplu ușor de realizat al unei părți similare:
Masă rotativă pentru polizor
Fără masă, râșnița nu va putea prelucra piese complexe. Mecanismul pivotant cu posibilitatea de fixare a piesei oferă multe avantaje și permite prelucrarea precisă. Acest dispozitiv este fabricat din duraluminiu. Un suport este atașat la acesta, astfel încât masa să se poată roti orizontal. Grosimea foii de duraluminie este de cel puțin 1,5 cm. Este posibil ca o foaie subțire să nu reziste la sarcină.
Prețuri pentru polizoare de uz casnic și profesionale
Dacă nu ai ocazia și inspirația de a lucra la un produs de casă, poți cumpăra un polizor de curea online sau la un magazin de instrumente din orașul tău. Am analizat cele mai populare modele de rectificatoare de uz casnic și profesionale și vă invităm să vă familiarizați cu prețurile lor:
Dacă ați achiziționat un aparat de măcinat profesional sau de uz casnic, împărtășiți impresiile despre lucrul cu dispozitivul în comentarii. Vă vom fi recunoscători dacă vă împărtășiți propria experiență în realizarea unui dispozitiv de casă.















































