Cum să faci un dulap cu propriile mâini: desene, asamblare, exemple de soluții de succes
Controlul personal al tuturor etapelor importante ale producției vă permite să creați mobilier cu caracteristici unice, fără costuri suplimentare. Acest articol descrie cum să faci un dulap cu propriile mâini. Desene, instrucțiuni detaliate, materiale foto și video vă vor ajuta să vă realizați propriile planuri rapid și eficient.

Chiar și un proiect complex poate fi implementat cu succes pe cont propriu după o pregătire adecvată
Conținutul articolului
- 1 Cum să faci un garderobă cu propriile mâini: desene, parametrii generali ai proiectului
- 2 Avantajele și dezavantajele unui dulap: prețul produselor finite și al produselor de casă
- 3 Tipuri de dulapuri: dimensiuni, forme și alți parametri definitori
- 4 Cum să cumperi materiale pentru un garderobă corect
- 5 Utilizarea unui dulap în diferite camere
- 6 Etapele realizării unui dulap cu propriile mâini
- 6.1 Măsurători ale camerei și calculul dimensiunilor dulapului
- 6.2 Pregătirea documentației de proiectare pentru crearea unui dulap sau a unui dulap încorporat cu propriile mâini
- 6.3 Alegerea rolelor, materialelor, armăturilor și a altor componente pentru garderobă
- 6.4 Reglați ușa coupe-ului și alte caracteristici de asamblare
- 7 Aspectul unui dulap modern, fotografie cu exemple bune
- 8 Caracteristici ale realizării unui dulap la comandă
- 9 Video: cum să asamblați un dulap cu propriile mâini
Cum să faci un garderobă cu propriile mâini: desene, parametrii generali ai proiectului

A avea un pește auriu magic nu este o garanție a rezultatelor perfecte. În orice caz, este necesară formularea corectă a problemei.
Pentru a afla cum să confecționați singur un dulap, trebuie să clarificați scopul mobilierului. Un studiu atent al următoarelor fapte va fi util:
- Un volum intern semnificativ implică posibilitatea de a plasa haine și încălțăminte, aparate de uz casnic, jucării de Anul Nou, lenjerie de pat și alte lucruri. Pentru fiecare poziție, este necesar să se asigure un mod de stocare optim, convenabil pentru utilizatori.
- Cu o fațadă mare, parametrii estetici sunt esențiali. O suprafață frontală frumoasă va avea un impact semnificativ asupra percepției generale a interiorului corespunzător.
- Selectarea materialelor de bază este o sarcină critică. Nu numai costul, ci și ușurința de asamblare, durabilitatea structurii depinde în mare măsură de decizia corectă.
Este necesar să se determine parametrii armăturilor, mecanismele pentru garderobă, pentru a înțelege tehnologia de asamblare. Pachetul de documentație de proiectare trebuie să conțină o listă de componente, instrumente, elemente de fixare. Articolul discută pas cu pas toate nuanțele importante.
Avantajele și dezavantajele unui dulap: prețul produselor finite și al produselor de casă
Nu va strica să clarificați beneficiile pe care le puteți obține la dispoziția dvs. după implementarea cu succes a planurilor. Aceste informații vor ajuta la clarificarea valorii finanțării eligibile:
- Fiecare depozitare poate fi organizat exact în funcție de nevoile individuale. Pentru a ridica obiecte grele, este instalată o bară cu microlift și sunt utilizate alte soluții tehnice.
- Aspectul este selectat luând în considerare stilul general și elementele de decor ale unui anumit interior.
- Mobilierul mare este folosit pentru a corecta proeminențele, pereții neuniformi și alte defecte arhitecturale.
- Versatilitatea produsului vă permite să creați modele ideale pentru grupul de intrare, camera copiilor, alte premise.
- O gamă largă de ghiduri, accesorii specializate vă permite să realizați un dulap cu propriile mâini, de înaltă calitate, fără ajutorul specialiștilor și costuri inutile.
- Tehnologiile bine dezvoltate, atunci când sunt utilizate corect, asigură o fiabilitate ridicată a tuturor pieselor de mobilier, inclusiv a mecanismelor de fixare și mișcare a ușilor.
Video despre asamblarea dulapului DIY:
Acest material confirmă simplitatea relativă a tehnologiei. Cu toate acestea, ilustrează și principalul dezavantaj semnificativ - operațiunile de lucru vor trebui efectuate independent. Pe lângă petrecerea timpului și a efortului fizic, trebuie să ne amintim despre responsabilitatea personală pentru rezultatul final. În acest caz, nu există obligații de garanție terță parte, astfel încât erorile vor trebui corectate pe cheltuiala proprie.
Tipuri de dulapuri: dimensiuni, forme și alți parametri definitori
Construcția independentă nu diferă de mobilierul obișnuit.
În acest proiect, consolele sunt instalate în șine perforate care sunt atașate direct de peretele clădirii. Această soluție vă permite să schimbați înălțimea rafturilor în timpul funcționării, să adăugați elemente noi. Cadrul cu ghidaje pentru frunza ușii este instalat exact la capătul dimensiunilor camerei. Absența unei huse, podele și pereți reduce semnificativ costul mobilierului fără a compromite funcționalitatea, aspectul și alți parametri ai consumatorului.
Singurul „minus” este imposibilitatea de a muta garderoba în alt loc. Cu toate acestea, este permisă refolosirea echipamentului intern după demontare.
Cum să cumperi materiale pentru un garderobă corect
Lemn
Modelele scumpe de mobilier sunt create din materii prime naturale de înaltă calitate. Folosesc tipuri de lemn dure și valoroase, tehnologii sofisticate de uscare, creând straturi decorative și de protecție. Pentru utilizare în interior sunt potrivite numai lacurile și impregnările care sunt sigure pentru oameni.
În ciuda costului ridicat, produsele din lemn sunt deteriorate de efectele negative ale schimbării umidității și temperaturii. Următorul factor negativ este greutatea solidă. Cel mai adesea, panouri decorative, plinte și alte elemente de decor sunt realizate dintr-un astfel de material.Exclusivitatea desenelor create de natură însăși este deosebit de apreciată.
Gips-carton
Este un material ieftin, dar fragil. Doar clasele speciale de gips-carton sunt protejate de umezeală. Chiar și o presiune ușoară poate deteriora astfel de produse. Pentru a crește rezistența la sarcini, acestea sunt instalate în cadre metalice. Necesar suplimentar Tratament de suprafață pentru estetica acceptabilă. Designul este complex, cu caracteristici relativ scăzute ale consumatorului, prin urmare, este rar folosit.
PAL, MDF și PAL laminat
Pânza de rumeguș și așchii este adesea utilizată în industria mobilei. Acestea se disting printr-un preț rezonabil, o rezistență și o durabilitate suficiente. În fabrică, producătorii responsabili folosesc lianți de calitate care blochează procesele de degradare, ajută la menținerea formei și integrității pe o durată lungă de viață. Părțile finale sunt protejate de stresul mecanic și de pătrunderea umezelii de către muchiile din PVC cu grosimea de 0,5 până la 2 mm.
Notă! La alegerea materialelor din această categorie, se verifică siguranța componentelor de lipire. O atenție deosebită trebuie acordată atunci când echipați mobilierul dormitorului, camera copiilor. Ar trebui exclusă pătrunderea în atmosferă a substanțelor dăunătoare și a alergenilor.
Placi de placaj și mobilier
Aceste materiale din designul corespunzător sunt mai puțin susceptibile la schimbări de temperatură și umiditate în comparație cu lemnul solid. Sunt mai buni decât PAL țineți șuruburile și alte elemente de fixare.
Alte materiale
Cadrul din aluminiu oferă o rigiditate bună cu greutate redusă. Nu este deteriorat de coroziune pe o durată lungă de viață. Inserturile din sticlă mată sunt o soluție practică. Ele ascund interiorul mobilierului, arată plăcut din punct de vedere estetic și nu se murdăresc ușor. Astfel de suprafețe sunt curățate de murdărie fără deteriorări și eforturi inutile. În cele mai dificile condiții, produsele din sticlă rămân intacte fără măsuri suplimentare.

Inserțiile de bricolaj în ușile dulapului pot fi făcute din rattan. Se creează un aspect interesant, se asigură o ventilație bună
Utilizarea unui dulap în diferite camere
Factorii de mai jos trebuie luați în considerare atunci când se specifică parametrii mobilierului pentru pod, bucătărie, birou, alte camere.
Hol
În apropierea holului de la intrare, acesta trebuie completat cu un suport pentru pantofi (1), o bancă confortabilă (2), umerase (3) pentru îmbrăcăminte exterioară, rafturi deschise (4) pentru accesorii și elemente de decor.
Având în vedere cea mai mare frecvență de utilizare, mobilierul pentru această cameră este echipat cu ghidaje fiabile. Aici este adecvat să se utilizeze sticlă, aliaje metalice și alte materiale rezistente la influențe externe. În camere mici, se folosesc culori deschise ale finisajelor, inserții mari pentru oglinzi.
Articol asociat:
Vrei să alegi garderoba pe hol? Citiți publicația noastră! Vom lua în considerare caracteristicile și tipurile de modele, secretele la alegere, sfaturi de plasare, idei de fotografii cu opțiuni interesante și alte recomandări utile.
Sufragerie
Pentru a menține proprietăți estetice excelente, firele de conectare și cablurile de alimentare sunt ascunse în canalele din interiorul mobilierului. În etapa de proiectare, ar trebui să fie prevăzute decupaje corespunzătoare cu inserții din plastic.
Copii
Notă! Rețineți că cadrele încastrate și nici un mâner proeminent sporesc siguranța. Astfel de mobilier este potrivit pentru echiparea camerelor copiilor.

Dacă intenționați să realizați un dulap cu propriile mâini, nu va fi dificil să aplicați o schemă de culori care să se potrivească armonios cu alte detalii interioare.
Loggia
În acest exemplu, avantajele creării unui dulap de bricolaj pentru instalare în loggii:
- Uși glisante își îndeplinesc funcțiile fără să se miște în interiorul camerei, ca și omologii oscilanți.
- Dulapul glisant se potrivește exact unei anumite dimensiuni, fără goluri mari în care se acumulează praf.
- Pentru aceste premise, materiale ieftine, dar rezistente la influențele externe adverse, materialele sunt potrivite.
- Cu o oglindă, ca și pe hol, aici puteți crește vizual volumul.
Etapele realizării unui dulap cu propriile mâini
Măsurători ale camerei și calculul dimensiunilor dulapului
Acest instrument vă va permite simultan să clarificați acuratețea elementelor orizontale și verticale ale structurilor de construcție. Cel mai simplu mod de măsurare este pentru mobilierul de dulap. În acest caz, este suficient să luați dimensiunea minimă și să scădeți câțiva centimetri pentru a face o marjă mică.
Este mult mai dificil să intri cu precizie într-un dulap încorporat. Cu propriile mâini, trebuie să faceți cel puțin trei măsurători pentru fiecare metru de lungime (înălțime). Dacă se constată defecte excesive, suprafețele trebuie nivelate în prealabil.
Important! În orice caz, verificați deschiderea liberă a celor mai apropiate blocuri de ferestre (uși). Dacă este necesar, instalați opritoarele pentru frunze. Asigurați-vă că dulapul nu acoperă singurul întrerupător de lumină din cameră sau este prea aproape de plafonul sau de lumina de perete.
Pregătirea documentației de proiectare pentru crearea unui dulap sau a unui dulap încorporat cu propriile mâini

Pentru calcularea ușilor compartimentului, „Aristo” și alți producători de profiluri oferă calculatoare similare
Aceste programe sunt disponibile pe site-urile oficiale ale întreprinderilor comerciale. Sunt complet gratuite de utilizat. Oricine poate introduce rezultatele propriilor măsurători. Selecția ghidurilor se realizează automat, concepută pentru o anumită dimensiune a pânzei și a încărcăturii de material.

Puteți realiza un model electronic al unui dulap cu ușă glisantă cu propriile mâini folosind programul Basis Furniture Maker
Cu ajutorul său, puteți realiza un proiect de înaltă calitate chiar și fără experiența anterioară în proiectare. Chiar și un începător va stăpâni rapid acest instrument folosind următorul algoritm simplu:
- setați dimensiunile generale mobila;
- selectați materialul peretelui din spate atașat la acesta de rigidizatoare;
- spațiul intern este împărțit în locații de depozitare separate;
- umpleți-le cu rafturi deschise, sertare și alte componente;
- introduce dimensiunile ușilor glisante pentru garderobă;
- marcați capetele care trebuie închise cu o bandă de margine;
- adăugați mânere și accesorii;
- face modificările necesare;
- tipăriți documentația sub formă de hârtie, salvați-o într-un fișier.
Desene de piese pot fi date unui atelier specializat, sau utilizate pentru a face piese individuale ale dulapului cu propriile mâini. Proiectul electronic este convenabil pentru vizualizare din diferite puncte. Puteți face rapid diferite modificări în acesta, ținând cont de cerințe suplimentare. Lista generată este utilizată pentru achiziționarea componentelor și pieselor necesare.
Important! În atelier rămân resturi destul de mari din foi de PAL și alte materiale. Este mai bine să le luați cu dvs. pentru a facilita corectarea erorilor în timpul procesului de instalare și efectuarea operațiunilor de reparații în viitor.
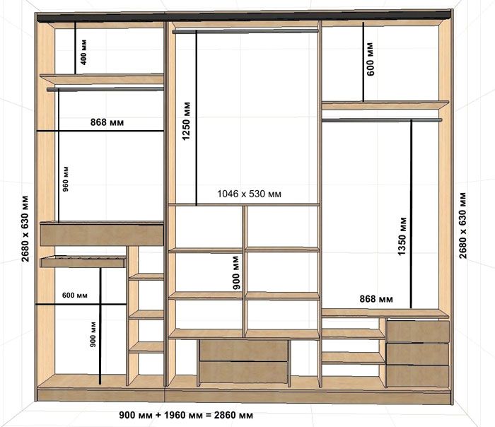
Alegerea rolelor, materialelor, armăturilor și a altor componente pentru garderobă
Desenul prezintă principalele componente ale unui design tipic:
- Șinele inferioară și superioară pentru garderobă sunt atașate la podeaua și tavanul camerei (respectiv partea inferioară și capacul mobilierului).
- În acest exemplu, sarcina principală se află pe rolele inferioare. Există însă și modele cu pânză suspendată.
- Profilul lateral „C” funcționează suplimentar ca un mâner.
- Elementele de etanșare sunt realizate din silicon, ceea ce asigură o fixare sigură a sticlei.
- Elementele transversale din mijloc întăresc cadrul portant, separă elementele individuale ale benzii de diferite materiale.

Schlegel pentru dulapuri - o fâșie cu o grămadă, care este lipită de marginea ușii pentru a amortiza șocurile

Pentru echiparea mobilierului, producătorii moderni oferă suporturi pentru pantaloni, mecanisme de ridicare și alte completări funcționale
Reglați ușa coupe-ului și alte caracteristici de asamblare
Instalarea directă a unui dulap drept sau de colț cu propriile mâini nu diferă de asamblarea mobilierului standard. În același mod, instalați mai întâi fundul, pereții, capacul. Apoi rafturile interioare și exterioare sunt atașate la cadrul electric.
Notă! Este convenabil să comandați un sistem glisant pentru un dulap glisant după instalarea carcasei. În acest caz, va fi posibilă efectuarea unei măsurători precise.
Aspectul unui dulap modern, fotografie cu exemple bune
Aplicarea tehnicii vitraliilor
Desene de sablare
Autocolante de vinil
Nu trebuie uitat că filme de vinil au puteri limitate. Acestea pot fi deteriorate în timpul curățării contaminanților folosind compuși chimici agresivi.
Articol asociat:
Dulapuri moderne: fotografie, design. În articol, vom lua în considerare caracteristicile dulapurilor, cele mai populare și interesante modele, recomandări pentru alegere și alte sfaturi utile.
Caracteristici ale realizării unui dulap la comandă
După ce ați studiat tehnologia creării unui dulap cu propriile mâini (desene, instrucțiuni pas cu pas, descrieri ale reglajelor), este mai ușor să luați decizia corectă cu privire la metoda de asamblare. Poate fi încredințat unei firme specializate, un meșter cu experiență. Dar dacă există un bagaj corespunzător de cunoștințe, controlul este mult simplificat. Puteți împărți munca într-un mod care vă convine pentru a economisi bani și pentru a obține un nivel ridicat de calitate.




















































