ทาวน์เฮาส์คืออะไร? ความแตกต่างของการซื้ออสังหาริมทรัพย์ดังกล่าวและรายละเอียดปลีกย่อยทางกฎหมายของเอกสาร
ใครในหมู่พวกเราที่ไม่เคยฝันที่จะมีบ้านที่สะดวกสบายพร้อมกับที่ดินของเราเองโดยไม่ต้องกังวลเพิ่มเติมเกี่ยวกับการบำรุงรักษาและการดูแล สำหรับคนรักสันโดษอยู่สบาย ๆ ก็มีบ้านแบบทาวน์เฮาส์ ในความเป็นจริงมีไม่กี่คนที่รู้ว่ามันคืออะไร โดยปกติเราวาดรูปตัวเองของเพื่อนบ้านที่ยิ้มแย้มสวนดอกไม้ที่มีสนามหญ้าสีเขียว ในบทความนี้เราจะพูดถึงคุณสมบัติของอสังหาริมทรัพย์ประเภทนี้ตลอดจนความแตกต่างและปัญหาที่เกี่ยวข้องกับการได้มาและการใช้งาน

ทาวน์เฮาส์เป็นทางข้ามระหว่างบ้านส่วนตัวและอพาร์ตเมนต์ นี่เป็นวิธีที่สมบูรณ์แบบในการได้รับความเป็นส่วนตัวโดยไม่ต้องเสียประโยชน์จากอารยธรรม
เนื้อหาของบทความ
- 1 ทาวน์เฮาส์คืออะไรและแตกต่างจากบ้านส่วนตัวและอพาร์ตเมนต์ธรรมดาอย่างไร
- 2 ทาวน์เฮาส์มีลักษณะอย่างไรคำจำกัดความของอสังหาริมทรัพย์ประเภทต่างๆ
- 3 รีวิวโครงการทาวน์เฮาส์สวย ๆ พร้อมรูปถ่ายด้านหน้าและการออกแบบภายใน
- 4 ทาวน์เฮาส์ในอสังหาริมทรัพย์คืออะไรจากมุมมองทางกฎหมายการจดทะเบียนสิทธิ์ในทรัพย์สิน
- 5 การก่อสร้างและการดำเนินการทาวน์เฮาส์: คืออะไรโดยคำนึงถึงสภาพจริง
- 6 วิดีโอ: การก่อสร้างทาวน์เฮาส์
ทาวน์เฮาส์คืออะไรและแตกต่างจากบ้านส่วนตัวและอพาร์ตเมนต์ธรรมดาอย่างไร
วัตถุอสังหาริมทรัพย์ในประเภทนี้มีพารามิเตอร์ของกระท่อมและที่อยู่อาศัยในเมืองธรรมดาในเวลาเดียวกัน การก่อสร้างโดยทั่วไปคืออาคาร 2–3 ชั้นโดยแบ่งแนวตั้งออกเป็นหลายส่วน แต่ละห้องมีทางเข้าแยกกัน ในบางกรณีทาวน์เฮาส์สร้างขึ้นที่ชั้นหนึ่งของอาคารหลายชั้น
ความแตกต่างที่สำคัญระหว่างทาวน์เฮาส์และกระท่อมคือกำแพงหลักทั่วไป สิ่งที่น่าสังเกตอีกอย่างคือพื้นที่ขนาดเล็กของที่ดินของตัวเอง โซลูชันนี้มีข้อดีหลายประการ:
- ค่าใช้จ่ายในการวางเครือข่ายวิศวกรรมการทำงานก่อสร้างทั่วไปจะลดลง
- คุณสามารถสร้างพื้นที่ร่วมกันได้ น้ำประปา, ระบบอื่น ๆ ;
- การแยกต้นทุนการดำเนินงานบางส่วนอนุญาตให้ดำเนินการซ่อมแซมได้
หากเราเปรียบเทียบทาวน์เฮาส์กับอพาร์ตเมนต์เราสามารถแยกแยะจำนวนเสาที่จับต้องได้:
- ปัญหาในทางปฏิบัติได้รับการแก้ไขเรียบร้อยแล้ว: ที่จอดรถนันทนาการที่มีคุณภาพสำหรับผู้ใหญ่เกมสำหรับเด็ก ฯลฯ
- สามารถใช้งานได้ ระบบน้ำประปาอัตโนมัติ และให้ความร้อนด้วยพารามิเตอร์ที่จำเป็นสำหรับผู้ใช้
- ในกรณีส่วนใหญ่การแก้ไขที่สำคัญของโครงการสำหรับอุปกรณ์ทางเทคนิคอนุญาตให้ออกแบบตกแต่งภายในได้
ผนังทึบจะเป็นฉนวนป้องกันเสียงรบกวนที่ดี ไม่ควรลืมว่าเสียงจากชั้นบนจะรบกวนมากกว่า หากต้องการรั้วสูงหรือ แถบพุ่มไม้ คุณสามารถแยกจากเพื่อนบ้านบนไซต์เพื่อสร้างพื้นที่ส่วนตัว
การโต้เถียงเกิดขึ้นมากมายเกี่ยวกับการซื้อทาวน์เฮาส์ที่ชั้นล่างของอาคารอพาร์ตเมนต์หรือไม่ อย่างไรก็ตามควรสังเกตว่าด้วยการออกแบบที่เหมาะสมและราคาที่เป็นประชาธิปไตยสำหรับโครงสร้างนี้ราคาซื้อจะเป็นตัวพิสูจน์ตัวเองอย่างเต็มที่ เศรษฐกิจในกรณีนี้เกี่ยวข้องกับการปรับปรุงคุณภาพชีวิตโดยรวมอย่างมีนัยสำคัญ
เพื่อความเที่ยงธรรมควรสังเกตข้อเสีย บางส่วนเกี่ยวข้องกับลักษณะเฉพาะของการจดทะเบียนอสังหาริมทรัพย์ตามกฎหมาย รายละเอียดเกี่ยวกับปัญหานี้มีให้ในส่วนสุดท้ายของสิ่งพิมพ์ คุณต้องอย่าลืมรักษาความสัมพันธ์ที่ดีระหว่างเจ้าของ สิ่งนี้จำเป็นสำหรับการใช้งานร่วมกันที่มีคุณภาพสูงของระบบวิศวกรรมโครงสร้างอาคารทั่วไป
ทาวน์เฮาส์มีลักษณะอย่างไรคำจำกัดความของอสังหาริมทรัพย์ประเภทต่างๆ
เพื่อดึงดูดความสนใจของผู้มีโอกาสเป็นผู้ซื้อนักพัฒนาจึงใช้ชื่อต่างๆ บางส่วนไม่ได้ใช้กันอย่างแพร่หลายในต่างประเทศ ด้านล่างนี้คือคำอธิบายเกี่ยวกับความแตกต่างที่พบบ่อยในรูปแบบตลาดในประเทศ "ทาวน์เฮาส์" แปลว่าอย่างไร? Town (ภาษาอังกฤษ) เป็นเทศบาลที่ค่อนข้างเล็กการตั้งถิ่นฐานเมืองบ้าน - อาคารบ้านโครงสร้าง
เลนเฮาส์คืออะไร
แม้แต่การค้นหาทางอินเทอร์เน็ตอย่างรอบคอบก็ไม่สามารถให้คำจำกัดความที่ถูกต้องในเชิงวิชาการของคำศัพท์นั้น ๆ ได้ Lane แปลว่า "เลน" อย่างแท้จริง ชุดค่าผสมที่สอดคล้องกันสามารถแปลได้ว่า "บ้านในซอย" ในความเป็นจริงชื่อนี้ใช้เพื่อเรียกอาคารที่มีด้านหน้าต่างกัน
อย่างไรก็ตามดังที่แสดงในรูปภาพคุณสามารถใช้สิ่งที่แตกต่างกันได้ การตกแต่งอาคารแต่ละส่วน... ตามแต่ละโครงการมีการติดตั้งหน้าต่างการวางแผนสถานที่จะดำเนินการ รูปลักษณ์ที่กลมกลืนกันในตัวอย่างนี้ช่วยสร้างประตูโรงรถและวัสดุมุงหลังคาแบบเดียวกัน
กลุ่มอาคารขนาดกะทัดรัด - ดูเพล็กซ์บ้านแฝดบ้านรูปสี่เหลี่ยม
ความแตกต่างระหว่างคำจำกัดความบางคำสามารถเรียกได้ว่าเป็นเงื่อนไข ดังนั้นดูเพล็กซ์จึงเป็นโครงสร้างของอาคารสองหลังที่มีผนังรองรับและแบ่งส่วนร่วมกัน อาคารจะเหมือนกันในกรณีนี้
Twinhouse เป็นอาคารที่แบ่งออกเป็นสองส่วน ในการออกแบบนี้มักใช้ระบบวิศวกรรมแบบครบวงจร แต่ไม่จำเป็น
บ้านรูปสี่เหลี่ยมตามชื่อหมายถึงประกอบด้วยสี่ส่วน ดังนั้นจำนวนผนังทั่วไปจึงเพิ่มขึ้น แต่ค่าใช้จ่ายบางส่วนจะลดลง
เช่นเดียวกับในเวอร์ชันก่อนหน้านี้มีการแยกกลุ่มทางเข้าที่ดินแปลง ความยากลำบากอาจเกิดขึ้นเมื่อวางอาคารบนอาณาเขตของหมู่บ้าน มีความจำเป็นต้องสร้างเส้นทางสำหรับคนเดินเท้าและการขนส่งโดยคำนึงถึงความเป็นอิสระและใช้งานง่าย
การสร้างพรมและการวางแผนบล็อกประเภทอื่น ๆ
ทาวน์เฮาส์เป็นอาคารที่ไม่ใช่ยูนิตดังนั้นจึงควรศึกษาควบคู่ไปกับกฎการสร้างตึกและแม้แต่ละแวกใกล้เคียงวิธีการแบบบูรณาการเท่านั้นที่จะทำให้สามารถประเมินทรัพย์สินได้อย่างถูกต้องรวมทั้งข้อดีข้อเสียทั้งหมดของการซื้อดังกล่าว ส่วนนี้แสดงตัวอย่างโซลูชันโครงร่างทั่วไป
อะไรคือความแตกต่างระหว่างเพนต์เฮาส์และทาวน์เฮาส์
เพื่อให้การตรวจสอบคำจำกัดความที่แม่นยำเสร็จสมบูรณ์จำเป็นต้องชี้แจงว่าเพนต์เฮาส์แตกต่างจากทาวน์เฮาส์อย่างไร คำใหม่หมายถึงอาคารที่อยู่อาศัยซึ่งตั้งอยู่ชั้นบนสุดของอาคารสูง บ่อยครั้งที่โครงสร้างดังกล่าวมีบันได / ลิฟต์แยกต่างหาก นี่หมายถึงการปรับปรุงเสร็จสิ้นการวางแผนส่วนบุคคลและพารามิเตอร์ลักษณะอื่น ๆ ของอสังหาริมทรัพย์ระดับหรู
ทาวน์เฮาส์และเพนเฮาส์คืออะไรเข้าใจได้ไม่ยากหากคุณศึกษาเฉพาะรูปถ่าย อพาร์ทเมนท์มีทางเข้าถึงหลังคาที่ซึ่งสร้างสวนฤดูหนาวสระว่ายน้ำพื้นที่บาร์บีคิวและอุปกรณ์อื่น ๆ แน่นอนว่าต้องคำนึงถึงการเพิ่มขึ้นของน้ำหนักในกรอบโครงสร้างของอาคารด้วย
ความแตกต่างที่สำคัญระหว่างเพนต์เฮาส์และทาวน์เฮาส์คือความสูงเหนือระดับพื้นดิน ในเรื่องอื่น ๆ สิ่งเหล่านี้เป็นอาคารประเภทเดียวกันที่มีแผนผังคล้ายกัน
หากต้องการแฟน ๆ ของชีวิตในเมืองจะซื้อทาวน์เฮาส์ที่ตั้งอยู่ในสถานที่ที่เหมาะสม ทางเข้าชั้นล่างช่วยลดปัญหาลิฟต์ นอกจากนี้ลานที่สะดวกสบายจะช่วยให้มีพื้นที่ปลูกดอกไม้หรือ แพลตฟอร์ม สำหรับงานอดิเรกที่ปลอดภัยของเด็ก ๆ
รีวิวโครงการทาวน์เฮาส์สวย ๆ พร้อมรูปถ่ายด้านหน้าและการออกแบบภายใน
เพื่อไม่ให้คิดเกี่ยวกับวิธีการสร้างทาวน์เฮาส์ให้ซื้อวัตถุสำเร็จรูป ปัจจุบันคุณสามารถใช้วิธีการต่างๆในการซื้ออสังหาริมทรัพย์ในประเภทนี้ หรือมองหาอาคารขนาดเล็กหรือคุณสามารถเลือกอาคารที่มีงบประมาณมากขึ้น นักพัฒนามืออาชีพจะช่วยคุณประหยัดเงินในโครงการที่รวมทุกอย่างและเสนอโครงการที่มีขั้นตอนคร่าวๆ และคุณเองก็เพิ่มรายละเอียดส่วนบุคคลของการออกแบบตกแต่งภายใน
ผู้รับเหมาบางรายเสนอโครงการวางแผนหลายโครงการพร้อมกัน นอกเหนือจากการกำหนดค่าพื้นฐานแล้วคุณสามารถเลือกแพ็คเกจแต่ละรายการพร้อมบริการเพิ่มเติม: การตกแต่งภายในการเลือกและการเชื่อมต่อเครื่องใช้ในครัวเรือนและระบบรักษาความปลอดภัย ข้อเสนอที่ดีที่สุดจะได้รับการพิจารณาเมื่อคุณซื้อที่ดินพร้อมสัญญาก่อสร้าง ในกรณีนี้คุณสามารถเลือกแต่ละโครงการและทำการเปลี่ยนแปลงการกำหนดค่าระบบวิศวกรรมที่บ้านได้ด้วยตนเอง
บันทึก! ในทุกรูปแบบควรสร้างการออกแบบภูมิทัศน์ตามโครงการแต่ละโครงการภายในขอบเขตของไซต์

ในช่วงแรกของการก่อสร้างการซื้อจะถูกกว่า อย่างไรก็ตามสำหรับการอยู่อาศัยถาวรจำเป็นต้องสร้างเครือข่ายและการสื่อสารถนนเข้าถึงที่สมบูรณ์และโครงสร้างพื้นฐานในท้องถิ่น
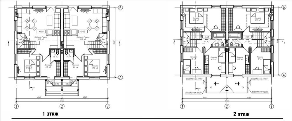
แผนผังทาวน์เฮาส์
พวกเขาเริ่มต้นด้วยการดูโครงการ เพื่อให้งานง่ายขึ้นข้อกำหนดพื้นฐานได้รับการกำหนดไว้ล่วงหน้า:
- ขนาดของห้องครัวห้องส่วนกลาง
- จำนวนห้องนอนห้องน้ำ
- พารามิเตอร์ของโรงรถและห้องเอนกประสงค์
- ความสูงเพดานขั้นต่ำ
- องค์ประกอบที่จำเป็นของอุปกรณ์
ในมิติดังกล่าวมันถูกวางไว้:
- ห้องครัวรวม, ห้องรับประทานอาหารและห้องนั่งเล่น;
- ห้องนอนแขกชั้นล่าง
- สองห้องสำหรับเด็ก
- ห้องนอนใหญ่;
- สองห้องน้ำ.
ในอาคารดังกล่าวมีที่สำหรับโรงรถขนาดใหญ่ แยกออกจากพื้นที่นั่งเล่นด้วยผนังห้องโถงกว้าง มีการสร้างเตาสำหรับหม้อไอน้ำในบริเวณใกล้เคียงห้องพิเศษนี้มีทางเข้าแยกต่างหากซึ่งเป็นไปตามข้อบังคับปัจจุบัน การวางด้านข้างสะดวกกว่าในห้องใต้ดิน (ชั้นใต้ดิน) สิ่งนี้ช่วยลดความยุ่งยากในการแยกส่วนทางเทคนิค ประตูที่มีคุณภาพจะป้องกันการซึมผ่านของกลิ่นไม่พึงประสงค์และสารปนเปื้อนอื่น ๆ นอกจากชั้นสองแล้วยังมีห้องใต้หลังคาฉนวน ออกแบบมาเพื่อการใช้งานตลอดทั้งปี
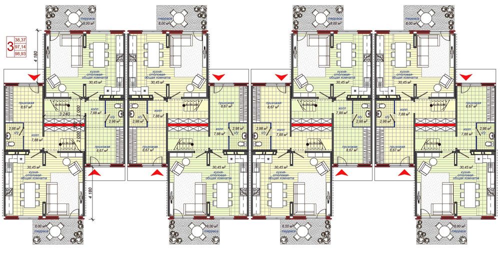
ตัวอย่างนี้แสดงให้เห็นว่าเพื่อปรับปรุงลักษณะฉนวนกันเสียงที่ข้อต่อนักพัฒนาได้ทำขึ้น ห้องแต่งตัว และ โถงทางเดิน... เจ้าของแต่ละคนมีระเบียงขนาด 8 ตร.ม. แม้แต่โซลูชันที่ประหยัดเช่นนี้ก็ยังมีสิ่งอำนวยความสะดวกมากกว่าอพาร์ทเมนต์ในเมืองทั่วไป จำเป็นต้องมีที่จอดรถในฐานะส่วนหนึ่งของสิ่งอำนวยความสะดวกดังกล่าว
ภาพวาดดังกล่าวสามารถหมุนขยายดูจากด้านต่างๆได้ ด้วยการคลิกเมาส์คอมพิวเตอร์เพียงครั้งเดียวพวกเขาจะเปลี่ยนสีของพื้นผิว ใช้ซอฟต์แวร์ที่เหมาะสมพวกเขาทดลองกับประเภทและการจัดเรียงใหม่ของเฟอร์นิเจอร์แสงวัสดุ

ในรูปแบบปริมาตรที่คล้ายกันนายหน้าเป็นตัวแทนของหมู่บ้านกระท่อมที่มีทาวน์เฮาส์และอสังหาริมทรัพย์อื่น ๆ
คุณสมบัติภายใน
และตอนนี้เราเสนอให้ศึกษาโครงการสำเร็จรูปซึ่งในความคิดของเราได้รวมโซลูชันการออกแบบที่ประสบความสำเร็จเข้ากับเนื้อหาทางวิศวกรรมที่มีความสามารถ แนวคิดที่น่าสนใจสามารถนำไปใช้กับโครงการของคุณได้เช่นกัน
- การผสมผสานระหว่างแสงธรรมชาติ / แสงประดิษฐ์ถูกนำมาใช้เพื่อปรับปรุงการมองเห็นในห้องครัว
- แสงธรรมชาติเหนือศีรษะในล็อบบี้ดูงดงาม มีการติดตั้งหน้าต่างตาบอดในแถวนี้
- มีการติดตั้งวัตถุขนาดใหญ่ในห้องขนาดใหญ่: เฟอร์นิเจอร์โคมไฟโปสเตอร์
- การรวมพื้นที่ใช้งานหลายส่วนเข้าด้วยกันจะช่วยให้มีพื้นที่เพียงพอแม้จะมีพื้นที่รวมค่อนข้างเล็ก
- ในห้องใต้หลังคาคุณสามารถสร้างห้องนั่งเล่นเต็มรูปแบบได้อย่างง่ายดาย มีการปรับตำแหน่งของเฟอร์นิเจอร์โดยคำนึงถึงความสูงจริงของเพดาน
- รูปถ่ายของทาวน์เฮาส์ด้านในยืนยันว่าประตูบานเลื่อนใช้พื้นที่น้อยที่สุดแม้จะมีช่องขนาดใหญ่ก็ตาม
การออกแบบบันไดสลับระดับของทาวน์เฮาส์พร้อมตัวอย่างภาพถ่าย
บันได - หัวข้อพิเศษในการดำเนินโครงการทาวน์เฮาส์ มีโซลูชันทั่วไปบางอย่างที่ใช้บ่อยที่สุด ตัวอย่างเช่นบันไดสามารถใช้เป็นโคตรของห้องใต้ดิน
- วัสดุเดียวกับที่ใช้สำหรับบันไดและพื้น
- บันไดขึ้นชั้นสองติดตั้งบนฐานรองรับเดียวเพื่ออำนวยความสะดวกให้กับโครงสร้าง
- ในทาวน์เฮาส์ขนาดใหญ่บันไดจะถูกนำออกจากพื้นที่ใช้สอย
- พื้นที่โล่งบนชั้นสองดูดี
- การออกแบบบันไดซ้ำแล้วซ้ำอีกในองค์ประกอบการตกแต่งอื่น ๆ
- ดีไซน์ดั้งเดิมพร้อมบันไดกระจก "บิน"
โรงรถและที่ดินขนาดเล็กในทาวน์เฮาส์
ส่วนประกอบเหล่านี้มีคุณค่าเป็นพิเศษสำหรับเจ้าของหลายคนซึ่งเป็นส่วนหนึ่งของทรัพย์สิน โรงรถคุณภาพสูงช่วยให้ใช้งานง่ายและปลอดภัยช่วยยืดอายุการใช้งานของยานพาหนะ ที่ดินถูกใช้เพื่อการพักผ่อนหย่อนใจและทำสวน
- โรงรถขนาดใหญ่สามารถติดตั้งเวิร์กช็อปในบ้านได้
- อุปกรณ์ที่ดีจะมีประโยชน์ในการจัดเก็บสิ่งที่มีประโยชน์และมีค่า
- การแบ่งเขตดังกล่าวดำเนินการในระหว่างขั้นตอนการก่อสร้าง
- เตาไฟเป็นส่วนประกอบ "บังคับ" ของโรงพัก

ในพื้นที่ขนาดเล็กคุณสามารถวางสนามเด็กเล่นเฉลียงพร้อมหลังคาสระว่ายน้ำนี่เป็นอีกตัวอย่างที่ดีของประโยชน์ของการสร้างแบบจำลองซอฟต์แวร์
ทาวน์เฮาส์ในอสังหาริมทรัพย์คืออะไรจากมุมมองทางกฎหมายการจดทะเบียนสิทธิ์ในทรัพย์สิน
ควรระลึกไว้เสมอว่าในกฎหมายภายในประเทศปัจจุบันไม่มีการอ้างอิงถึงทาวน์เฮาส์และชื่อเฉพาะอื่น ๆ แต่ใช้แนวคิด“ อาคารที่อยู่อาศัยของการพัฒนาที่ถูกบล็อก” ทรัพย์สินดังกล่าวประกอบด้วยส่วนที่แยกจากกันไม่เกินสิบส่วน ความสูง จำกัด ไว้ที่สามชั้น ต้องมีเอาต์พุตแยกต่างหาก
เพื่อไม่ให้เกิดความผิดพลาดก่อนที่จะซื้อโปรดตรวจสอบสถานะทางกฎหมายในปัจจุบันของที่ดิน อาคารดูเพล็กซ์และอาคารประเภทอื่น ๆ ควรสร้างขึ้นเฉพาะในอาณาเขตของการตั้งถิ่นฐาน วัตถุที่สร้างขึ้นได้รับการจดทะเบียนในที่ดินเป็นอพาร์ตเมนต์ งานจะดำเนินการบนพื้นฐานของใบอนุญาตที่ออกอย่างถูกต้องตามมาตรฐานของการก่อสร้างร่วมกัน
ตัวอย่างเช่นวลีที่ค่อนข้างคลุมเครือ "ไซต์สำหรับการก่อสร้างแต่ละรายการ" สามารถตีความทางกฎหมายได้หลายสิบแบบ อาจเป็นอาคารชั้นเดียวหรือกระท่อม สิ่งสำคัญคือการใส่ใจกับบรรทัดฐานของแผนแม่บทของการตั้งถิ่นฐาน และตรวจสอบว่าไซต์นี้มีสถานะนี้จริงหรือไม่และตัวอย่างเช่นไม่ถือว่าเป็นเขตคุ้มครองหรือเขตแดนที่มีความสำคัญของรัฐบาลกลาง ข้อกำหนดเพิ่มเติมคือสาธารณูปโภคแยกต่างหากสำหรับแต่ละส่วนห้องใต้หลังคา / ห้องใต้ดินแยกกัน
โดยเฉพาะอย่างยิ่งศึกษาการก่อสร้างบนที่ดินสำหรับกระท่อมฤดูร้อน ไม่อนุญาตให้สร้างที่พักอาศัยถาวรที่นี่ สิทธิในทรัพย์สินสามารถจดทะเบียนได้ภายใต้ "นิรโทษกรรม" แบบพิเศษที่มีกรอบเวลา จำกัด สำหรับการลงทะเบียนคุณจะต้องได้รับคำตัดสินในศาล หน่วยงานท้องถิ่นไม่จำเป็นต้องสร้างโครงสร้างพื้นฐานที่มีคุณภาพสูงในสถานที่ดังกล่าว: ถนนสถานพยาบาลและสถานศึกษา
การก่อสร้างและการดำเนินการทาวน์เฮาส์: คืออะไรโดยคำนึงถึงสภาพจริง
การตัดสินใจซื้อหรือสร้างทาวน์เฮาส์จะต้องคำนึงถึงข้อเท็จจริงที่ระบุไว้ตามอัลกอริทึมต่อไปนี้:
- กำหนดขอบเขตของความต้องการความสามารถทางการเงินของตนเอง
- เลือกคุณสมบัติที่เหมาะสมโดยใช้บริการเฉพาะฐานข้อมูลตัวแทนอสังหาริมทรัพย์
- ตรวจสอบความสอดคล้องของลักษณะผู้บริโภค
- ชี้แจงองค์ประกอบของโครงสร้างพื้นฐานในท้องถิ่นระยะทางไปยังเมืองใหญ่การเข้าถึงระบบขนส่ง
- อนุมัติโครงการก่อสร้าง
มีความจำเป็นที่จะต้องตรวจสอบให้แน่ใจว่าธุรกรรมนั้นถูกกฎหมาย หากคุณขาดความรู้โปรดติดต่อผู้เชี่ยวชาญเฉพาะทาง ในความคิดเห็นด้านล่างถามคำถามเพิ่มเติมโพสต์คำแนะนำบทวิจารณ์ของคุณเอง





















































