วิธีคำนวณพื้นที่ของห้อง: คำแนะนำอย่างมืออาชีพและกฎพื้นฐาน
การซ่อมแซม ในห้องใด ๆ ต้องมีการลงทุนทางการเงินที่สำคัญ คุณสามารถลดต้นทุนของคุณได้โดยการซื้อวัสดุในปริมาณที่เหมาะสมที่สุด ในการทำเช่นนี้คุณต้องทราบขนาดและคุณสมบัติของห้องใดห้องหนึ่งอย่างแน่นอน สิ่งนี้จะหลีกเลี่ยงสถานการณ์เมื่อหลังจากสิ้นสุดการทำงานวอลล์เปเปอร์หรือลามิเนตจำนวนหนึ่งยังคงอยู่ซึ่งยากต่อการใช้เมื่อตกแต่งห้องอื่น ไม่ใช่ทุกคนที่รู้วิธีคำนวณพื้นที่ของห้องหากรูปร่างแตกต่างจากห้องที่ถูกต้อง เซกเตอร์รูปครึ่งวงกลมหรือสี่เหลี่ยมคางหมูสามารถสร้างความยากลำบากในการคำนวณสำหรับผู้ที่จบการศึกษาจากโรงเรียนเมื่อนานมาแล้วหรือไม่สามารถเรียนรู้วิชาคณิตศาสตร์ได้ อย่างไรก็ตามการจดจำสูตรพื้นฐานจะไม่ยากที่จะรับมือกับงาน
เนื้อหาของบทความ
- 1 วิธีคำนวณตารางเมตร: ความแตกต่างที่คุณควรรู้อย่างแน่นอน
- 2 วิธีคำนวณพื้นที่: จำสูตรพื้นฐาน
- 3 เครื่องคิดเลขสำหรับคำนวณพื้นที่ของห้องสามเหลี่ยม
- 4 เครื่องคิดเลขสำหรับคำนวณพื้นที่ของห้องสี่เหลี่ยม
- 5 วิธีคำนวณพื้นที่ของห้อง: คำแนะนำที่เป็นประโยชน์และคำแนะนำจะช่วยได้
- 6 วิธีคำนวณพื้นที่ผนัง: คำแนะนำของเราจะช่วยคุณได้
- 7 วิดีโอ: วิธีคำนวณพื้นที่ผนัง
วิธีคำนวณตารางเมตร: ความแตกต่างที่คุณควรรู้อย่างแน่นอน
ส่วนใหญ่เมื่อระบุสี่เหลี่ยมจัตุรัสของบรรจุภัณฑ์ของวัสดุก่อสร้างเฉพาะผู้ผลิตจะให้ตารางเมตร ระบบ SI ถูกนำมาใช้ในหลายประเทศ วิธีการคำนวณตารางเมตร? คุณสามารถวาดสี่เหลี่ยมจัตุรัสโดยมีด้านเมตร ในกรณีนี้พื้นผิวที่ระบุโดยสี่เหลี่ยมจัตุรัสนี้จะเท่ากับหนึ่งตารางเมตร อุปกรณ์วัดส่วนใหญ่ช่วยให้คุณได้รับผลการวัดทันทีในหน่วยตารางเมตร
นอกจากตารางเมตรแล้วคุณสามารถใช้หน่วยวัดอื่นได้ ด้วยเครื่องคิดเลขออนไลน์การคำนวณตารางเมตรจะง่ายขึ้นมากอย่างไรก็ตามหากต้องการการแปลสามารถทำได้อย่างอิสระโดยการคูณค่าที่มีอยู่ด้วยสัมประสิทธิ์ที่เหมาะสมคุณจะพบค่าที่ต้องการ ก่อนอื่นคุณต้องกำหนดด้วยหน่วยวัดใหม่ ถ้านี้:
- ฟุต เราใช้ค่าสัมประสิทธิ์ 0.093 อัตราส่วนนี้เป็นเรื่องปกติสำหรับหน่วยสี่เหลี่ยม หลังจากคำนวณค่าเชิงเส้นเป็นฟุตและได้ค่าเป็นฟุตแล้วให้คูณกำลังสองด้วย 0.093 เพื่อให้ได้ค่ากำลังสองใหม่ที่แสดงเป็นตารางเมตร หากการคำนวณทำได้อย่างถูกต้องนิพจน์ตัวเลขสำหรับพื้นที่ควรลดลง หากมีการกำหนดข้อกำหนดที่เพิ่มขึ้นเกี่ยวกับความแม่นยำของการคำนวณควรใช้ 0.092903 แทนค่าสัมประสิทธิ์ 0.093
- หลา. ค่าสัมประสิทธิ์คือ 0.84 การแปลงเมล็ดเป็นตารางเมตรดำเนินการตามอัลกอริทึมที่อธิบายไว้ข้างต้น สำหรับการคำนวณที่แม่นยำยิ่งขึ้นคุณสามารถใช้ค่าการแก้ไข 0.83613
- เอเคอร์ เมื่อคำนวณสแควร์ของห้องหน่วยดังกล่าวมักไม่ค่อยใช้เนื่องจากหนึ่งเอเคอร์มีค่าเท่ากับ 4050 ตารางเมตร อย่างไรก็ตามหากจำเป็นการแปลสามารถทำได้โดยใช้ปัจจัยการแก้ไขที่ 4050 (4046.9 เพื่อการคำนวณที่แม่นยำยิ่งขึ้น)
ยูนิตอื่น ๆ ก็ได้เช่นกัน เมื่อแปลพื้นที่สิ่งสำคัญคือต้องจำไว้ว่าเรากำลังพูดถึงกำลังสองดังนั้นจึงไม่ใช้อัตราส่วนของมิติเชิงเส้น แต่เป็นพื้นที่ มันค่อนข้างง่ายที่จะหาปัจจัยการแก้ไขในกรณีนี้ หากทราบว่ามิเตอร์และหน่วยการวัดที่ต้องการมีความสัมพันธ์กันเป็นค่าสัมประสิทธิ์ K ปัจจัยการแก้ไขจะมีค่าเป็นตัวเลขเท่ากับK²
บันทึก! การใช้เครื่องคิดเลขออนไลน์สามารถแปลงตารางเมตรเป็นหน่วยการวัดอื่น ๆ ได้อย่างง่ายดายในเสี้ยววินาทีหลีกเลี่ยงการคำนวณที่ซับซ้อน
วิธีคำนวณพื้นที่: จำสูตรพื้นฐาน
หลายคนสนใจที่จะหาพื้นที่ของห้องใดห้องหนึ่งโดยรู้ขนาดเชิงเส้น ในตอนแรกการคำนวณอาจดูเหมือนใช้เวลานานเกินไป หลายคนชอบขอความช่วยเหลือจากผู้เชี่ยวชาญโดยเชื่อว่าในกรณีนี้จะสามารถหลีกเลี่ยงข้อผิดพลาดได้ หากคุณไม่ต้องการจ่ายเงินสำหรับงานที่คุณสามารถทำได้ด้วยตัวเองคุณควรจำสูตรพื้นฐานสำหรับการคำนวณพื้นที่ ด้วยความช่วยเหลือของพวกเขาจะสามารถคำนวณพื้นที่สี่เหลี่ยมจัตุรัสของห้องใดก็ได้
ทุกคนสามารถตอบวิธีการคำนวณพื้นที่ของพื้นผิวสี่เหลี่ยมหรือสี่เหลี่ยมได้อย่างง่ายดาย รูปสามเหลี่ยมกลมหรือแบ่งส่วนอาจทำให้เกิดปัญหาได้ เมื่ออัปเดตความรู้ของคุณแล้วคุณสามารถเริ่มคำนวณพื้นที่ของห้องในรูปแบบง่ายๆได้ทันที
เมื่อทราบลำดับของการคำนวณอย่างง่ายจึงเป็นเรื่องง่ายที่จะเข้าใจวิธีคำนวณพื้นที่ของพื้นผิวที่ซับซ้อน แม้แต่ตัวเลขที่ซับซ้อนที่สุดก็สามารถแบ่งออกเป็นรูปง่ายๆได้หลายตัวจากนั้นทำการคำนวณหามูลค่ารวม
วิธีคำนวณพื้นที่ของสามเหลี่ยม: ใช้สูตรที่พิสูจน์แล้ว
ห้องสามเหลี่ยมหายาก อย่างไรก็ตามหากห้องมีรูปแบบที่ไม่ได้มาตรฐานห้องนั้นจะถูกแบ่งออกเป็นรูปง่ายๆโดยหนึ่งในนั้นอาจเป็นรูปสามเหลี่ยม พื้นที่ของสามเหลี่ยมคำนวณอย่างไร? ง่ายพอ การคำนวณทั้งหมดสามารถทำได้อย่างอิสระหรือใช้เครื่องคิดเลขออนไลน์
ในการคำนวณพื้นที่ของรูปสามเหลี่ยมด้วยตัวคุณเองควรใช้สูตรต่อไปนี้:
S = 1/2 × H ×กที่ไหน
ก - ด้านข้าง;
ซ คือความสูงที่ดึงมาจากความสูงนี้ ตัวเลขเท่ากับความยาวของแนวตั้งฉากที่ลดลงจากมุมตรงข้ามกับด้านที่กำหนด
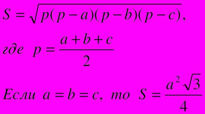
การคำนวณโดยใช้สูตรนี้ค่อนข้างง่าย อย่างไรก็ตามหากเกิดข้อผิดพลาดในกระบวนการวัดตัวอย่างเช่นเนื่องจากการวัดความสูงไม่ถูกต้องค่าที่ได้รับอาจแตกต่างจากค่าจริงอย่างมีนัยสำคัญ เพื่อหลีกเลี่ยงปัญหานี้คุณสามารถใช้สูตรของ Heron ที่ซับซ้อนมากขึ้นซึ่งช่วยให้คุณสามารถหาพื้นที่สี่เหลี่ยมจัตุรัสของรูปสามเหลี่ยมตามความยาวของด้านทั้งสาม: A, B และ C
ในการคำนวณคุณต้องหา semiperimeter p ซึ่งมีค่าเท่ากับตัวเลข ½ (A + B + C)... พื้นที่ของสามเหลี่ยมในกรณีนี้จะเท่ากับรากที่สองของผลคูณ พี× (พี - A) × (พี - B) × (พี - C).
เครื่องคิดเลขออนไลน์แนะนำให้ใช้วิธีการคำนวณหลายวิธีพร้อมกันสำหรับ:
- รากฐานและรากฐานที่ดึงมา
- สูตรของนกกระสา;
- ความยาวของด้านที่อยู่ติดกันและมุมระหว่างพวกเขา
เครื่องคิดเลขสำหรับคำนวณพื้นที่ของห้องสามเหลี่ยม
วิธีค้นหาพื้นที่ของสี่เหลี่ยมผืนผ้า: คำนึงถึงความแตกต่างและคุณสมบัติของการคำนวณ
ห้องมาตรฐานส่วนใหญ่เป็นห้องสี่เหลี่ยมผืนผ้า โดยเฉพาะในอาคารสูง ในการคำนวณพื้นที่ของรูปสี่เหลี่ยมผืนผ้าของรูปทรงเรขาคณิตที่ถูกต้องจำเป็นต้องทราบความยาว A และความกว้าง B ของห้อง มาคูณกัน:
S = A × B
พารามิเตอร์ที่ต้องการจะแสดงในหน่วยสี่เหลี่ยมที่เหมาะสม
เมื่อรู้วิธีคำนวณพื้นที่ของสี่เหลี่ยมคุณสามารถตรวจสอบผลลัพธ์ของคุณด้วยเครื่องคิดเลข ในกรณีนี้ค่าที่ต้องการสามารถพบได้หลายวิธีโดยใช้:
- ความสูงและความยาวของฐาน
- สองด้านและมุมระหว่างพวกเขา
- เส้นทแยงมุมสองเส้นและมุมระหว่างพวกเขา
ทั้งสามวิธีจะให้ค่าเท่ากันหากทำการวัดอย่างถูกต้อง เครื่องคิดเลขออนไลน์สามารถใช้ตรวจสอบค่าผลลัพธ์ได้ตลอดเวลา โดยส่วนใหญ่แล้วการใช้เครื่องคิดเลขออนไลน์เพื่อคำนวณพื้นที่ของรูปสี่เหลี่ยมผืนผ้าป้อนความยาวและความกว้างของด้านข้างจากนั้นจึงเลือกหน่วยการวัด หลังจากคลิกปุ่ม "คำนวณ" คุณจะเห็นค่าที่ต้องการ
เพื่อให้สามารถใช้สูตรเหล่านี้และสี่เหลี่ยมผืนผ้าคุณต้องตรวจสอบความถูกต้องของรูปสี่เหลี่ยมผืนผ้า สำหรับรูปดังกล่าวด้านตรงข้ามและเส้นทแยงมุมต้องเท่ากันและด้านที่อยู่ติดกันจะต้องตัดกันเป็นมุมฉาก ถ้าปรากฎว่าด้านตรงข้ามเท่ากันและด้านใกล้เคียงตัดกันที่มุม 85 องศาแสดงว่าเราไม่ได้พูดถึงสี่เหลี่ยมผืนผ้า แต่เกี่ยวกับสี่เหลี่ยมด้านขนาน ขั้นตอนการคำนวณในกรณีนี้จะแตกต่างกันเล็กน้อย
โปรดทราบ! อย่าพึ่งสร้าง วัดความยาวของด้านมุมและเส้นทแยงมุมทั้งหมดเพื่อให้แน่ใจว่าการคำนวณถูกต้อง
หากหลังจากวัดเส้นทแยงมุมแล้วจะได้ค่าที่แตกต่างกันห้องนั้นจะมีรูปร่างของสี่เหลี่ยมด้านขนานไม่ใช่รูปสี่เหลี่ยมผืนผ้า ในการคำนวณพื้นที่สี่เหลี่ยมคุณควรวัดความสูงของรูปที่วาดไปทางด้านที่ใหญ่กว่าด้วย สำหรับสิ่งนี้:
- ทำเครื่องหมายจุดในด้านที่ใหญ่กว่า คุณสามารถใช้จุดตัดของด้านที่อยู่ติดกัน
- เราลดการตั้งฉาก เขาต้องข้ามไปฝั่งตรงข้าม
- เราวัดค่าของความสูง H;
- เราคำนวณพื้นที่ของห้องโดยการคูณ H ด้วยความยาวของด้านยาว A
เครื่องคิดเลขสำหรับคำนวณพื้นที่ของห้องสี่เหลี่ยม
วิธีคำนวณพื้นที่ของรูปสี่เหลี่ยมคางหมู: สูตรจะช่วยได้
ก่อนดำเนินการคำนวณคุณควรจำไว้ว่ารูปสี่เหลี่ยมใดเรียกว่าสี่เหลี่ยมคางหมู นี่คือรูปที่ด้านตรงข้ามสองด้านขนานกัน (ฐาน) และอีกสองด้าน (ด้านข้าง) ตั้งอยู่ในลักษณะที่กำหนดเอง มุมระหว่างฐานและด้านข้างอาจจะเท่ากันหรือไม่ก็ได้
ในการคำนวณพื้นที่ของรูปสี่เหลี่ยมคางหมูจำเป็นต้องใช้พารามิเตอร์ต่อไปนี้
- ความยาวของฐาน A และ B
- ความสูงของสี่เหลี่ยมคางหมู H คือระยะห่างระหว่างฐาน ในการหาค่าให้วัดความยาวของเส้นที่ตั้งฉากกับฐานทั้งสอง
โปรดทราบ! ด้วยการวัดความสูงของรูปสี่เหลี่ยมที่จุดต่างๆคุณสามารถตรวจสอบให้แน่ใจว่าฐานขนานกัน
หากเราพูดถึงวิธีคำนวณพื้นที่ของรูปสี่เหลี่ยมคางหมูคุณควรใช้สูตรต่อไปนี้:
S = 1/2 (A + B) ×เอช
ลำดับการคำนวณไม่ได้ขึ้นอยู่กับอัตราส่วนของความยาวของฐานหรือมูลค่าของความสูง สูตรนี้ใช้ได้กับตัวเลขด้านเท่าและตัวเลขปกติ การใช้เครื่องคิดเลขออนไลน์คุณจะได้กำลังสองของพื้นตามความยาวของฐานและด้านข้าง อย่างไรก็ตามในกรณีนี้คุณต้องตรวจสอบให้แน่ใจว่าห้องนั้นเป็นรูปสี่เหลี่ยมคางหมู
วิธีคำนวณพื้นที่ของวงกลม: สูตรพื้นฐาน
ห้องโถงกลมสามารถกลายเป็นของตกแต่งบ้านส่วนตัวหรืออาคารสาธารณะได้อย่างแท้จริง สิ่งสำคัญคือต้องเข้าใจว่าคุณสามารถคำนวณพื้นที่ของวงกลมได้อย่างไร ในการหาค่าที่ต้องการคุณต้องทราบรัศมี r หรือเส้นผ่านศูนย์กลาง d ของวงกลม พารามิเตอร์นี้สามารถพบได้โดยลากเส้นผ่านจุดศูนย์กลางของวงกลม เส้นผ่านศูนย์กลางจะเท่ากับค่าที่พบและรัศมีจะเท่ากับครึ่งหนึ่ง
เมื่อคำนวณพื้นที่ของวงกลมสิ่งสำคัญคือต้องพิจารณาว่าคุณจะต้องใช้ขนาดใด หากเรากำลังพูดถึงรัศมีพื้นที่ของวงกลมจะเท่ากับ:
S = π×r²
เมื่อใช้เส้นผ่านศูนย์กลาง:
S = π×D² / 4
เราคำนวณพื้นที่ของส่วนและเซกเตอร์
ห้องกลมหายาก แต่ด้วยมุมโค้งมนในห้องใดห้องหนึ่งสามารถพบได้ค่อนข้างบ่อย ในการคำนวณกำลังสองของห้องคุณควรใช้สูตรสำหรับพื้นที่ของส่วนของวงกลม มีเพียงสองคนเท่านั้น อันไหนดีกว่าจะขึ้นอยู่กับข้อมูลอินพุตที่มี
ในกรณีแรกในการคำนวณพารามิเตอร์ที่ต้องการคุณจำเป็นต้องทราบความยาวส่วนโค้ง ลขอบเขตเซกเตอร์และรัศมีของวงกลม ร... พื้นที่เซกเตอร์ในกรณีนี้จะเท่ากับ:
S = 1/2 ×ล. ×ร
เมื่อพิจารณาถึงเส้นโค้งอาจเป็นเรื่องยากที่จะหาค่าที่แน่นอนของส่วนโค้ง ในกรณีนี้คุณควรใช้ค่ามุม αเกิดจากรัศมีที่ผูกเซกเตอร์ พื้นที่จะเท่ากับ:
S = π×r²×α / 360
ตามสูตรนี้พื้นที่ของครึ่งวงกลมจะเท่ากับ S = ½×π×r²และวงกลมหนึ่งในสี่ ¼ ×π×r².
บางครั้งอาจจำเป็นต้องคำนวณพื้นที่ของส่วนวงกลม ในการทำสิ่งนี้ก่อนอื่นให้หาพื้นที่สี่เหลี่ยมจัตุรัสของเซกเตอร์ซึ่งพื้นที่ของสามเหลี่ยมจะถูกลบออก
เมื่อทราบรัศมีของวงกลมและมุมระหว่างรัศมีของเซกเตอร์คุณสามารถค้นหาพื้นที่ของส่วนได้ดังนี้:
S = r² / 2 × (π×α / 180 ° - บาป (α))
โปรดทราบ! เมื่อทำการคำนวณควรแทนที่ค่ามุมเป็นองศา
หากการคำนวณพื้นที่ของเซกเตอร์และเซ็กเมนต์ทำให้เกิดปัญหาบางอย่างคุณควรใช้เครื่องคำนวณออนไลน์เมื่อป้อนข้อมูลเริ่มต้นคุณควรให้ความสนใจเป็นพิเศษกับหน่วยมุม หากคุณต้องการป้อนค่าเป็นเรเดียนองศาจะต้องหารด้วย p
วิธีคำนวณพื้นที่ของห้อง: คำแนะนำที่เป็นประโยชน์และคำแนะนำจะช่วยได้
ก่อนดำเนินการคำนวณคุณควรเตรียมตัว จำเป็น:
- รูเล็ต;
- ดินสอ;
- กระดาษ. ควรใช้สมุดบันทึกหรือสมุดบันทึกซึ่งจะป้อนการวัดและการคำนวณทั้งหมดตามความจำเป็น
- สแควร์. ขอแนะนำให้มีผลิตภัณฑ์ที่มีความยาวด้านข้างมากในสต็อกเนื่องจากในกรณีนี้คุณภาพของการวัดจะสูงขึ้น
- ไม้บรรทัด. ไม่จำเป็นต้องซื้ออุปกรณ์ตรวจวัดโดยเฉพาะ เพื่อจุดประสงค์นี้ระดับยาวจึงสมบูรณ์แบบซึ่งคุณสามารถควบคุมการเบี่ยงเบนจากแนวตั้งและแนวนอนได้
รูเล็ตสามารถ:
- เครื่องกล. มาตรวัดราคาประหยัดที่ทุกคนสามารถจับต้องได้ เพื่อให้ได้การวัดที่แม่นยำควรวัดด้วยคนสองคน ข้อผิดพลาดในการวัดเป็นมาตรฐาน หน่วยวัดคือมิลลิเมตร
- อิเล็กทรอนิกส์. ลำแสงถูกใช้ในกระบวนการวัด ส่วนใหญ่มักเป็นลำแสงเลเซอร์ การกำหนดทิศทางลำแสงไปยังจุดใดจุดหนึ่งคุณจะได้ระยะห่างระหว่างลำแสงกับตำแหน่งของคุณ หน่วยวัดคือมิลลิเมตรหรือเซนติเมตร บางรุ่นช่วยให้คุณได้กำลังสองของห้องทันทีโดยไม่ต้องคำนวณเพิ่มเติม คนหนึ่งคนสามารถจัดการกับการวัดได้ อุปกรณ์อิเล็กทรอนิกส์ช่วยให้ได้รับค่าที่ถูกต้องของค่าที่วัดได้ในช่วงเวลาสั้น ๆ
คำแนะนำที่เป็นประโยชน์! ควรวัดพารามิเตอร์เดียวกันอย่างน้อยสามครั้งในจุดที่ต่างกัน ใช้ค่าเฉลี่ยเลขคณิตในการคำนวณครั้งต่อไป
ในการคำนวณพื้นที่คุณต้องตัดสินใจว่ารูปทรงเรขาคณิตง่ายๆประกอบด้วยอะไรบ้าง หากเรากำลังพูดถึงห้องมาตรฐานในบ้านแผงพื้นส่วนใหญ่มักจะเป็นรูปสี่เหลี่ยมผืนผ้า โครงสร้างดังกล่าวสร้างขึ้นจากองค์ประกอบมาตรฐานรูปร่างและขนาดที่ได้มาตรฐาน
ในอาคารอพาร์ตเมนต์อิฐรูปร่างของพื้นอาจแตกต่างกัน พื้นผิวควรแบ่งออกเป็นรูปทรงธรรมดาอย่างมีเงื่อนไขค้นหาพื้นที่สำหรับแต่ละส่วนแล้วเพิ่มค่าผลลัพธ์
เพื่อไม่ให้สับสนในภายหลังเมื่อแปลพื้นที่ที่คำนวณจากหน่วยวัดหนึ่งไปยังอีกหน่วยหนึ่งควรทราบล่วงหน้าว่าจะคำนวณตารางเมตรของห้องอย่างไร สำหรับสิ่งนี้ก็เพียงพอที่จะแปลงขนาดเชิงเส้นที่วัดได้ทั้งหมดเป็นเมตรทันที ตัวอย่างเช่นถ้าความยาวด้านหนึ่ง 500 ซม. คือ 5 ม. นั่นคือในการแปลงเซนติเมตรเป็นเมตรค่าที่เกี่ยวข้องควรหารด้วย 100
พื้นที่ของพื้นสี่เหลี่ยมสามารถหาได้โดยการคูณความยาวของห้องด้วยความกว้าง หากการกำหนดค่าห้องแตกต่างจากมาตรฐาน: มีช่องสี่เหลี่ยมขั้นตอนการคำนวณจะขึ้นอยู่กับตำแหน่ง:
- นอกสถานที่. สถานการณ์เช่นนี้จะเกิดขึ้นหากผนังระหว่างห้องและระเบียงถูกถอดออก คุณสามารถคำนวณพื้นที่ทั้งหมดโดยการแบ่งห้องออกเป็นสองรูปสี่เหลี่ยมจัตุรัสโดยใช้พื้นที่ S1 และ S เมื่อวัดด้านข้างของแต่ละด้านคุณสามารถคำนวณกำลังสองของตัวเลข พื้นที่ทั้งหมดจะเท่ากับ:
S = ส1 + ส2
- ในบ้าน การคำนวณกำลังสองของแต่ละตารางจะคล้ายกับตัวเลือกแรก ในการหามูลค่ารวมจากค่าที่ใหญ่กว่าให้ลบค่าที่เล็กกว่านั่นคือ:
S = ส1 - ส2
- ในร่มและกลางแจ้ง ตัวเลือกนี้หายาก ในการคำนวณห้องจะต้องแบ่งออกเป็นหลายสี่เหลี่ยม ควรเพิ่มกำลังสองของจำนวนที่เพิ่มพื้นที่และค่าที่ลดลงควรลบออก
วิธีคำนวณพื้นที่ผนัง: คำแนะนำของเราจะช่วยคุณได้
ผนังในห้องมักเป็นรูปสี่เหลี่ยมผืนผ้า บางครั้งก็มีรูปสี่เหลี่ยมคางหมูเช่นเปิด ห้องใต้หลังคาของบ้านส่วนตัว... หลายคนพยายามจัดการระดับเสียงที่มีอยู่ทั้งหมดอย่างมีประสิทธิภาพและรูปทรงสี่เหลี่ยมคางหมูที่มีลักษณะเฉพาะทำให้ห้องมีเสน่ห์เป็นพิเศษ ในการคำนวณกำลังสองทั้งหมดของผนังในครั้งเดียวความสูงของผนัง H ควรคูณด้วยเส้นรอบวงของห้อง p
สำหรับผู้ที่ไม่ทราบวิธีคำนวณขอบเขตของห้องคุณควรนึกถึง:
- เราวัดความยาวของผนังทั้งหมดในห้อง: A, B, C, D;
- เราเพิ่มค่าที่ได้รับเข้าด้วยกัน: p = A + B + C + D.
ด้วยเหตุนี้พื้นที่ทั้งหมดของกำแพงจะเท่ากับ: S = H × p = H × (A + B + C + D).
โปรดทราบ! เมื่อกำหนดค่าความสูงอย่าวัดชิดผนัง หากมีความโค้งค่าที่ได้จะไม่ถูกต้อง
เมื่อคำนวณกำลังสองของผนังสิ่งสำคัญคือต้องจำไว้ว่าไม่ใช่พื้นที่ทั้งหมดที่มีประโยชน์ จากมูลค่าที่ได้รับของพื้นที่ทั้งหมดมันคุ้มค่าที่จะลบพื้นที่ทั้งหมดของช่องที่มีอยู่ทั้งหมด: ผนังและประตู สำหรับประตูบางครั้งก็ใช้วัสดุเดียวกันกับผนัง ในกรณีนี้ไม่จำเป็นต้องลบกำลังสองของทางเข้าประตู อย่างไรก็ตามนี่เป็นเรื่องที่หายากมาก
ในการกำหนดช่องสี่เหลี่ยมของการเปิดประตูหรือหน้าต่างควรวัดที่ด้านนอกของกล่องหรือกรอบ การคำนวณจะดำเนินการโดยคำนึงถึงการกำหนดค่าของหน้าต่างหรือประตู หากมีรูปร่างที่ซับซ้อนเราจะแบ่งออกเป็นรูปทรงง่ายๆตัวอย่างเช่นสี่เหลี่ยมผืนผ้าและครึ่งวงกลม
เมื่อใช้เครื่องคิดเลขการคำนวณพื้นที่ของผนังห้องจะง่ายขึ้นมาก สิ่งสำคัญคือการวัดและป้อนค่าในเซลล์ที่เหมาะสมอย่างถูกต้องโดยเลือกหน่วยการวัดที่ต้องการ
วิดีโอ: วิธีคำนวณพื้นที่ผนัง










































