Tuğladan yapılmış ev ve kır evlerinin projeleri: uygun hazırlık ve inşaat kontrolü
Çeşitli binaların inşasında nihai sonuç büyük ölçüde doğru planlamaya bağlıdır. Yapım aşamasındaki projeler, malzeme tüketimini ve anket çalışmasını, iletişim kurma maliyetini ve olası teknik varsayımları hesaba katmanıza izin verir. Bu yayında, tüm mimari gereksinimleri ve bina kodlarını göz önünde bulundurarak, tuğla evler ve kır evleri projelerinin nasıl oluşturulacağını anlatacağız. Online dergi homebase.techinfus.com/tr/ editörleri size proje yaratmanın özellikleri, farklı standart çözümlerin avantajları ve dezavantajları hakkında bilgi verecektir. Ayrıca incelemede pratikte halihazırda uygulanmış hazır çözümler var.

Dokümantasyonun kapsamlı bir şekilde hazırlanması hataları önler, inşaat ve sonraki operasyon sırasında maliyetleri düşürür
Makalenin içeriği
- 1 Güvenilir inşaatın temeli olarak tuğla evler ve evler projeleri
- 2 Tuğladan yapılmış ev ve kır evlerinin projeleri nelerdir
- 3 Ana Bölümlerin Uygun Tasarımının Temelleri
- 4 Bir tuğla kır evi projesi nasıl seçilir - fotoğraftaki örneklerle editör ekibimizin önerileri
- 5 Güzel premium evler ve büyük tuğla alanların projelerinin gözden geçirilmesi
- 6 Ekonomi fiyat segmentinde tuğla ev projeleri
- 7 ek bilgi
- 8 Tuğladan yapılmış ev ve kır evlerinin örneklerini içeren video
Güvenilir inşaatın temeli olarak tuğla evler ve evler projeleri
Bu yapı malzemesi binlerce yıldır evler inşa etmek için kullanılmıştır. Teknolojinin gelişmesine rağmen, klasik versiyon hala kullanılıyor - tuğla pişmiş kilden. Bu tür işlemlerden sonra, karakteristik özellikli seramik ürünler kırmızı renkçeşitli dış etkilere karşı artan direnç ile. Modern bir versiyon, beyaz veya sarı silikat tuğlalar, kireçli kuvars kumundan oluşturulur. Artan gözeneklilik ve daha iyi yalıtım özellikleri ile ayırt edilirler.
Bu tür modifikasyonların üretimi için, ezilmiş dolomitli portland çimentosu, mermer ve diğer kayalar kullanılır. Dekorasyona uygun ideal görünüm. Bazen doğal taşı taklit etmek için karmaşık bir şekil yapılır. Cephe serileri, daha dikkatli bir hammadde seçimi ile oluşturulur. Mevcut GOST'a göre, genişlik, uzunluk ve yükseklikteki sapmalar sırasıyla 3, 4 ve 2 mm'yi geçmemelidir. Bu tür ürünler olmadan kullanılır dekoratif sıva... Malzeme avantajları:
- yüksek güç;
- yanmazlık;
- neme, dona ve sıcağa, çürümeye ve diğer biyolojik etkilere karşı direnç;
- dayanıklılık;
- ekolojik temizlik.
Bu tür malzemelerle tek başına çalışabilirsiniz. Ürünler yenileme ve modernizasyon için çok uygundur. Başkent duvarları ve bölmeler, çok katlı binalar ve müştemilatlar inşa etmek için kullanılırlar.
Dezavantaj, nispeten yüksek maliyettir. Belirli bir higroskopiklik, bir sıva tabakasının kurulumunu zorlar. Azaltmak için termal iletkenlik iç boşluklu tuğlalar oluşturun.
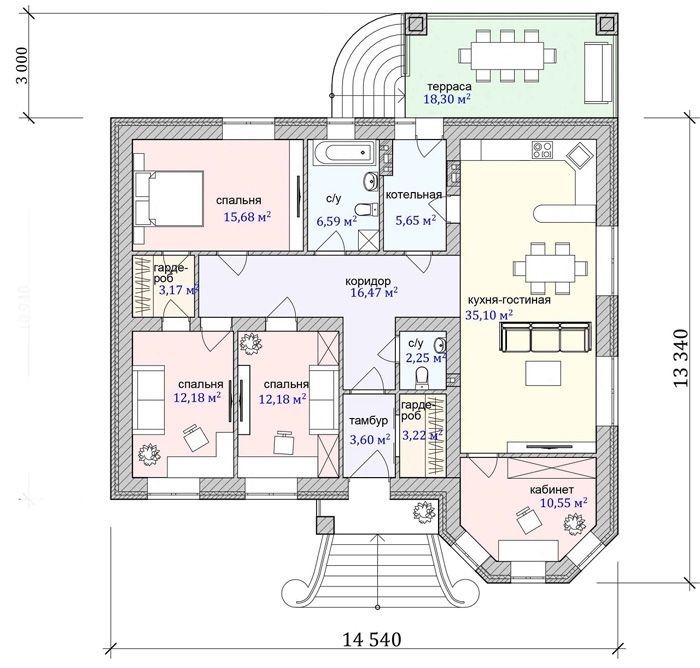
Tuğladan yapılmış ev ve kır evlerinin projeleri nelerdir
Eksiksiz bir dokümantasyon paketi site, mühendislik ağları hakkında bilgi içermelidir. Bu veriler, gelecekteki kullanıcıların gereksinimlerini tamamlar. Genel bilgiler, teknik şartnamelerin hazırlanmasında kullanılır. İstenilen bileşimi gösterir ve oda alanı, diğer temel parametreler.
Eskiz projeleri
Basitleştirilmiş dokümantasyon hazırlayarak başlayabilirsiniz. Bu isme rağmen, tipik bir taslak tasarım birçok yararlı bilgi içerir:
- Genel Plan;
- bireysel kat planları ve kesikler;
- cephe çeşitleri ve perspektif çizimi.
Bazı durumlarda, bilgisayar modelleme ile hacimsel görselleştirme varsayılır. iç mekanlar... Kısaltılmış bir açıklayıcı notta, ana teknik ve ekonomik göstergelerle birlikte tasarımın genel bir açıklaması verilmiştir.
Tipik ve bireysel projeler
Bitmiş paket, malzeme satın almak, iş işlemlerini gerçekleştirmek ve bir nesneyi kaydetmek için gerekli bilgileri içerir. Süreci hızlandırmak ve gereksiz maliyetleri ortadan kaldırmak için en kolay yol, hazır standart projelere yönelmektir. Tüm kirli işleri üstlenmeye ve gerekli tüm gereksinimleri göz önünde bulundurarak bir proje hazırlamaya ve belgelerin hazırlanmasına yardımcı olmaya hazır uzman firmalar var. İki katlı tuğla bir evin tipik projeleri, açık İnternet kaynaklarında zorluk çekmeden bulunabilir, bunu temel alın ve uzmanlarla görüşerek ihtiyaçlarınıza göre ayarlayın. Bölmelerin boyutunu, yerini, pencere şeklini ve kapı açıklıklarını değiştirebilirsiniz. Güç kaynağı ve ısıtma sistemlerinin açıklamasına ilişkin paragraflardaki değişikliklere izin verilir. Ayrı olarak, gelecekteki tasarım çözümlerini de hesaba katabilirsiniz.
Özel bir ihtiyaç olduğunda "A" dan "Z" ye bireysel bir proje oluşturulur. Bu durumda, hesaplamayı ve diğer işleri yeniden yapmak gerektiğinden maliyeti önemli ölçüde artar. İşlem uzun sürüyor.
Ana Bölümlerin Uygun Tasarımının Temelleri
Yayının bu bölümünde, tuğla evlerin ve kır evlerinin inşası için bir belge paketi daha ayrıntılı olarak ele alınmıştır. Bu bilgi, hazır bir satın alırken ve yeni bir proje hazırlama aşamasında faydalı olacaktır. Önemli nüansları unutmamanıza yardımcı olacaklar.
Projenin mimari ve yapıcı bölümü
Genel bölüm açıklayıcı bir notla başlar. Ayrıntılı ekonomik ve teknik göstergelere ek olarak, duvarlar, çatılar ve diğer yapısal elemanlar için malzeme miktarı hakkında bilgi vardır. Ana planın düzeni ana binanın yerini gösterir, garaj, banyolar, bireysel müştemilatlar.
Bu tür çizimler, renk, doku, kaplama malzemeleri ile deney yapmak için kullanışlıdır.

Kontrol yükseklikleri cephelerin planlarında belirtilmiştir. Eşlik eden sayfa kaplama malzemeleri içerir

Kesikler yardımıyla zeminlerin, çatıların, yalıtımın ve diğer yapısal bileşenlerin bileşimi netleştirilir.

Kat planları, mobilya düzenlemesi, büyük işlevsel ve dekoratif iç elemanlar için önerilerle tamamlanmaktadır.
Bir ev ve bir tuğla kır evi için hazır bir proje kullanırken bile yapısal parçaya ihtiyaç vardır. Burada, seçilen çatı tipi ve yapılan diğer değişiklikler dikkate alınarak yük hesaplamaları yapılır. Bölgenin depremselliği, arazi parselindeki jeolojinin özellikleri dikkate alınarak takviye geliştirilmektedir. Ayrı ayrı hesaplarlar:
- süveter teraslar, merdivenler;
- zeminler arası;
- kafes çerçeveçatı için.
Projenin mühendislik bölümü
Standart paket, tüm sistemler için açıklayıcı notların yanı sıra çizimler içerir:
- elektrik, gaz su tedarik etmek;
- ısıtma;
- kanalizasyon ve drenaj;
- havalandırma, şartlandırma;
- yıldırımdan korunma ve topraklama;
- itfaiye ve güvenlik alarmı;
- bilgisayar ağları;
- telefon iletişimi;
- televizyon.
Not! Bazı sistemler iç ve dış mekan için ayrı ayrı tasarlanmıştır.
Bir tuğla yazlık projesi nasıl seçilir - fotoğraftaki örneklerle editör ekibimizin önerileri
Öncelikle, arazinin özelliklerini incelemelisiniz:
- Karayollarının konumu, geçitlerin parametrelerini belirler.
- Zayıf topraklarda bir levhaya ihtiyacınız olacak veya kazık temel.
- Önemli olan konut binalarının göreceli konumudur, septik tanklar, kuyular ve diğer nesneler kendi ve bitişiğindeki topraklarda.
- Yüksek düzeyde yeraltı suyu ile temeli güçlendirmenin yanı sıra gerekli olabilir. özel drenaj sistemi.
Ayrıca, ailedeki olası artış, misafirlerin gelişi, sahiplerin hobileri ve özel gereksinimler dikkate alınarak oda sayısı ve boyutu belirlenir. Bireysel araçlar için depolama yerinin organizasyonunu unutmamalısınız. Arazideki ek binaların bir listesini yapın. Kişisel renk, stil, teknik ve işlevsel tercihleri kutlayın.
Güzel premium evler ve büyük tuğla alanların projelerinin gözden geçirilmesi
Sağlam bir bütçe, yüksek kaliteli malzemelerin, daha yüksek bir konfor düzeyinin ve son teknoloji mühendisliğin kullanılması anlamına gelir. Fotoğrafta aşağıda sunulan güzel tuğla evler, gelecekteki sahiplerin artan gereksinimleri dikkate alınarak oluşturuldu. Yorumlar, mevcut piyasa tekliflerini incelerken dikkat etmeniz gereken ayrıntıları sağlar.
Cephe fotoğrafı ile kırmızı tuğlalı ev projesi
| Grup | Seçenekler | Değerler |
|---|---|---|
| Teknik göstergeler | Kat sayısı | 2 |
| Oda sayısı | 4 | |
| Toplam / yaşam alanı, m2 | 254/69,4 | |
| Tasarım özellikleri | Dış duvarlar | 120 mm taşyünü levhalarla izole edilmiş 250 mm seramik boşluklu tuğla. |
| Bölümler | Tuğla 120 mm. | |
| Çatı | Metal kiremitli mertek. |
Bazı köylerde, bölgenin kendi güvenlik hizmetleri tarafından kontrolünü basitleştirmek için çitler özel olarak hariç tutulmuştur.
İlgili makale:
Tek katlı bir evin planı. Bodrum, garaj ve çatı katı ile farklı büyüklükteki evlerin projeleri, bir evde bir mühendislik ağları projesinin nasıl doğru bir şekilde geliştirileceği, uzmanlardan yararlı tavsiyeler - yayında bulacaksınız.
Cephe fotoğrafı ile beyaz tuğla ev projesi
| Grup | Seçenekler | Değerler |
|---|---|---|
| Teknik göstergeler | Kat sayısı | 2 |
| Oda sayısı | 5 yatak odası, 2 banyo | |
| Toplam alan, m2 | 201 | |
| Birinci / ikinci katın tavan yüksekliği, cm | 315/300 | |
| Tasarım özellikleri | Dış duvarlar | 120 mm taşyünü levhalarla 250 mm yalıtımlı 390 mm genişletilmiş kil beton bloklar. Beyaz tuğla karşı karşıya. |
| Yapı temeli | Monolitik betonarme döşeme. | |
| Çatı | Seçtiğiniz metal / esnek zona. |
Kahverengi tuğla ev projesi, diğer renklerin kullanımı
| Grup | Seçenekler | Değerler |
|---|---|---|
| Teknik göstergeler | Kat sayısı | 2 |
| Oda sayısı | 4 | |
| Toplam / yaşam alanı, m2 | 201/79 | |
| Birinci / ikinci katın tavan yüksekliği, cm | 315/300 | |
| Tasarım özellikleri | Dış duvarlar | Köpük beton bloklar, cephe seramik tuğlalı 600 yoğunluğu. |
| Yapı temeli | C16 / 20 betondan yapılmış monolitik bant. | |
| Çatı | Kiriş sistemindeki metal kiremitler. | |
| Örtüşen | Garajın üzerinde betonarme döşemeler var. Geri kalanında ahşap kirişler var. |

Bu fotoğraf sarı tuğladan bir çit gösteriyor. Arazide farklı mimari yapılar oluşturmak için muhteşem zıt renk kaplamaları tekrar edilebilir
Ekonomi fiyat segmentinde tuğla ev projeleri
Dikkatli hazırlık, mevcut fonların rasyonel kullanımına izin verecektir. Güzel evlerin fotoğrafları tuğladan yapılmış bu bölümdeki açıklamalar geniş potansiyeli açıkça göstermektedir.
Tek katlı tuğla ev projesi
| Grup | Seçenekler | Değerler |
|---|---|---|
| Teknik göstergeler | Kat sayısı | 1 |
| Oda sayısı | 4 | |
| Toplam / yaşam alanı, m2 | 122,5/62,2 | |
| Tasarım özellikleri | Dış duvarlar | 120 mm taşyünü levhalarla izole edilmiş 250 mm seramik boşluklu tuğla. |
| Bölümler | Tuğla 120 mm. | |
| Çatı | Metal kiremitli mertek. |

Fırın zemin katta yer almaktadır. Giriş alanına bir vestibül yapılmıştır. Üç yatak odası için yeterli alan vardı
İlgili makale:
100 metrekareye kadar tek katlı evlerin projeleri. m. ahşaptan, köpük bloklardan, tuğlalardan, metal ve ahşap bir çerçeve üzerine, tasarımın avantajları ve dezavantajları, yerleşimlerin fotoğrafları - yayınımızda.
Tavan arası tuğla ev projesi
| Grup | Seçenekler | Değerler |
|---|---|---|
| Teknik göstergeler | Kat sayısı | 1 + tavan arası |
| Oda sayısı | 3 | |
| Toplam alan, m2 | 107 | |
| İnşaat alanı, m2 | 64 | |
| Tasarım özellikleri | Dış duvarlar | Köpük beton bloklar, mineral yün, seramik tuğlalar. |
| Yapı temeli | Betonarme, monolitik. | |
| Çatı | Metal veya seramik karolar. |
Bu tür yapılarda planlama büyük bir özenle yapılır. Kullanılabilir alanın tamamını kullanın. Bazen kullanıldı tavan arası alanlar, ancak bu durumda, daha karmaşık bir tasarım nedeniyle tasarım maliyetinde önemli bir artış mümkündür yalıtımlı çatı... Bu montaj seçeneği için Windows standart modellerden daha pahalıdır.
İlgili makale:
Tavan arası ev: projeler, fotoğraflar. Tavan arası binalar, özel bir arsa için pratik ve çok çekici bir fikirdir.Projeler, başarılı iç mekanların fotoğrafları ve deneyimli inşaatçıların önerileri materyallerimizdedir.
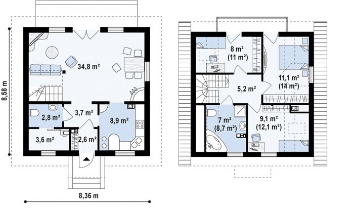
İki katlı tuğla ev projesi
| Grup | Seçenekler | Değerler |
|---|---|---|
| Teknik göstergeler | Kat sayısı | 2 |
| Oda sayısı | 3 yatak odası | |
| Toplam alan, m2 | 113 | |
| Tasarım özellikleri | Dış duvarlar | Seramik tuğlalar, köpük beton bloklar kullanmak mümkündür. Mineral yün izolasyon 50-100 mm. |
| Yapı temeli | Betonarme monolitik. | |
| Çatı | Metal, esnek veya seramik karolar. |
İlgili makale:
İki katlı evler için planlar. Kapsam ve ayırt edici özellikler, avantajlar ve dezavantajlar, malzemeler; 9x9, 10x10, 7x7, 6x8, 6x10, 9x6, 12x12 metre evlerin düzenleri - yayınımızda.
ek bilgi
Tek katlı veya başka bir tuğla evin fotoğrafı yalnızca estetik parametreleri gösterir. Proje teknik özellikleri incelemelidir. Cilanın dayanıklılığı ve bakım programı çok önemlidir.
Diğer sorulara yanıt almak için yayındaki yorumları kullanın. Buraya yorumlarınızı, tavsiyelerinizi bırakın, proje ve inşaat teknolojileri seçimindeki deneyimlerinizi paylaşın











































