Селска тоалетна „направи си сам“: строим с помощта на снимки и рисунки от различни материали
Днешната тема на публикацията е селска тоалетна „направи си сам“. Снимките и чертежите ще ви позволят да разберете правилно външния вид и размера на конструкцията. Много хора смятат, че инсталирането на външна баня е съвсем просто. Въпреки това е необходимо да се ръководим от някои принципи и изисквания, които редакторите на homebase.techinfus.com ще обсъдят днес.
Съдържанието на статията
- 1 Основните изисквания за местоположението на селската тоалетна
- 2 Видове тоалетни в страната, които можете да поставите със собствените си ръце: опции със снимка
- 3 Как да изберем тоалетна за селска тоалетна: кое е по-добре
- 4 Селска тоалетна с помийна мия: конструктивни характеристики
- 5 Как да изградим селска тоалетна от различни видове строителни материали: общи препоръки
Основните изисквания за местоположението на селската тоалетна
Без да се вземат предвид някои от нюансите, е трудно да си представим какъв дизайн ще се получи в резултат. Собственикът трябва да разбере, че трябва да се спазват съществуващите изисквания. Първо, тя се характеризира с безопасност, и второ, няма да нарушите нищо по време на строителството.
- Първото нещо, което трябва да направите, е да се уверите, че сградата няма да пречи на съседите. Съгласете се, никой няма да бъде доволен, ако тоалетната излъчва неприятна миризма под прозорците или покрива растителността със сянка. Съгласете се с хората, в противен случай съществува голям риск да се наложи да преместите конструкцията на друго място.
- Изучете указанията за местоположението на тоалетната. Важно е екологията да се зачита на сайта. Забранено е инсталирането на такива конструкции в зоната на водни тела и плодородна почва.Също така е неприемливо да се монтира конструкцията до кладенци и други природни ресурси.
- Създайте проект, който ще осигури възможността за отстраняване на отпадъци с помощта на канализационна машина. Съответно тоалетната трябва да се намира близо до входа на двора. За да предотвратите напускането на разградените отпадъци от помийната яма, по-добре е да използвате септични ями.
- Фокусирайте се върху преминаването на подпочвените води. Ако такива източници изтекат до бъдещата тоалетна, конструкцията не може да бъде изградена. С времето ще започне да се руши. За селска тоалетна се препоръчва да изберете херметична основа.
- Външна тоалетна трябва да бъде разположена на разстояние най-малко 12 м от жилищните сгради.
Горните изисквания позволяват да се избегнат повечето проблеми, които могат да възникнат по време на работа.
Изгледи тоалетни в страната, които можете да поставите със собствените си ръце: настроики със снимка
Има много варианти за дизайн, които се различават по външен вид, както и от материала, използван в строителството. Кабинките също се класифицират по вид конструкция. Трябва да се подчертаят няколко популярни примера.
Стандартна санитарна стая
Обикновена тоалетна с дупка за отпадъци. Той не предвижда никакви сложни системи. Изгребната яма се счита за задължителен атрибут на такава къща. Те го копаят със собствените си ръце или инсталират комплекс септични ями с помпа.
Върху тези тоалетни може да се постави резервоар за вода. Този резервоар е предназначен за измиване на отпадъците в тоалетната.
Тоалет тоалетна и прах тоалетна: характеристики
Тоалетната с люфт се счита за доста скъп дизайн. Неговите задължителни компоненти включват бетонна помийна яма. Основната характеристика на такава тоалетна е правилната организация на вентилацията. Тази опция е издигната като обособена или прикрепена към опцията къща.
Тоалетната пудра е дървена тоалетна седалка с капак, проектирана като малка конструкция. Дебелите дървени стърготини действат като механизъм за промиване, които служат за прах от биологични отпадъци. Контейнерът с материала е монтиран до тоалетната. При липса на дървени стърготини прахът на отпадъците се извършва с дървесна пепел.
Химическа санитарна стая
Селска тоалетна може да работи с химичен състав. Използвайки специална формула, химикалите реагират с биологични отпадъци след всяко посещение в тоалетната. Така неприятната миризма бързо изчезва. Бактериите активно третират микробите, намалявайки нивото на твърдите отпадъци. В резултат на това остава само течност, която е удобна за изпомпване.
Изграждането на химическа тоалетна може да не изисква голяма септична яма. Понякога е достатъчно да използвате стационарен резервоар.
Торфен дрешник за лятна резиденция
Когато подреждат суха селска тоалетна, много хора предпочитат да използват система за изхвърляне на торфени отпадъци. Няколко седмици след обработката всички отпадъци се превръщат в отличен тор за градината и зеленчуковата градина.
Такива тоалетни се "изплакват" изключително със сух торф. Това удоволствие обаче не е евтино.
Свързана статия:
Торфена тоалетна за лятна резиденция: кое е по-добре? Преглед на плюсовете и минусите, както и на популярните производители и цените на торфените шкафове в специална публикация на нашия портал.
Тоалетна с душ за летни вили: комбинирана конструкция
Най-подходящият вариант е комбинирана баня.Удобно е да се извършват всички хигиенни процедури едновременно. Цялата сграда се състои от две помещения със същия размер. Вътре може да се монтира бойлер. По-често на покрива на кабината е монтиран резервоар за вода.
Свързана статия:
Тоалетна за даване със собствените си ръце. Инструкции стъпка по стъпка за изграждане на тоалетна (хижа, къщичка за птици), готови чертежи и някои от нюансите на подредбата в специален материал.
Как да изберем тоалетна за селска тоалетна: кое е по добро
Има много видове тоалетни на открито. Те имат различно тегло, размери и материали за производство. Най-често срещаните опции са:
- порцелан и керамика... Има модели от неподвижен тип, а има и такива, които са предназначени за клякане;
- дървени тоалетни седалки... Обикновено те се правят под формата на дървена стъпало с отвор. В него може да се побере и седалка за стационарна тоалетна;
- поцинкована... Такива случаи не винаги са удобни. Те са много студени през зимата. За производството са необходими тръба с подходящ размер и самоделна седалка;
- тоалетна чиния... Този дизайн е изобретен отдавна. За да го направите, трябва да изрежете дупка в възглавницата на стола или да го премахнете напълно, като го замените с мека седалка за обикновена тоалетна.
Закупените опции са по-удобни и удобни. Ако обаче не ви се налага да използвате удобствата на уличната тоалетна за лятна резиденция твърде често, бюджетен метод също ще бъде идеален.

Основната разлика между тоалетните за вили от обикновените е наличието на широка дюза за отпадъци
СНИМКА: drive2.ru
Селска тоалетна с помийна мия: конструктивни особености
Лесно е да се създадат удобни условия в улична тоалетна на територията на частна къща. Основното нещо е да следвате стъпка по стъпка алгоритъм за всеки етап от строителството.
Устройство Cesspool за селска тоалетна стъпка по стъпка със собствените си ръце
Най-добре е да оборудвате помийна яма за тоалетна в страната със собствените си ръце, като използвате готова схема. Можете да го отпечатате или да помислите върху себе си. Съществуват обаче и опростени варианти на договореността.
Подготовка на ямата
Необходимо е да се направи конструкцията на помийна яма с достатъчен размер: приблизително 12-18 m³. След като разберете мястото, следвайте инструкциите.
Остава да добавите още малко чакъл върху пясъчната възглавница, след което изсипете всичко това с бетонен слой от 15 см и оставете за 10 дни да се втвърди.
Подреждане помийна яма в страната за тоалетната
Преди това тухлена зидария се използваше за подреждане на стените на ямата. Днес пластмасовите септични ями са най-подходящи за различни варианти за тоалетни в страната.
Остава само да се избере подходящият размер (ако не се разчита при изкопаване на ямата) и да се подреди дренажът.
Как да премахнете миризмите от тоалетна яма
Така че отдихът на открито да не се разваля от неприятните миризми, идващи от тоалетната, ще трябва да организирате тяхното премахване. Това се прави по следните начини:
- чрез локализация в рамките на обема на резервоара за отпадъци;
- организация на тоалетна от сух тип в страната без помийна яма.
За първия метод най-често се използват специални химикали, като напр Roetech K-47, Д-р Робик 109, BIOFORCE Septic 250.

Разлагането на твърди биочастици се извършва съгласно инструкциите на опаковката за препарата
СНИМКА: rhs770.com
Правила за вентилация
Отстраняването на въздуха от септичната яма на градинската тоалетна „направи си сам“ също влияе върху унищожаването на постоянни миризми. Ако системата е изпълнена правилно, газообразните съединения ще се изпарят незабавно. Предлагаме да изучите съветите и триковете, представени във видеото.
Как да изградите тоалетна в страната със собствените си ръце: стъпка по стъпка инструкции за снимки
След като мястото е организирано, е поставена помийна яма, можете да започнете да проектирате самата кабина.
Как да изградим селска тоалетна от различни видове строителни материали: общи препоръки
При изграждането на селски тоалетни можете да използвате различни суровини, вариращи от дърво до бетонни блокове. Предлагаме на вашето внимание няколко вида сгради.
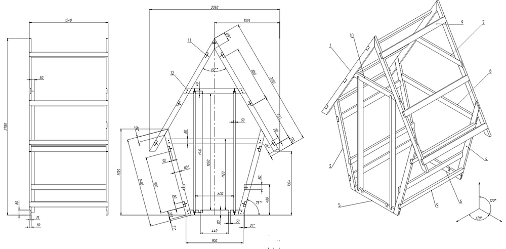
Дървена тоалетна за лятна резиденция със собствените си ръце с чертежи
Много хора не осъзнават колко интересни могат да бъдат дизайните на дървено сортиране на улици. С помощта на чертежи на тоалетни и предписаните размери върху тях е лесно да приложите някой от моделите в страната със собствените си ръце.
За всяка версия на селската тоалетна чертежите и размерите ще бъдат различни.
Как да направите тоалетна в страната със собствените си ръце от тухли: интересни опции
Етапите на строителство по време на изграждането на тухлена тоалетна изобщо не се различават един от друг. Тази опция изглежда богата и е лесна за изпълнение. В резултат на това стените не изискват допълнително довършване. Помислете за няколко вида ръчно изработени селски тоалетни на снимката, които могат да бъдат полезни за подреждане.
Направи си сам външна тоалетна от бетонни блокове: видео
Тоалетна на лятна вила също може лесно да бъде построена от бетон или блокове от газобетон... Най-оптимално е да се правят комбинирани конструкции от такъв материал: селска тоалетна с душ. Във видеото можете да видите как трябва да бъдат подредени дяловете за предложената опция.
Уважаеми читатели, ако имате някакви въпроси по дадена тема или нещо не се получи по време на строителството, не забравяйте да попитате. Не забравяйте да оцените публикацията и да споделите личното си мнение.













































