Домашни дървообработващи машини за домашна работилница: качествено оборудване без допълнителни разходи
С добро оборудване стават достъпни сложни технологични процеси. Специализираното оборудване с електрическо задвижване значително опростява обработката на дървени заготовки. Но придобиването му е свързано със значителни инвестиции. За да разрешите успешно такъв проблем, трябва внимателно да проучите материалите на тази статия. Ето как сами да създадете функционални дървообработващи машини за домашната си работилница.

Някои мостри на домашно приготвено оборудване по своите потребителски характеристики не са по-лоши от фабричните продукти
Съдържанието на статията
- 1 Принципи на оборудване на домашна работилница, подготвителни мерки
- 2 Дървообработващи машини за домашна работилница и специални устройства: основни определения, производствени технологии
- 2.1 Изработване на струг за дърво за домашна работилница
- 2.2 Как да направите евтин домашен струг за дърво със собствените си ръце
- 2.3 Изработване на фрези за струг за дърво от скрап материали
- 2.4 Важни компоненти за стационарен циркуляр със собствените си ръце
- 2.5 Описание на евтин циркулярен трион от мелница със собствените си ръце
- 2.6 Предимства и процес на създаване на най-простия рутер за дърво за домашната работилница
- 2.7 Възможността за реализиране на проект за CNC фреза „направи си сам“
- 2.8 Как да направите свои собствени фрези за дървообработващи машини
- 2.9 Чертежи и препоръки за създаване на машина за сгъстяване "направи си сам"
- 2.10 Изработване на функционална ренде от електрическа равнина със собствените си ръце
- 2.11 Направи си сам технология за създаване на машина за шлайфане на дърво
- 2.12 Правилното създаване на ренде за дърво със собствените си ръце
- 3 Висококачествени домашно приготвени дървообработващи машини със собствените си ръце: видео, допълнителни материали и препоръки, заключения
Принципи на оборудване на домашна работилница, подготвителни мерки
Преди да пристъпите директно към техническото оборудване, трябва да се направят няколко общи забележки относно съответната специализирана стая:
- Удобно, когато работилницата се намира в отделна сграда.Това предполага достатъчно място, без излишни притеснения, възможност за пълно оборудване с вентилация и други инженерни системи.
- Ако стаята е в приложение, или сутерен, трябва да е добре изолиран от жилищната площ.
- Площта на стандартна работилница не трябва да бъде по-малка от 6-7 квадратни метра. Височина - достатъчна за свободно преминаване и максимално ниво на повдигнатия инструмент (от 2,5 m и повече).
- Висококачествените системи за вентилация, отопление, осветление ще са ни от полза тук. Всяка инженерна система трябва да се разглежда отделно, за да се избегнат прекомерни разходи по време на работа.
- Уверете се, че електрическата мощност е достатъчна за непрекъсваемо захранване всички дървообработващи машини за домашната работилница.
Забележка! Ако оборудването има електронни компоненти, ще ви бъдат полезни специални прекъсвачи, за да се предотврати повреда от пренапрежения на напрежение, защитно заземяване. Необходимо е да се гарантира, че мрежовите параметри съответстват на характеристиките на захранващите блокове (220 V, една фаза; 380 V, три фази).
Следващата група практически препоръки се допълва от обяснителни снимки.

За да се осигури ефективно усвояване на звуците, се използват специални материали за тапицерията на стени, тавани

Емисионният спектър на осветителното тяло на работната маса трябва да бъде близо до естествената слънчева светлина
Използването на такъв източник ще намали умората и ще помогне да се поддържа добро зрение. За предпочитане зададен LED устройство... Той не загрява околната среда като конвенционална лампа с нажежаема жичка. За разлика от газоразрядния аналог е трудно да се повреди от механично въздействие.

Необходимо е да се създадат проходи, достатъчно широки за свободно движение и удобно разположение на работното място

Планът на цеха и съставът на оборудването се определят, като се вземат предвид характеристиките на продуктите, които ще бъдат създадени тук.
Дървообработващи машини за домашна работилница и специални устройства: основни определения, производствени технологии
Освен това различните видове оборудване са разгледани подробно. Но първо трябва да направите няколко важни общи коментара:
- Всяка машина е проектирана да извършва ограничен набор от работни операции с детайли с определени размери.
- Като правило специализираното оборудване е по-удобно за работа от универсалните модели.
- Дървообработваща машина ще бъде по-лесно да го направите сами, ако първо съставите точен списък с изисквания за неговите характеристики. Прекомерната мощност не е задължителна. Необходимият въртящ момент може да бъде осигурен с помощта на скоростна кутия.
- По същия начин, след инсталирането на подходящия трансмисионен механизъм, скоростта на въртене на работния вал се променя. За по-точна обработка е полезно плавното регулиране на този параметър в широк диапазон.
- За да се намалят разходите, е възможно да се използва електрически двигател на бормашина със счупен корпус и други работни части на повредено оборудване в дизайна.
- Най-сложните механични и електронни компоненти ще трябва да бъдат закупени отделно. Разходите за възпроизвеждане на някои технологии у дома надвишават цената на готовите продукти.
- Животът на оборудването с електрическо задвижване ще се увеличи, ако е защитено от прекомерни натоварвания. По-специално е полезно да бъдете оборудвани с автоматично устройство, което спира мощността при прегряване на двигателя.
Важно! Въпросите за безопасност не трябва да се пренебрегват. Задвижващите ролки са забулени. Пред работните инструменти са монтирани листове от прозрачна пластмаса.

Висококачествените лични предпазни средства се използват не само в производството, но и в ежедневието при работа на машина
За рационалното използване на свободното пространство са полезни рафтовете за стени и тавани, стелажи, куки и специални държачи. Точното място за инсталиране на съответния аксесоари за дърводелство се избират, като се вземат предвид особеностите на технологичните процеси, разположението на машини и работни маси.
Свързана статия:
Домашни машини и инструменти за домашната работилница. Нашият преглед ще ви помогне да изберете и направите домашно приготвени машини и устройства за домашната работилница, както и да разберете технологията на тяхното производство.
Изработване на струг за дърво за домашна работилница
Техническите параметри на съответните продукти заедно с описания могат да бъдат намерени в Интернет.

Тези чертежи с размерите на струг за дърво със собствените си ръце ще ви помогнат да изучите по-добре типичния дизайн
Основната част е леглото (1). Към него са прикрепени други части на продукта. Той осигурява не само целостта на здравината на рамката, но и добра стабилност на повърхността. Дърводелската машина е предназначена за обработка на относително леки детайли, така че тази част може да бъде направена от твърда дървесина.
В централната част има опора с опора за ръчен фрез (2). Вместо това може да се монтира държач за твърдо фиксиране на инструмента. Обработваният детайл е фиксиран между бащата (3) и опашката (4). Върти се с електрически мотор (6). За промяна на въртящия момент на оста в тази конструкция се използват ремъчно предаване и ролка (5). Суппортът и задната част се движат хоризонтално по специален вал (7), който е монтиран вътре в леглото.
Важно! Тези чертежи могат да се използват за производство на работеща машина. Трябва само да се има предвид, че всички размери тук са в инчове.
Този проект може да се използва за направата на струг за копиране на дърво, направен сам. Той трябва да бъде допълнен само със специално устройство, което е предназначено за последователно създаване на идентични продукти.
За да го фиксирате на правилното място, трябва да направите специална стойка. В този пример беше използван шперплат от 10 mm, от който беше изрязана площ от 480 × 180 mm. Дадените размери могат да се променят, като се вземат предвид реалните параметри фрези... Дупките в шперплата се изрязват така, че закрепващите болтове и инструментът да преминат през тях. За твърдо фиксиране по контура на платформата дървените блокове се фиксират с винтове.
Този дизайн привлича със своята простота, наличност на компоненти и разумна цена. Но трябва да се отбележат някои недостатъци:
- Ще трябва да използвате две ръце, за да преместите фрезата. Това е необходимо, за да се създаде достатъчна сила и да се предотврати задръстване.
- Минималният радиус, по който ще се създават завои на части, е ограничен от диаметъра на инструмента (фрезата).
- За обработка на детайли от различни видове дърво е необходимо точно регулиране на скоростта на въртене на вала и в този пример тази възможност не е предвидена.
Този пример обяснява, че дори проверен във времето и практичен дизайн може да бъде подобрен с внимателно проучване на оборудването и технологичния процес.
Домашен струг за дърво със собствените си ръце: видео с инструкции и коментари от автора на проекта
Как да направите евтин домашен струг за дърво със собствените си ръце
С този комплект мини струг няма да е трудно да направите дървена дограма със собствените си ръце. Такова легло може да бъде фиксирано върху дървена или метална основа. Точните параметри на барабана се избират, като се вземат предвид размерите и седалките на опорите на двигателя. Параметрите на мощността на електродвигателя от битова пералня... За този тип дограма оборудване ще има достатъчно мощност от 250-300 kW, ако се предава към вала с помощта на редуктор (ролка).
Последният пример трябва да бъде проучен по-подробно. Избирайки подходящ инструмент с електрическо задвижване, можете да получите необходимата мощност, скорост на въртене. Стандартният патронник е удобен за сигурно и бързо затягане на детайла. В съвременната технология от този тип е осигурена защита срещу прегряване, проникване на прах в кутията. Тук са инсталирани висококачествени превключватели, ефективна изолация. Само тази снимка е достатъчна, за да разберете как сами да направите струг.
Изработване на фрези за струг за дърво от скрап материали
Пили, триони, ключове и други инструменти, направени от инструментална стомана, ще свършат работа. По-лесно е да се обработват детайли с квадратна форма (в изглед в напречно сечение). Уверете се, че няма пукнатини или други дефекти, които намаляват якостта. За твърдо закрепване на проходни фрези машината трябва да бъде оборудвана със специален държач.
Важни компоненти за стационарен циркуляр със собствените си ръце
В това оборудване таблицата изпълнява най-важните функции, така че нейните параметри трябва да се изучават със специално внимание. Инсталира се електрически мотор с задвижващи механизми, захранване и елементи на веригата за управление. Той трябва да бъде проектиран за теглото на вградените компоненти и дървен материал. Не трябва да забравяме, че по време на работа ще възникнат статични и динамични натоварвания и вибрации.

За да се увеличи надеждността, на метална рамка може да се създаде маса за ръчен циркуляр със собствените си ръце
При определяне на параметрите на машината трябва да се вземат предвид следните фактори:
- За това оборудване мощността на силовия агрегат трябва да бъде най-малко 0,85 kW.
- При изчисляване на конструкцията е необходимо да се провери височината на изпъкналия ръб на диска. Той ще определи максималната дълбочина на рязане.
- Минималната скорост на въртене на работния вал е ограничена до 1,5 хиляди оборота в минута. Препоръчително е да го увеличите, така че цветът на дървената заготовка да не се променя по време на изпълнението на работните операции.

Водач за циркулярен трион със собствените си ръце е създаден с равномерен ръб (1). Превключвателят (2) е монтиран на голямо разстояние от въртящия се диск, за да улесни изключването на двигателя в случай на авария
Описание на евтин циркулярен трион от мелница със собствените си ръце
Както в предишния пример, когато създавате такава машина, можете да опростите решението на проблема, като използвате стандартни електрически инструменти.
Задвижването с режещия диск е прикрепено към люлеещото рамо. За улесняване на физическите усилия е монтирана пружина или противотежест. Движението на инструмента е допустимо само във вертикална посока по дъгата. Този дизайн е мобилен. Може да се монтира на закрито и на открито върху подходяща основа. Ако е необходимо, мелницата може да бъде демонтирана. Той е закрепен с винтови съединители на амортизиращо дървено (гумено) уплътнение.

За да създадете устройство за циркуляр със собствените си ръце, можете да използвате този чертеж. В проекта се правят корекции, като се вземат предвид размерът на инструмента, допълнителните лични изисквания

Когато е оборудвана с подходящ диск, тази машина е подходяща за рязане на метални части. Ако се предполага да се извършват работни операции с големи натоварвания, препоръчително е да се направи носещата рамка и плота на масата от стоманени елементи
Направи си сам шлайф легло: чертежи, видеоклипове, алгоритъм за производство на отделни части и монтаж:
Предимства и процес на създаване на най-простия рутер за дърво за домашната работилница
Това оборудване се използва за изрязване на канали според определени размери и точно пробиване под различни ъгли. С негова помощ можете бързо да премахнете една четвърт, да създадете вдлъбнатина за заготовка с определена форма. Дори без подробно обяснение е ясно, че такива възможности ще бъдат полезни за собственика на частна къща. Остава да разберем как да направим самоделна фреза за дърво. Дали подобно решение ще бъде икономически изгодно или е по-изгодно да се закупи фабрично произведено оборудване?
На повдигнатите въпроси може да се отговори след подробно проучване на съответните конструкции.
В централната част на масата е монтиран захранващ блок, който върти фрезата. С помощта на скоби и други устройства заготовката се фиксира в желаното положение и се движи по дадена траектория. Такова работно място е оборудвано с оперативна система за отстраняване на прах.
За да изключите грешки по време на изпълнението на проекта, обърнете внимание на отделните параметри на структурните елементи:
- Масата за извършване на работни операции е създадена в стационарен дизайн. Неговите размери и товароносимост ще бъдат определени, като се вземат предвид характеристиките на обработените проби.
- Експертите препоръчват да се монтират винтови регулатори в долните части на опорите. С тяхна помощ е възможно да се установи точното хоризонтално положение на конструкцията, дори на неравни повърхности.
- Силовата рамка може да бъде сглобена от стоманени тръби (правоъгълни профили). За производството на плотове е подходящо висококачествено и достатъчно дебело ПДЧ. Тънък лист метал ще вибрира, което ще влоши точността на обработката.
- Ако изберете двигател с мощност 500-900 W, възможностите на фрезата ще бъдат достатъчни само за отстраняване на тънки слоеве, създавайки относително малки вдлъбнатини.
- При инсталиране на захранващ блок с мощност 900-1900 W са допустими по-сложни операции. Въпреки това, някои трудности са допустими при обработката на заготовки от твърда дървесина.
- Мощните машини (над 2000 W) могат да бъдат оборудвани с всякакъв тип фрези. Такова оборудване принадлежи към професионалното ниво. Проектиран е за непрекъсната работа без прегряване на двигателя.
- За производството на монтажна плоча, чрез която двигателят е прикрепен към плота на масата, можете да използвате лист от фибростъкло, метал.
- За да се осигури добра видимост в работната зона, над масата е монтирана подсветка.

С помощта на допълнително дъно от дебел шперплат (ПДЧ, ПДЧ) и маховик те намаляват вибрациите, увеличават точността на обработката на детайла
Следващата таблица предоставя информация за това колко струва ръчен рутер за дърво на вътрешния пазар.
Възможността за реализиране на проект за CNC фреза „направи си сам“
Използването на програмиран контрол ви позволява да създавате големи серии от части с висока точност, да извършвате уникална и особено внимателна обработка. За да стартирате нов технологичен процес - просто заредете нова програма и натиснете бутона "Старт". Лесна и сложна задача ще бъде изпълнена от машината за фрезоване на дърва автоматично, без намеса и контрол от потребителя. Тази техника елиминира грешките на оператора и осигурява най-високо качество.
Предимствата на този клас оборудване са очевидни. Остава да разберем дали е възможно да създадете CNC дървообработваща машина със собствените си ръце. Характеристиките на този клас оборудване са отбелязани по-долу:
- Ще трябва да осигурим възможност за преместване на фрезата хоризонтално във всички посоки. За да направите това, ще ви е необходим не само подходящият дизайн на стойките, но и допълнителни електрически двигатели.
- Точното позициониране на инструмента се осигурява с помощта на сензори, стъпкови двигатели.
- Ще ви е необходим софтуер, който ще контролира движението на фрезата, ще изпълнява контролни функции.

За производството на такова оборудване са необходими добри знания и практически умения в електрониката, механиката, металообработването и други области.
Важно! Дори и с подробно описание и чертежи, ще бъде много трудно да направите CNC фреза за дърво със собствените си ръце.
Как да направите свои собствени фрези за дървообработващи машини
За да създадете тихи продукти, се нуждаете от детайли, изработени от здрава, устойчива на високи температури и силна механична стрес инструментална стомана. Повредени тренировки, фитинги, пръти ще направят. Необходимата форма може да бъде създадена с помощта на диамантен диск, който е инсталиран в мелница. Ръбът е заточен под ъгъл от 7 до 10 градуса. Твърде тясната работна част бързо ще се влоши, дори при обработка на мека дървесина.
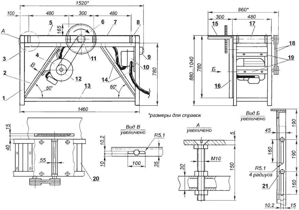
Чертежи и препоръки за създаване на машина за сгъстяване "направи си сам"
Висококачественото възпроизвеждане на този вид обработка изисква значителни усилия. Поради това се препоръчва да се използва трифазен електродвигател с мощност 5 kW или повече с максимална скорост на ротора 4,5 хиляди оборота в минута.
Валът (1) с един или повече ножове се върти от електродвигател (4), две ролки и ремък. За притискане и преместване на детайла тук са монтирани ролки (2, 3) и ръчно задвижване с верижен механизъм. Конструкцията е сглобена върху здрава рамка, направена от стоманени ъгли.
Като се вземат предвид личните предпочитания, не е трудно да се подготвят чертежи за планиране със собствените ви ръце. За коригиране на техническите характеристики се вземат предвид обемът на бъдещата работа, параметрите на заготовките и размерът на помещението.
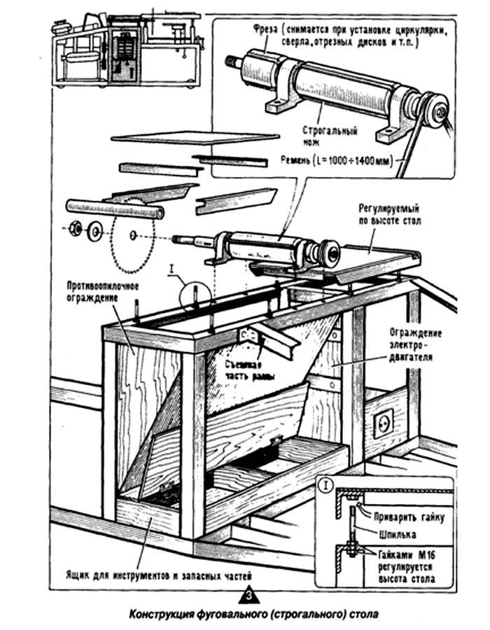
Изработване на функционална ренде от електрическа равнина със собствените си ръце
Можете бързо и евтино да направите машина, базирана на стандартен инструмент с електрическо задвижване.
Картината показва, че електрическият инструмент е фиксиран над детайла в специална рамка. Осигурете възможността да го премествате в надлъжна и напречна посока със стриктно запазване на ъгъла между тях 90 °. Модерен самолет е оборудван със специален изход за свързване на прахосмукачка. Следователно няма да има проблеми с изхвърлянето на отпадъци.
Направи си сам технология за създаване на машина за шлайфане на дърво
Това оборудване изпълнява своите функции, използвайки твърди валове и гъвкави остриета с абразив, нанесен върху повърхността, четки и други специални инструменти.

Широки ленти са монтирани в калибриращи шлифовъчни машини за дърво. Такива инженерни решения са предназначени за масово производство на продукти.

В барабанната шлайфмашина за дърво обработваните детайли се обработват с помощта на такива взаимозаменяеми инструменти
За производството на домакински уреди се препоръчва да изберете относително проста дизайн на колана за ходене. Можете да го създадете сами, след като определите необходимата дължина, като вземете предвид точното местоположение на поддържащите ролки. Прилага се следният алгоритъм:
- Ширината на лентата е зададена от 15 до 25 cm.
- Лентите се изрязват от подходяща пясъчна хартия.
- Те са залепени за гъвкава основа, изработена от плътен материал до края, без големи шевове.
- Предотвратява приплъзването на колана, като увеличава диаметъра на опорните ролки в централната част с няколко милиметра. Поставянето на гумен слой върху тях също е полезно.
Свързана статия:
Шлайф машина за дърво. Какви видове машини има, за какви цели са предназначени и как да изберем най-добрия инструмент? Прочетете за това и много повече в нашия материал.
Правилното създаване на ренде за дърво със собствените си ръце
Обърнете внимание на следните подробности за този дизайн:
- Специални направляващи равнини предотвратяват разпръскването на отпадъци, опростяват събирането на дървени стърготини.
- Регулирането на височината на масата ви позволява да прецизирате режима за обработка на детайла.
- Вграденото чекмедже е полезно за съхранение на резервни части, инструменти за подмяна.
- Вместо фреза можете да инсталирате циркуляр, отрязък диск, бормашина. Изработването на такава фуга със собствените си ръце ще ви помогне да оборудвате цеха си с многофункционално оборудване без допълнителни разходи.
Висококачествени домашно приготвени дървообработващи машини със собствените си ръце: видео, допълнителни материали и препоръки, заключения
Дадената информация убедително показва, че много практически проблеми в хода на оборудването на лична работилница могат да бъдат успешно решени сами. Използването на ъгли, крепежни елементи и други готови метални изделия опростява изпълнението на проекти. В някои случаи е допустимо да се инсталира стандартен електроинструмент, който ще изпълнява основни функции. Но за точни изводи във всеки случай е полезен сравнителен анализ с подобно оборудване, представено в търговската мрежа.
Създаването на различни дървообработващи машини за домашна работилница е описано в следващите видеоклипове.
Струг за дърво:
Компактен циркуляр:
Универсална фреза и машина за сгъстяване:
Оборудване за шлайфане:
Евтин ренде:












































